Kocks Väg 10, Hemgården, Nyköping
Locus Advice
Annons plus1 002 m²
Hyra: Ej angiven
Tillträde: Ej angivet
Nybyggd lokal diktan E4 med fenomenalt skyltläge
Fastigheten är snart fullt uthyrd men än finns möjlighet att hyra den sista lokalen.
Fakta om lokalen (miljöbyggnad)
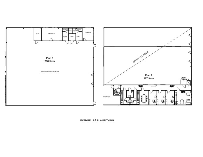
Total yta: ca 1 000 m²
Lager: ca 788 m²
Plan 2 (t.ex. kontor/utställning): ca 167 m²
Möjlighet att dela upp lokalen på två hyresgäster men man ser helst en tagare på hela ytan
Inflyttning: Q2 2026
Uthyres på ritning – möjlighet att anpassa utifrån er verksamhets behov
Användningsområden: höglager, verkstad, butik, showroom eller kombination
Läget
Exponeringsläge direkt intill E4 – perfekt skyltläge
Beläget i Hemgården, ett område med välkända aktörer och växande trafikflöden
Attraktiv och dynamisk miljö för både etablerade och nya verksamheter
Varför välja Hemgården
Sista lediga lokalen – övriga är redan uthyrda
Området präglas av expansiv handel och logistik
Möjlighet att etablera er verksamhet i en av Nyköpings mest attraktiva företagsmiljöer
Förslag på planritning finns i annonsen.
Lokaltyper
Typ: Kontor, Butikslokal, Lagerlokal
Minsta storlek: 1002 m²
Största storlek: 1002 m²
Övrig information
Vänligen respektera säljarens / hyresvärdens önskemål om bokad visning.
För mer information eller visning av objektet, hör av er till Locus Advice genom kontaktformuläret eller ring Joanna Eriksson på tel 08-558 094 43.
Växeln är öppen helgfria vardagar mellan 08.30-17.00
Locus Advice tel 08-558 094 40
Locus Advice är ett fastighetskonsultbolag med fokus på kommersiella fastigheter och lokaler.
Vi arbetar med
Lokaluthyrning
Lokalöverlåtelser
Fastighetsöverlåtelse
Transaktionsrådgivning
Värdering
Projektledning
Vi representerar även hyresgäster som vill ha hjälp med sitt lokalsökande.
Genom etablerade samarbeten med både stora och små fastighetsägare har vi tillgång till ett stort utbud av lokaler utöver vad vi kan marknadsföra i vår egen regi. Via dessa samarbeten kan vi med stor sannolikhet hjälpa er hitta den lokal ni söker efter.
Annonsinformation
Publicerad: 2026-02-20
Objektsnummer: 41996801






