Kamaxelgatan 7, Toftanäs, Malmö
Mileway Sweden AB
Annons max968 m²
Hyra: Ej angiven
Tillträde: Enligt överenskommelse
Effektiv lager- och kontorslokal med 3 markportar
Nu finns möjlighet att hyra en rymlig lager- och kontorslokal om ca 968 kvm i en välskött fastighet beägen i populära Toftanäs. Lokalen erbjuder en funktionell kombination av lager och kontor och lämpar sig väl för verksamheter inom logistik, service eller lättare produktion.Lagerytan om ca 779 kvm är belägen på markplan och har goda förutsättningar för effektiva flöden med tre markportar som möjliggör smidig in- och utlastning. Kontorsytor om ca 189 kvm är fördelade på plan 1 och 2, med en öppen och trivsam planlösning samt faciliteter såsom pentry, WC och mötesrum på båda planen.Fastigheten erbjuder god tillgänglighet och lämpar sig för verksamheter som söker en flexibel lösning med både lager och kontor samlat i samma lokal.Höjdpunkter
• Total yta om ca 968 kvm
• Lageryta om ca 779 kvm i markplan
• Kontorsytor om ca 189 kvm fördelade på våning 1och 2
• 3 markportar för smidig logistik, 4x4 m
• Kontor med pentry, WC och mötesrum
• Flexibel lokal för lager, logistik eller serviceverksamhetOmrådeToftanäs är ett delområde i stadsdelen Husie, cirka åtta kilometer från centrala Malmö. Toftanäs industriområde är ett av de nyare i kommunen, mellan Toftanäsvägen och Tullstorpsvägen, norr om Sallerupsvägen. Det började exploateras 1992 när Posten byggde sin terminal på området. Här erbjuds goda kommunikationsmöjligheter som trafikeras av busslinje 6 med en restid om cirka 10 minuter till Malmö centralstation.
Dokument
Egenskaper
Om lokalen
- Kommun
- Malmö kommun
- Byggår
- 2003
- Våning
- 1
- Tillträde
- Enligt överenskommelse
- Objektsnummer
- 41998385
Kommunikationer
Goda kommunikationsmöjligheter som trafikeras av buss 6 med en restid om cirka 15 minuter till Malmö centralstation.
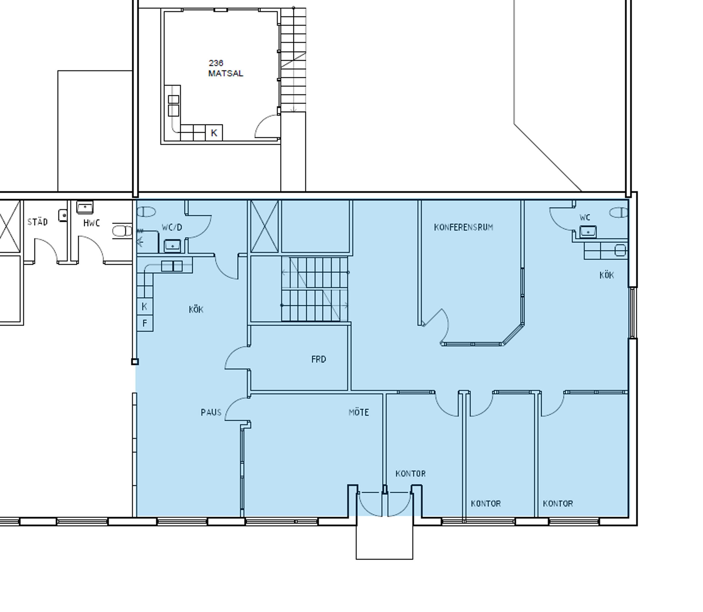
Planlösning
Se planritning bland bilder/PDF.
Parkering
Parkering finns i anslutning till fastigheten
Service
Bra serviceutbud med närliggande butiker som ICA Maxi, Apotek, ÖoB, Sängbutiken, Arken Zoo och gym.
Vägbeskrivning
Fastigheten ligger i anslutning till Yttre ringvägen, Sallerupsvägen och Inre ringvägen.
Skyltläge
Bra exponering av skyltläge utmed Kameaxelgatan och Ventilgatan
Närliggande företag
Postnord, Act Logimark Sverige AB, Assemblin, DHL
Karta
Bilder på lokalen
Kamaxelgatan 7 Kamaxelgatan 7 Kamaxelgatan 7 Kamaxelgatan 7 Kamaxelgatan 7 Kamaxelgatan 7 Kamaxelgatan 7 Kamaxelgatan 7 Kamaxelgatan 7 Kamaxelgatan 7 Kamaxelgatan 7 Kamaxelgatan 7 Kamaxelgatan 7 Kamaxelgatan 7 Kamaxelgatan 7 Kamaxelgatan 7 Kamaxelgatan 7 Kamaxelgatan 7 Kamaxelgatan 7 Kamaxelgatan 7 Kamaxelgatan 7 Kamaxelgatan 7 Kamaxelgatan 7
























