Kärrlyckegatan 31, Göteborg - Arendal, Torslanda
MIKE Kommersiella Lokaler AB
Annons plus196 m²
Hyra: Ej angiven
Tillträde: Ej angivet
Flexibel lager- och kontorslokal nära Volvo och hamnen
Välkommen till en modern och välplanerad kombilokal i absolut toppskick – perfekt för dig som söker en flexibel arbetsmiljö med både lager- och kontorsdel i ett attraktivt industriområde.
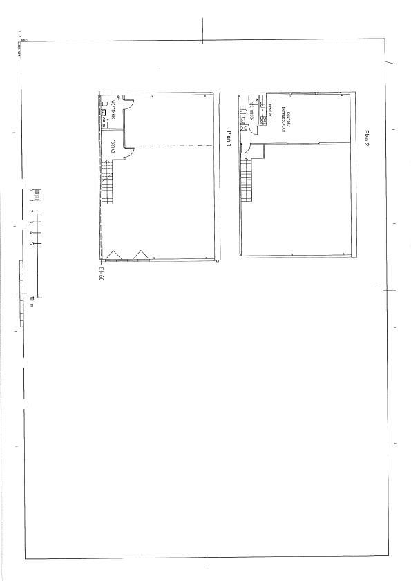
På markplan möts du av en rymlig lageryta om generösa 150 kvm. Här finns både höglager och låglager under entresolplanet, vilket skapar smarta och effektiva förvaringsmöjligheter. I anslutning till lagret finns även ett fräscht badrum samt ett praktiskt förråd som gör det enkelt att hålla ordning och struktur.
En trappa upp når du entresolplanet om totalt 46 kvm – en trivsam kontorsdel med plats för 2–4 arbetsplatser. Här finns dessutom ett stilrent pentry och ytterligare ett badrum, vilket skapar en bekväm och funktionell arbetsmiljö för dig och ditt team.
Lokalen präglas av en härlig industriell karaktär som ger en inspirerande känsla och en professionell atmosfär. Läget i Arendal är optimalt: endast 5 minuter från Volvo, 5 minuter från hamnen och med snabb och smidig anslutning ut på väg 158.
Detta är en lokal som måste upplevas på plats – tveka inte att höra av dig om du har frågor eller vill boka en visning!
Lokaltyper
Typ: Kontor, Lagerlokal
Minsta storlek: 196 m²
Största storlek: 196 m²
Annonsinformation
Publicerad: 2025-11-25
Objektsnummer: 41994458
Karta
Bilder på lokalen
Kärrlyckegatan 31 Kärrlyckegatan 31 Kärrlyckegatan 31 Kärrlyckegatan 31 Kärrlyckegatan 31 Kärrlyckegatan 31 Kärrlyckegatan 31 Kärrlyckegatan 31 Kärrlyckegatan 31 Kärrlyckegatan 31 Kärrlyckegatan 31 Kärrlyckegatan 31 Kärrlyckegatan 31 Kärrlyckegatan 31 Kärrlyckegatan 31 Kärrlyckegatan 31 Kärrlyckegatan 31 Kärrlyckegatan 31 Kärrlyckegatan 31 Kärrlyckegatan 31 Kärrlyckegatan 31 Kärrlyckegatan 31 Kärrlyckegatan 31 Kärrlyckegatan 31 Kärrlyckegatan 31 Kärrlyckegatan 31



























