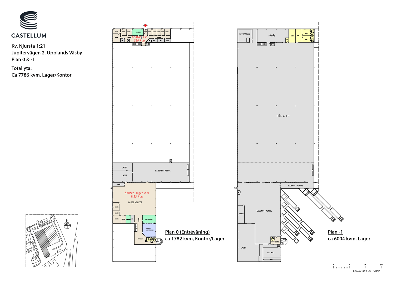
Produktionslokal, Jupitervägen 2, Upplands Väsby
- 7 786 m²
- 2025-11-10
Modern och flexibel logistik- och industrilokal i Upplands Väsby – 7 786kvm
Om lokalen
- Lokaltyper
- Produktionslokal / Lagerlokal
- Total yta
- 7 786 m²
- Adress
- Jupitervägen 2
- Område
- Upplands Väsby
- Kommun
- Upplands Väsby kommun
- Byggår
- 1972
- Hiss
- Nej
- Tillträde
- 2025-11-10
- Objektsnummer
- 41969359
Beskrivning
Letar ni efter en rymlig, funktionell och strategiskt belägen lokal för logistik, lättindustri, handel eller kontor? På Jupitervägen 2 i Upplands Väsby erbjuds nu en anläggning på hela 7 786 kvm med alla förutsättningar för att stödja en effektiv och modern verksamhet.
Lokalfakta & fördelar
- Optimala logistiklösningar: Lokalen är utrustad med lasthus och markportar för smidiga in- och utlastningar.
- Goda rangerytor: Stora uppställningsytor för lastbilar och transporter underlättar den dagliga driften.
- Höglager med volym: En imponerande takhöjd på 8,90 meter ger goda lagringsmöjligheter och flexibilitet.
- Starkt golv: Lagergolv med bärighet om 2 ton/m².
- Robust infrastruktur: Elkapacitet om 800 A ger er möjligheter att driva energikrävande verksamheter.
Kostnadseffektiv drift:
- Värme: 52 kr/kvm/år
- El och vatten: 95 kr/kvm/år
Användningsområden
Lokalen lämpar sig för en rad olika verksamheter, bland annat:
- Tung industri
- Handel och distribution
- Kontorsverksamhet kopplat till logistik eller produktion
Upplands Väsby erbjuder ett strategiskt läge i norra Storstockholm med närhet till E4:an, Arlanda och goda kommunikationer in mot centrala Stockholm. Detta ger både logistikfördelar och enkel tillgänglighet för personal och kunder.
Övrigt
Fastigheten ligger i Njursta industriområde ca 7 minuter från E4:an.


















