Drivhjulsvägen 42, Hägersten, Stockholm
Catena AB
Annons max7 236 m²
Hyra: Ej angiven
Tillträde: Enligt överenskommelse
Lager med terminal och kontor i Hägersten – perfekt för citylogistik och längre godsflöden norr och söderut!
Fastigheten är på totalt 25 000 kvm och innefattar en produktionsbyggnad, en terminal och en kontorsbyggnad med distributionslager i källarplan. Perfekt både för citylogistik och längre godsflöden både norr och söderut.
Lokaltyper
Typ: Kontor, Lagerlokal
Minsta storlek: 7236 m²
Största storlek: 7236 m²
Villkor lokal
Tillträde: Enligt överenskommelse
Kommunikation
Närhet till buss och pendeltågsförbindelser.
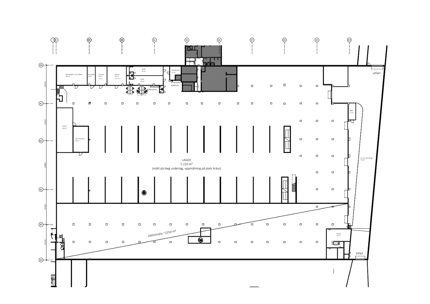
Planlösning
Utöver lagerdelen består lokalen av:
- Frys 46 kvm
- Kylrum 45 kvm
- Aerosol 36 kvm
- Teknikrum 30 + 135 kvm
- Rum för brandfarlig vätska 85 kvm
- Kontor 56 kvm x 3st
- Omklädningsrum x 2 med duschar och ett antal WC (för ca 50 pers)
- Städrum
- Kaffestation/lounge 38 kvm
- Showroom på ca 20 kvm
Annonsinformation
Publicerad: 2025-03-21
Objektsnummer: 41987364














