Banvägen 19, Notviken, Luleå
NP3 Fastigheter AB (publ)
Annons max310–622 m²
Hyra: Ej angiven
Tillträde: Ej angivet
Lagerlokal i bra läge
Lagerlokal med personalytor på övre plan. Lokalen ligger på ett bra läge i Notsviksstan.
Goda parkeringsmöjligheter finns, både för personbilar och lastbilar.
Möjlighet finns att anpassa lokalen efter verksamhetens behov.
Lokaltyper
Typ: Kontor, Lagerlokal, Logistiklokal
Minsta storlek: 310 m²
Största storlek: 622 m²
Kommunikation
Bra med bussförbindelser med en närliggande hållplats efter Bodenvägen.
Notviken har tåghållplats.
Luleå Airport ligger 15 km från fastigheten.
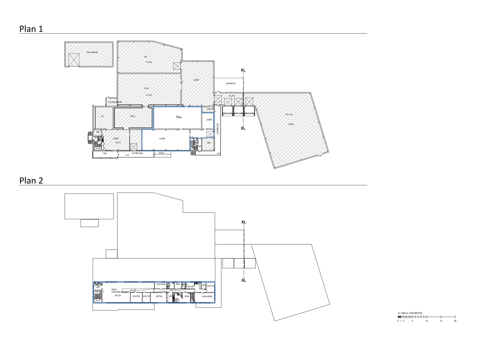
Planlösning
Lager på bottenplan, ca 312 kvm. Övre plan har kontor, fikarum och omklädningsrum med bastu, ca 310 kvm.
Annonsinformation
Publicerad: 2024-02-19
Objektsnummer: 41972136



