Argongatan 35-39 Boglundsängen, Boglundsängen, Örebro
ÖrebroBostäder AB
857 m²
Hyra: Ej angiven
Tillträde: Ej angivet
Kontors- och lagerlokal på Boglundsängens företagsområde.
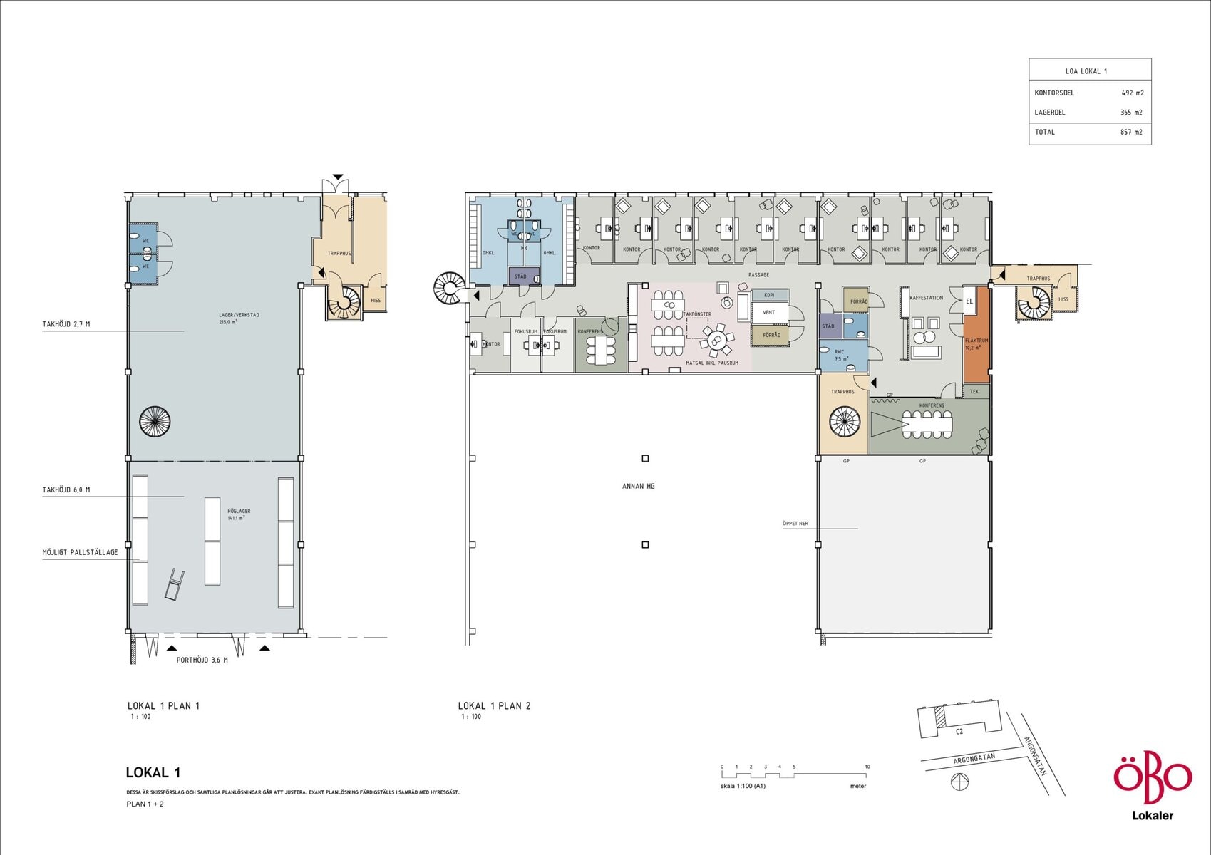
Lokalen är förlagd på två plan och omfattar totalt 857 kvadratmeter, varav 492 kvadratmeter kontor och 365 kvadratmeter lagerytor. Kontorsdelen har separata omklädningsrum, flertalet arbetsrum, fokus- och konferensrum samt gemensamhetsytor. Här finns goda möjligheter att skapa en flexibel lösning för lager, industri eller annan verksamhet. Fastigheten erbjuder en inhägnad gård med grindar som låses nattetid, vilket ger en trygg och säker miljö. På området finns även personalparkering. I närområdet finns ett brett utbud av service med företagsverksamheter, stormarknader, bensinstationer och restauranger, vilket gör läget både praktiskt och attraktivt för företag och medarbetare.
Läget
Boglundsängen är ett väletablerat verksamhets- och handelsområde i norra Örebro med ett strategiskt läge nära både E20 och Västerleden. Området har under de senaste åren utvecklats till ett starkt företags- och handelsnav med många välkända aktörer och god tillgänglighet för både kunder och transporter.
Här finns en bra mix av handel, service, lager och industri, vilket skapar ett levande företagsklimat och goda affärsmöjligheter. Närheten till stora handelsplatser, restauranger och service gör området attraktivt både för företag och besökare.
Lokaltyper
Typ: Kontor
Minsta storlek: 857 m²
Största storlek: 857 m²
Annonsinformation
Publicerad: 2026-04-11
Objektsnummer: 41998087






