Kontor / Lager, Amalia Jönssons gata 21, Södra Göteborg, Göteborg
- 70–186 m²
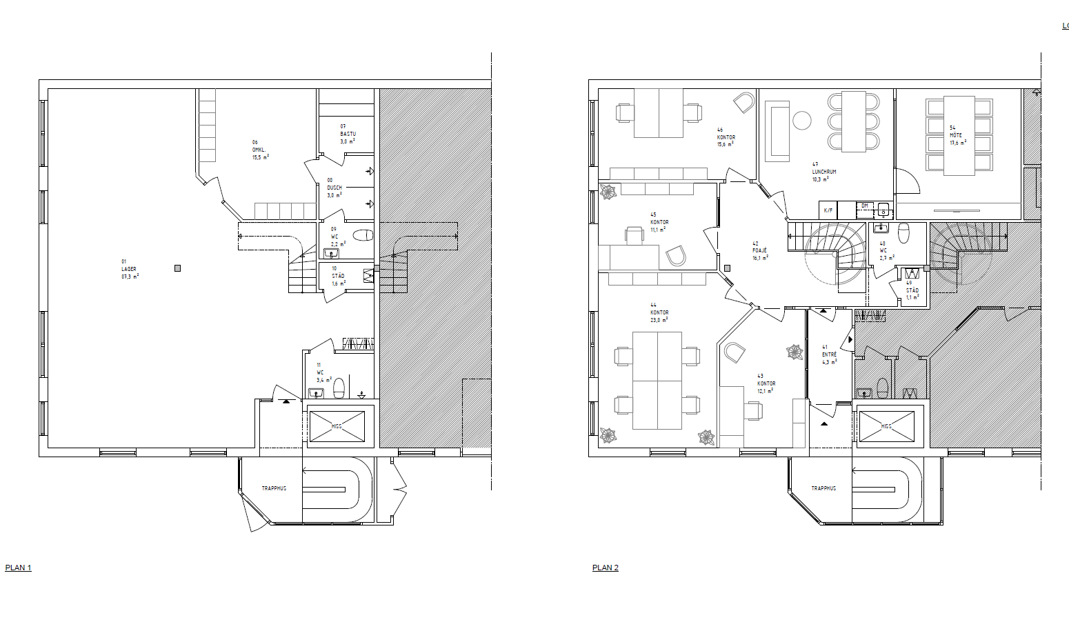
Lokalens egenskaper: Nu finns möjlighet att hyra en välplanerad kombilokal på Amalia Jönssons gata 21, perfekt för företag som söker en effektiv kom
Om lokalen
- Lokaltyp
- Kontor / Lager
- Total yta
- 70–186 m²
- Adress
- Amalia Jönssons gata 21
- Område
- Södra Göteborg
- Kommun
- Göteborgs kommun
- Hiss
- Ja
- Objektsnummer
- 41996251
Beskrivning
Lokalens egenskaper:
Nu finns möjlighet att hyra en välplanerad kombilokal på Amalia Jönssons gata 21, perfekt för företag som söker en effektiv kombination av kontor och lager i samma enhet. Lokalen omfattar totalt cirka 186 kvm, fördelat på cirka 70 kvm lager och cirka 116 kvm kontorsyta.
Kontorsdelen erbjuder öppen arbetsyta, samt gemensamma ytor som skapar en trivsam och professionell arbetsmiljö. Här finns även kök/pentry, WC samt omklädningsrum med dusch, vilket ger god komfort för personalen. Planlösningen är genomtänkt och skapar ett naturligt flöde mellan arbetsytor och serviceutrymmen.
Lagerdelen har direkt access via port och lämpar sig väl för förvaring, lättare produktion eller logistik. Den smarta uppdelningen mellan kontor och lager gör lokalen idealisk för exempelvis e-handel, teknikbolag eller serviceföretag med behov av både administration och lagerhållning.
Område:
Fastigheten är belägen på Amalia Jönssons gata i ett etablerat och lättillgängligt verksamhetsområde. Området präglas av företagande och erbjuder närhet till både service, lunchrestauranger och handel, vilket skapar en smidig vardag för både anställda och besökare.
Kommunikationer:
Lokalen har goda kommunikationer och nås enkelt med både bil och kollektivtrafik. Närhet till större trafikleder gör det lätt att ta sig till och från området.
Snabbfakta:
-Kombilokal om totalt ca 186 kvm
-Ca 70 kvm lager med egen port
-Ca 116 kvm kontor
-Kök/pentry
-Omklädningsrum med dusch
-WC
-God tillgänglighet
Har ni frågor eller vill boka tid för visning?
Välkomna att kontakta oss på 031-350 49 00 eller hej@loqalo.se





