Kontor, Östra Hamnvägen 31, Getterön, Varberg
- 15 m²
- Omgående eller enligt överenskommelse
Om lokalen
- Lokaltyp
- Kontor
- Total yta
- 15 m²
- Adress
- Östra Hamnvägen 31
- Område
- Getterön
- Kommun
- Varbergs kommun
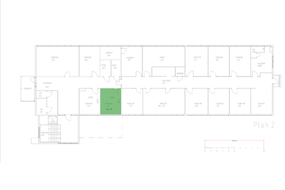
- Våning
- Plan 2 - rum 216
- Tillträde
- Omgående eller enligt överenskommelse
- Objektsnummer
- 41993090
Beskrivning
Getakärr 9:9 är en industri- och lagerfastighet med verksamheter som inom trä- och pappersindustri, lagerhantering, kontor och restaurang. Nu finns ett ledigt kontor i Caverionhuset.
Planlösning
Konferensrum och pentry på plan 2. All gemensam yta sköts, städas, möbleras etc av hyresgästerna tillsammans.
Tillgänglighetsanpassade parkeringsplatser, ramp till entré, hiss och RWC.
Hyra 3075 kr/månad
Parkering
Ja
Övrigt
Hyreskontraktet skrivs med Varbergs Fastighets AB med tre månaders uppsägningstid. Internet, värme och el ingår i hyran, samt gemensamma ytor så som kök, konferensrum, wc.
Fastighetsägare: Varbergs Fastighets AB, 0340-50 60 00.


