Rådhusgatan 6, Östhammar
Mäklarhuset Kommersiella Uppsala
Annons plus740 m²
Hyra: Ej angiven
Tillträde:
Väl underhållen fastighet med stabila intäckter
Här presenteras en välskött och centralt belägen fastighet i attraktiva Östhammar – en unik möjlighet för dig som söker en kombination av stabila intäkter och framtida utvecklingspotential.
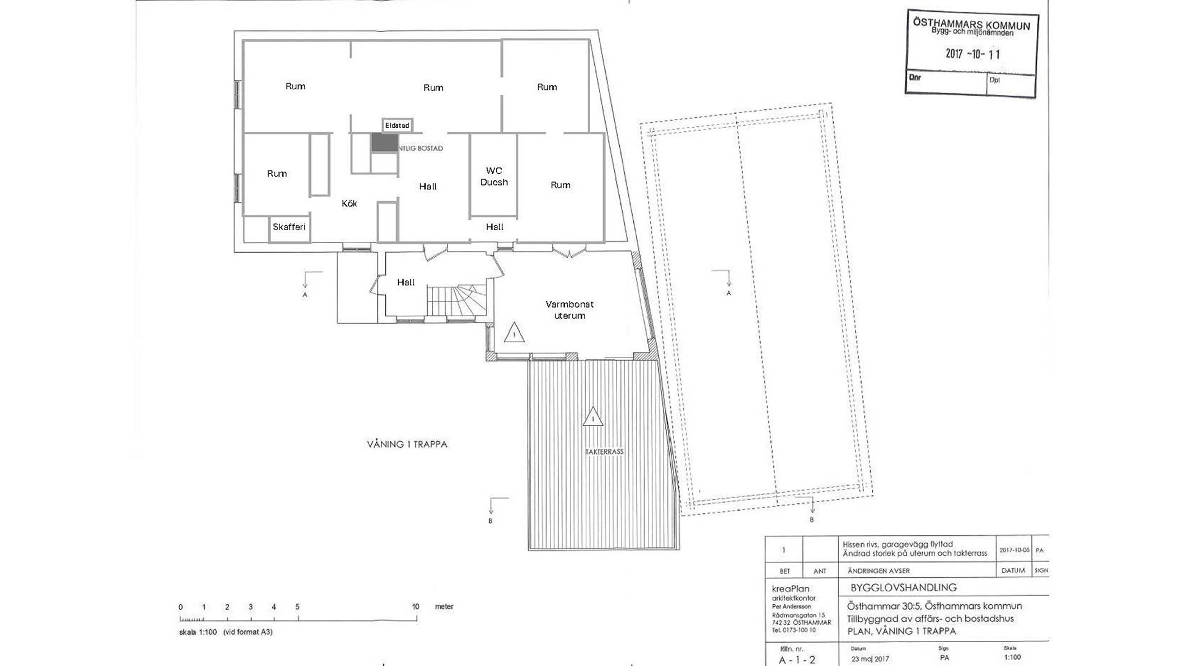
Fastigheten omfattar totalt ca 340 kvm fördelat på två plan om 170 kvm vardera. På övervåningen finns en rymlig bostadslägenhet med generösa ytor och ett trevligt ljusinsläpp – perfekt för såväl eget boende som uthyrning. Bottenvåningen inrymmer två kontorslokaler med flexibla användningsområden, vilket ger goda möjligheter till löpande hyresintäkter. Dagsläget fullt uthyrt till välkänd aktör. Intäkter/år; 3 lokaler 362 473 kr och 1 lägenhet 192 000 kr.
På tomten om 922 kvm finns även ett garage om ca 60 kvm samt en större ladugårdsbyggnad om totalt ca 400 kvm (fördelat på två plan). Av ladan är ca 110 kvm isolerat och i dagsläget uthyrt, medan resterande ytor är oisolerade och erbjuder en spännande utvecklingsmöjlighet – exempelvis för ombyggnation till ytterligare bostäder eller verksamhetslokaler.
Fastigheten är löpande underhållen och erbjuder en trygg grund för nästa ägare. Kombinationen av befintliga intäkter, centralt läge och stor utvecklingspotential gör detta till ett mycket intressant investeringsobjekt.
Ett tillfälle för dig som vill förvärva en fastighet med flera ben att stå på – både idag och i framtiden.
Om fastigheten
- Kommun
- Östhammars kommun
- Objektsnummer
- 41998479
- Pris
- 8 500 000 kr
- Pris
- 8 500 000 SEK
Omgivning
Östhammar är en växande kommun vid Upplands kust där företagande, innovation och livskvalitet går hand i hand. Här finns en unik kombination av strategiskt läge, stark företagskultur och en levande gemenskap som gör det enkelt att starta, driva och utveckla företag. Med nära koppling till Uppsala, Forsmark, Arlanda och Stockholm når du stora marknader på bara någon timme – men slipper storstadens trängsel och kostnader. Samtidigt ger den natursköna miljön, den trygga livsstilen och närheten till hav, skärgård och skog ett vardagsliv som lockar både arbetskraft och entreprenörer.
Kommunikationer
Upplands lokaltrafik linje 811 kör mellan Östhammar-Gimo-Alunda-Uppsala och man kan även åka buss från Östhammar och Hargshamn till Stockholm med SL.
Beskrivning
Här presenteras en välskött och centralt belägen fastighet i attraktiva Östhammar – en unik möjlighet för dig som söker en kombination av stabila intäkter och framtida utvecklingspotential.
Fastigheten omfattar totalt ca 340 kvm fördelat på två plan om 170 kvm vardera. På övervåningen finns en rymlig bostadslägenhet med generösa ytor och ett trevligt ljusinsläpp – perfekt för såväl eget boende som uthyrning. Bottenvåningen inrymmer två kontorslokaler med flexibla användningsområden, vilket ger goda möjligheter till löpande hyresintäkter. Dagsläget fullt uthyrt till välkänd aktör. Intäkter/år; 3 lokaler 362 473 kr och 1 lägenhet 192 000 kr.
På tomten om 922 kvm finns även ett garage om ca 60 kvm samt en större ladugårdsbyggnad om totalt ca 400 kvm (fördelat på två plan). Av ladan är ca 110 kvm isolerat och i dagsläget uthyrt, medan resterande ytor är oisolerade och erbjuder en spännande utvecklingsmöjlighet – exempelvis för ombyggnation till ytterligare bostäder eller verksamhetslokaler.
Fastigheten är löpande underhållen och erbjuder en trygg grund för nästa ägare. Kombinationen av befintliga intäkter, centralt läge och stor utvecklingspotential gör detta till ett mycket intressant investeringsobjekt.
Ett tillfälle för dig som vill förvärva en fastighet med flera ben att stå på – både idag och i framtiden.














