Kumla gårdsväg 21A, Eriksberg, Botkyrka
Mileway Sweden AB
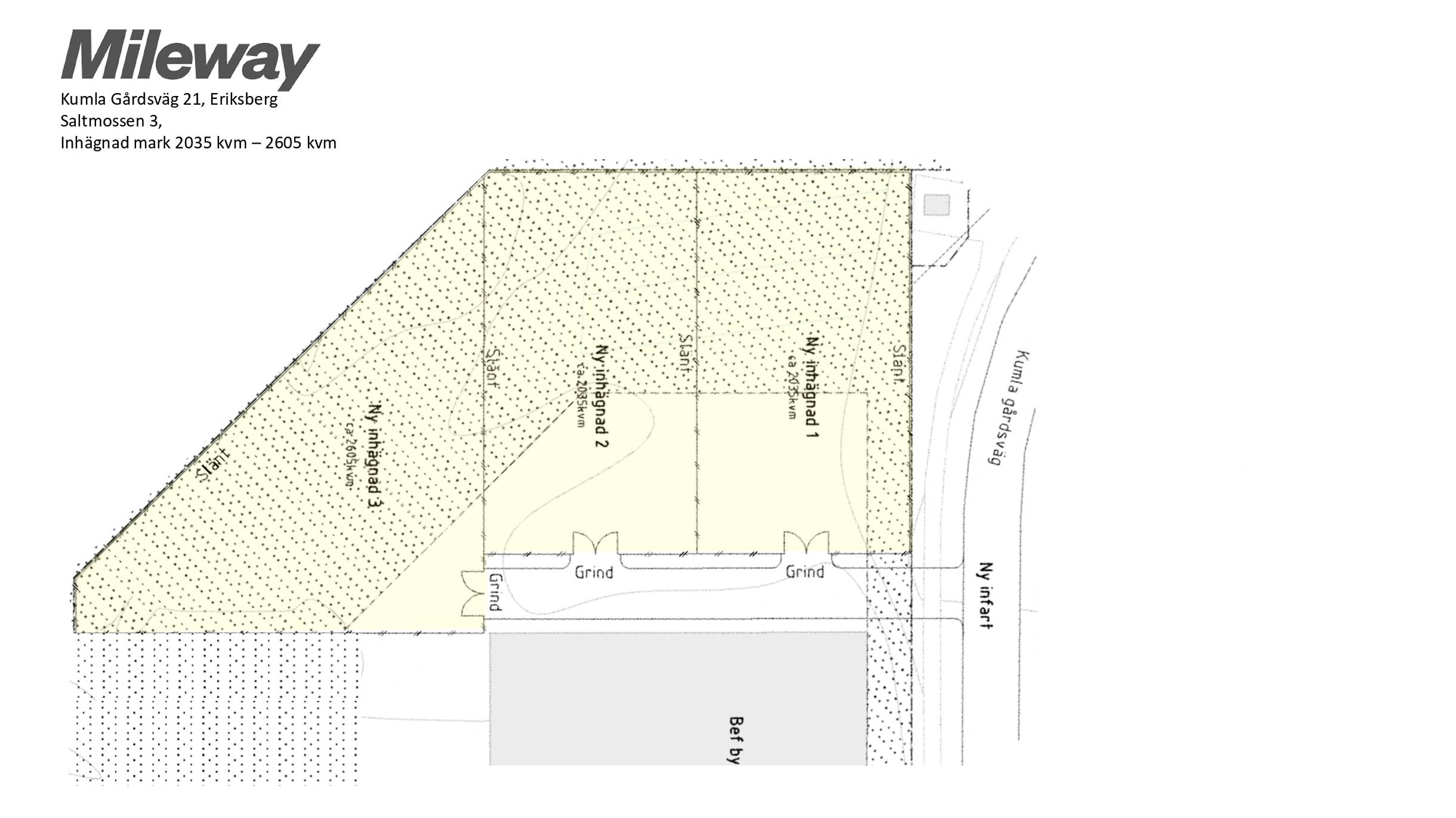
Annons max2 035 m²
Hyra: Ej angiven
Tillträde: Omgående
Ledig mark om 2035 kvm hyrs ut på industrifastighet
ENDAST UTHYRNING UTAV MARK FÖR UPPSTÄLLNINGSYTA. EJ TILL SALU.
Industrifastighet med ledig markyta för uthyrning om totalt 2 035 kvm som kan användas till uppställningsyta. Det finns goda möjligheter att anpassa markytan efter hyresgästens behov, hägna in området med stängsel och grind samt lägga grus.Eriksbergs industriområde ligger 20 kilometer söder om centrala Stockholm på ett attraktivt läge i direkt anslutning till E4/E20 och Hågelbyleden. Området präglas av lättindustri och handel och det erbjuds ett stort serviceutbud av butiker och lunchrestauranger i närliggande Alby och Hallunda Centrum. Det finns goda kollektivtrafikförbindelser med både buss och tunnelbana till Stockholm med omnejd.
Om fastigheten
- Kommun
- Botkyrka kommun
- Tillträde
- Omgående
- Objektsnummer
- 41997273
Kommunikationer
Goda kollektivtrafikförbindelser med buss och tunnelbana till Stockholm med omnejd
Service
Stort serviceutbud av butiker och lunchrestauranger i närliggande Alby och Hallunda Centrum
Vägbeskrivning
Direkt anslutning till E4/E20 och Hågelbyleden
Närliggande företag
BAUHAUS, Biltema, Mekonomen, Ahlsell och CityMail
Beskrivning
ENDAST UTHYRNING UTAV MARK FÖR UPPSTÄLLNINGSYTA. EJ TILL SALU.
Industrifastighet med ledig markyta för uthyrning om totalt 2 035 kvm som kan användas till uppställningsyta. Det finns goda möjligheter att anpassa markytan efter hyresgästens behov, hägna in området med stängsel och grind samt lägga grus.Eriksbergs industriområde ligger 20 kilometer söder om centrala Stockholm på ett attraktivt läge i direkt anslutning till E4/E20 och Hågelbyleden. Området präglas av lättindustri och handel och det erbjuds ett stort serviceutbud av butiker och lunchrestauranger i närliggande Alby och Hallunda Centrum. Det finns goda kollektivtrafikförbindelser med både buss och tunnelbana till Stockholm med omnejd.




