Timmergatan 6, Brevik, Västervik
Bjurfors Näringsliv
2 552 m²
Hyra: Ej angiven
Tillträde: Ej angivet
Flexibel industrifastighet i centrala Västervik
Välplanerad industrifastighet om 2552 kvm uthyrningsbar yta som passar många olika verksamheter och är tillgänglig för köparen. I fastigheten har det varit tryckeri så bärigheten är god i golvet och planlösningen kan anpassas för produktionslinjer. Lätt att dela upp fastigheten om man vill hyra ut till flera olika hyresgäster eller nyttja del av den i egen verksamhet. Industri och verkstadsytor, lager, kontor samt personalutrymmen. 50+ p-platser samt tre garage. Tillträde enligt överenskommelse.
Egenskaper
Om fastigheten
- Kommun
- Västerviks kommun
- Byggår
- 1975
- Takhöjd
- 320 cm
- Objektsnummer
- 41994350
Övrigt
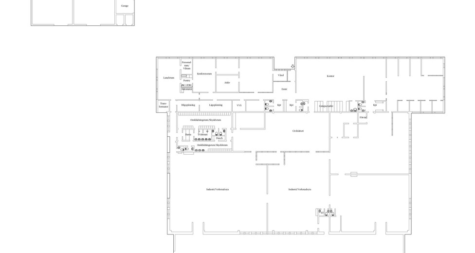
När du stiger in i byggnaden genom Entrén är du i kontors och personaldelen. Till vänster finner du kontorsytor i varierat öppet landskap och kontorsrum. Här kan du anpassa planlösningen efter din eller din hyresgästs verksamhet då få mellanväggar är bärande. Till höger är konferens- och mötesrum, personalpentry med matplats och teknikrum. Här finns även separata omklädningsrum för både kvinnor och män med tillhörande duschar och bastu. I byggnaden finns ett tiotal wc utspridda på strategiska platser. Omklädningsrummen är belägna i skyddsrummet som fortfarande är av MSB att betrakta som aktivt.
Byggnaden uppfördes ursprungligen för "Västerviks Tidningen" och har nu senast använts för försäljning, lager och showroom av kök. Totalt finns plats för uppemot 50+ arbetsplatser såsom byggnaden är planerad nu. Vidare in i byggnaden når du lager och verkstadshallarna som är uppdelade i 4 sektioner med öppna pelarfria ytor. Takhöjd om ca 3,2 meter under balk, betonggolv samt golvbrunnar. Innanför verkstads/lagerdelen når du senaste tillbyggnaden som är varmlagret med lastport både åt byggnadens fram och baksida.
På fastighetens baksida finns en andra byggnad som utgörs av kallager uppdelat i två lokaler med egna dörrar, små små förråd samt tre garage. De två kallagerlokalerna har en vattenskada pga en tidigare läcka i taket och behöver renoveras.
Ytorna runtom byggnaden utgörs främst av asfalterade ytor för parkering eller uppställningsyta och är inhägnade större delen av långsidorna på fastigheten men inte kortsidorna. Längst fram respektive bak på fastigheten finns mindre naturytor med träd och buskar.
Fastigheten är belägen i ett handels/industriområde som ligger i Brevik i västra Västervik intill infarten. Intilliggande grannar är bland annat Byggmax, K3 Kuststaden Bil, Speedy, Hjälpmedelscentralen, plåtslagare, mfl. Alldeles invid genomfartsleden Allén som trafikerar majoriteten av alla fordon som ska till eller ifrån E22:an.
Industriområdet har varierande verksamheter men har en huvudinriktning mot handel och bygg och hantverksmarknaden. Man har närhet till det mesta i form av service, restauranger och handel samt endast ca 1500 meter in till Västerviks stadskärna. Goda logistikmöjligheter att snabbt ta sig in och ut ur området och upp på de stora vägarna.
Till Västervik finns både färjetrafik, rälsbuss, vanlig buss samt bil kommunikationer.
Uppskattad körtid med bil från fastigheten till:
Stockholm - ca 3 tim
Norrköping - ca 1 tim 20 min
Linköping - ca 1 tim 25 min
Oskarshamn - ca 50 min
Jönköping - ca 2 tim 10 min
UTHYRNINGSMÖJLIGHETER:
Fastigheten är bra planerad ur aspekten att det är enkelt att dela upp fastigheten i flertalet lokaler om man vill hyra ut den men till fler hyresgäster än en. Detta möjliggör fastigheten som en god avkastningsinvestering.
Bedömda hyresnivåer för respektive lokaltyp efter att ytorna är i viss mån renoverade;
Industriyta 750 kr/kvm/år +-100 kr
Kontorsyta 750 kr/kvm/år +-100 kr
Varmlager 650 kr/kvm/år +-100 kr
Kallager / Garage 300 kr/kvm/år +-100 kr
Exempel på lämpliga hyresgäster att hyra ut till är tillverkningsföretag, lager och logistik, verkstäder och verkstadsföretag för tex bilar, snickeri, hantverk, etc, företag med stort utrymmesbehov tex inom näthandel, start-ups eller etablerade företag som finns på annan ort och söker sig till Västervik.
FÖRUTSÄTTNINGAR
Försäljningsprospektet grundar sig på information som erhållits från säljaren samt från andra källor. Ingen garanti lämnas avseende innehållets riktighet. Säljaren samt Bjurfors Näringsliv friskriver sig uttryckligen från allt ansvar, eventuella fel eller ofullständigheter i prospektet eller i annan information, muntlig eller skriftlig, som tillhandahålls intressent till fastigheten.
Köpare av fastigheter har en långtgående undersökningsplikt. Spekulanter uppmanas därför att inför ett eventuellt förvärv noggrant utföra sin undersökningsplikt avseende fastighetens skick och övriga frågor som är av vikt för spekulanten.
Mottagare av prospektet förbinder sig att endast använda den för detta ändamål och inte kopiera eller delge den till andra utan skriftligt tillstånd.
Säljaren förbehåller sig rätten att avböja bud, avsluta pågående förhandlings- eller försäljningsprocess eller ändra ovan angivna riktlinjer utan att ange skäl för detta.
FÖRSÄLJNINGSPROCESSEN
Potentiella köpare inbjuds härmed, på basis av detta prospekt, att lämna indikativa bud på fastigheten.
10 % av fastighetsvärdet erlägges i form av handpenning på dagen för tecknande av köpekontrakt. Resterande del av köpeskillingen erläggs på tillträdesdagen. Inga finansieringsvillkor medges. Köparen står för egna förvärvskostnader.
Fastigheten överlåtes i befintligt skick och ägaren kommer att friskriva sig från allt ansvar för faktiska fel och brister, rättsliga fel, rådighetsfel och andra fel som ansvar för s k dolda fel. Spekulanter skall tillsammans med bud även lämna en kortfattad beskrivning av spekulant samt redogöra för tänkt finansieringsstruktur. Möjlig tillträdesdag skall anges. Spekulanter kommer ges tillfälle att genomföra en såväl teknisk som ekonomisk Due Diligence av fastigheten.
FÖR DENNA FÖRSÄLJNINGSPROCESS AVSES TIDPLANEN ENLIGT NEDAN FÖLJAS.
Visning av fastigheten, bud, LOI, DD, överlåtelseavtal samt tillträde enligt överenskommelse.
Beskrivning
Välplanerad industrifastighet om 2552 kvm uthyrningsbar yta som passar många olika verksamheter och är tillgänglig för köparen. I fastigheten har det varit tryckeri så bärigheten är god i golvet och planlösningen kan anpassas för produktionslinjer. Lätt att dela upp fastigheten om man vill hyra ut till flera olika hyresgäster eller nyttja del av den i egen verksamhet. Industri och verkstadsytor, lager, kontor samt personalutrymmen. 50+ p-platser samt tre garage. Tillträde enligt överenskommelse.
Byggnader
Byggnad 1
| Grund | Betongplatta |
| Stomme | Trä/Betong/Stål |
| Tak | Papp / Plåt |
| Fasad | Tegel / Plåt |
| Ventilation | Mekanisk m. värmeåtervinning |
| Uppvärmning | Luftvärmepump (luft/luft), Aerotemp, Elradiatorer |
Karta
Bilder på fastigheten
Timmergatan 6 Timmergatan 6 Timmergatan 6 Timmergatan 6 Timmergatan 6 Timmergatan 6 Timmergatan 6 Timmergatan 6 Timmergatan 6 Timmergatan 6 Timmergatan 6 Timmergatan 6 Timmergatan 6 Timmergatan 6 Timmergatan 6 Timmergatan 6 Timmergatan 6 Timmergatan 6 Timmergatan 6 Timmergatan 6 Timmergatan 6 Timmergatan 6 Timmergatan 6 Timmergatan 6 Timmergatan 6 Timmergatan 6 Timmergatan 6 Timmergatan 6 Timmergatan 6






























