Vasagatan 46, Stockholm
Shift Lokalteam AB
Annons plus145 m²
Hyra: Ej angiven
Tillträde: Enligt överenskommelse
Representativa och flexibla kontorslokaler högst upp i fastigheten med ett helt fantastiskt tornrum
Fastigheten har en häftig kombination av modern teknik i en stilfull och charmig äldre fastighet.
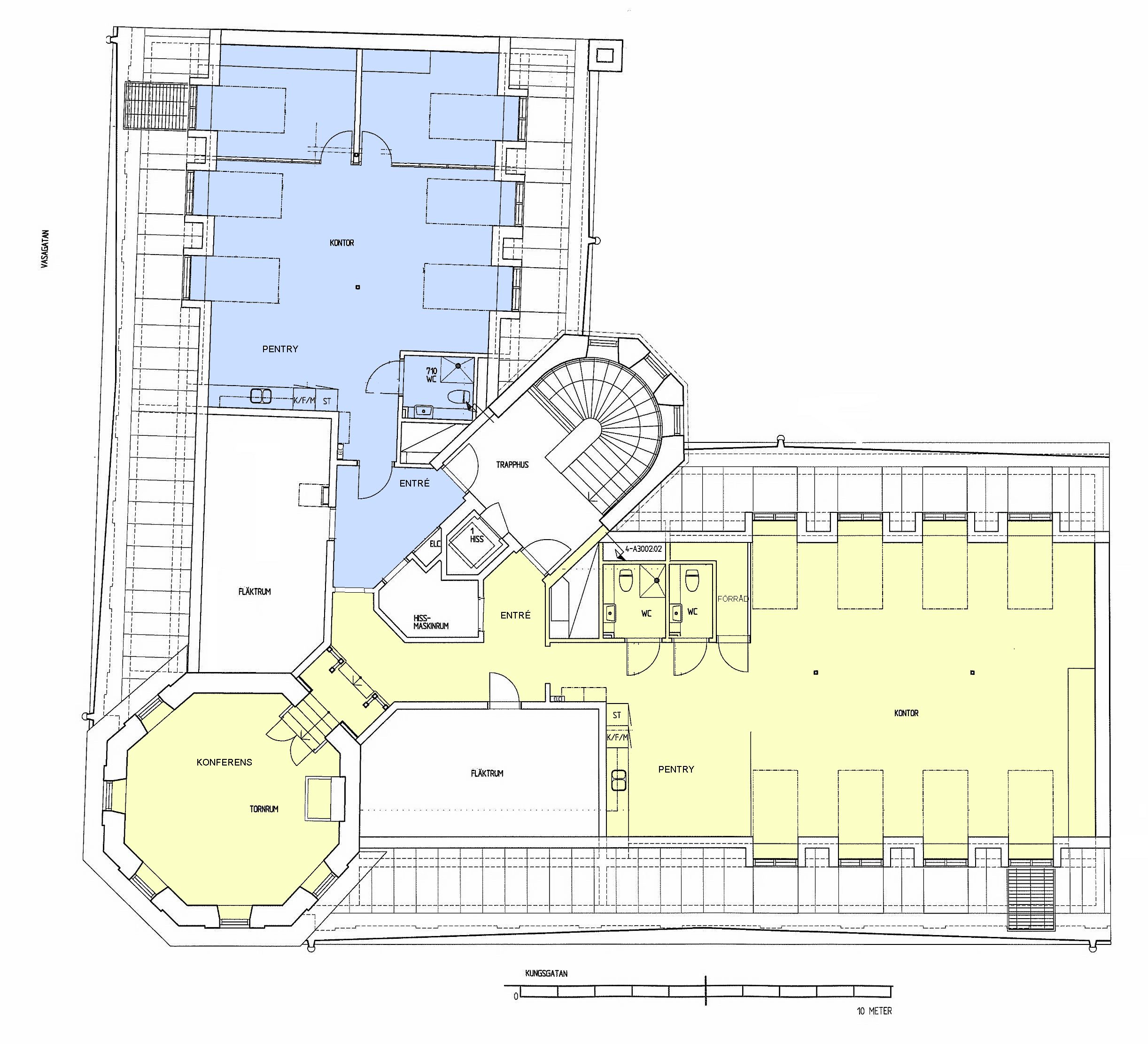
Kontoret består idag av 2 sammanslagna lokaler om 145 kvm (gul färg på ritning) samt ca 75 kvm (blå färg på ritning) dvs totalt ca 220 kvm.
Det finns möjlighet att hyra 145 kvm separat om hela ytan är för stor.
Läget på Vasagatan 46 är ett av Stockholms absolut bästa kommunikationslägen precis intill Stockholm Centralstation med direkt tillgång till fjärrtåg och pendeltåg via Centralstationen samt tunnelbanans samtliga linjer.
Området trafikeras av ett stort antal busslinjer.
Arlanda Express avgår från Centralstationen och tar dig till Arlanda på cirka 18 minuter, vilket ger mycket goda förutsättningar för både nationella och internationella resor.
Det centrala läget gör det enkelt för både medarbetare och besökare att ta sig till och från kontoret.
Idag har lokalen huvudsakligen kontorslandskap i kombination med några mötesrum.
Lokalen erbjuder en inspirerande arbetsmiljö med snedtak, synliga bjälkar och generösa ljusinsläpp.
Höjdpunkter
Ett unikt konferensrum i tornrum med fantastisk utsikt över Stockholm
Unikt konferensrum med exklusiv känsla
Synliga takbjälkar.
Perfekt för kundmöten och workshops
Öppet kontorslandskap med plats för flera arbetsstationer
Flera separata rum / ytor för flexibilitet
Lounge och social yta för pauser och informella möten
Två fullt utrustade pentryn med matplats
Tre WC varav 2 med dusch.
Förråd / lagerutrymme
Mycket god ventilation möjliggör många arbetsplatser
Fiberanslutning finns för snabbt tillträde.
Om lokalen
- Kommun
- Stockholms kommun
- Byggår
- 1881
- Hiss
- Ja
- Tillgänglighet
- Hiss/trappor
- Våning
- Högst upp i huset
- Tillträde
- Enligt överenskommelse
- Objektsnummer
- 41998427
Omgivning
Stockholms innerstad, Kungsholmen, Vasastaden
Kommunikationer
Mycket goda kommunikationer med Stockholms centralstation som erbjuder tillgång till T-bana, pendeltåg, flygbussar, Arlanda express och innerstadsbussarna.
Planlösning
Blandad planlösning med huvudsakligen öppen planlösning samt ett antal arbetsrum och med ett extraordinärt tornrum som idag fungerar som konferensrum.
Parkering
Ja
Service
Kafé Bröd och salt (granne), 7 Eleven, Hemköp, Åhlens och all tänkbar service i närområdet.
Bra lunchrestauranger, flera gym, butiker, med flera.
Vägbeskrivning
Goda kommunikationer till lokalen med närhet till centralstation mitt i Stockholm. Lokalen är placerad vid korsningen/hörnet mellan Vasagatan och Kungsgatan och är enkel att nå med bil, tåg, buss, cykel och till fots.
Närliggande företag
Många väletablerade företag finns i huset och i närområdet.
Övrigt
Fina kontorsytor mitt i stan!
Karta
Bilder på lokalen
fasad.jpg Öppna ytan 2c.jpg Öppna ytan och pentryc.jpg Hörnrum ny bildcc.jpg Utsikt söderut 362.JPG Utsikt västerut 361.JPG Vy från rum mot gården.jpg Öppna ytan.jpg 145 kontorslandskap bild 2c.jpg 145 Kontorslandskap bild 3.jpg 145 kvm entré samt vy mot hörnrumc.jpg 145 pentryc.jpg Entré samt vy mot hörnrumc.jpg Trapphusbild.jpg Trapphus.JPG Interiör 2.jpg Interiör.jpg Pentry-konferensrum.jpg Rum mot gården.jpg Rum mot Vasagatan.jpg Ritning vind 75 och 145 kvm färlagd.jpg tornrum ritning.jpg






















