Vagnvägen 3B, Varberg
loqalo AB
196 m²
Hyra: Ej angiven
Tillträde: Ej angivet
Lokalens egenskaper:
Välkommen till en attraktiv och välplanerad kontorslokal som kombinerar modern design med hög funktionalitet. Lokalen erbjuder en öppen planlösning med generös takhöjd och stora fönsterpartier som skapar ett fantastiskt ljusinsläpp och en luftig, inspirerande arbetsmiljö.
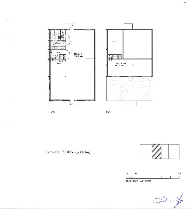
Den flexibla ytan ger goda möjligheter att anpassa lokalen efter verksamhetens behov, oavsett om du önskar öppna arbetsytor eller mer avskilda zoner. Ett entresolplan om ca 38 kvm ger extra utrymme och lämpar sig utmärkt som mötesrum, konferensdel eller loungeyta.
Lokalen är utrustad med kök/pentry, WC samt WC med dusch och omklädningsmöjligheter, vilket bidrar till en hög komfortnivå. Den stilrena interiören och kvalitativa materialvalen gör det enkelt att skapa en representativ arbetsplats som speglar ditt företags profil.
Område:
Belägen i ett attraktivt industriområde med närhet till andra företag och verksamheter. Området erbjuder en dynamisk miljö som passar både etablerade bolag och företag i tillväxt.
Kommunikationer:
Goda kommunikationsmöjligheter med smidig access till större vägar gör det enkelt att ta sig till och från lokalen, både med bil och kollektivtrafik.
Parkering:
Parkeringsmöjligheter finns i anslutning till fastigheten, inklusive elbilsplatser.
Närservice:
I närområdet finns service och faciliteter som förenklar vardagen, och lokalen erbjuder även egna bekvämligheter såsom kök, omklädningsrum och mötesytor.
Snabbfakta:
Kontorsyta: ca 158 kvm
Entresol: ca 38 kvm
Öppen och flexibel planlösning
Generös takhöjd och stort ljusinsläpp
Kök/pentry och mötesmöjligheter
WC samt WC med dusch
Omklädningsrum
Fiberanslutning och elbilsplatser
Har ni frågor eller vill ni boka tid för en visning? Välkommen att kontakta oss på 031-3504900 eller hej@loqalo.se!
Om lokalen
- Kommun
- Varbergs kommun
- Hiss
- Nej
- Objektsnummer
- 41998485








