Lagerlokal, Tagenevägen 21, Norra Göteborg och Hisingen, Hisings Kärra
- 2 116 m²
Nu finns möjlighet att hyra en modern och rymlig lagerlokal i Tagene – ett av Göteborgs mest attraktiva logistikområden, endast tio minuter från cent
Om lokalen
- Lokaltyp
- Lagerlokal
- Total yta
- 2 116 m²
- Adress
- Tagenevägen 21
- Område
- Norra Göteborg och Hisingen
- Kommun
- Göteborgs kommun
- Hiss
- Nej
- Objektsnummer
- 41992881
Beskrivning
Nu finns möjlighet att hyra en modern och rymlig lagerlokal i Tagene – ett av Göteborgs mest attraktiva logistikområden, endast tio minuter från centrum. Lokalen omfattar 2 116 kvm med upp till nio meters fri takhöjd och tre markportar för smidig in- och utlastning, med möjlighet till ytterligare en port.
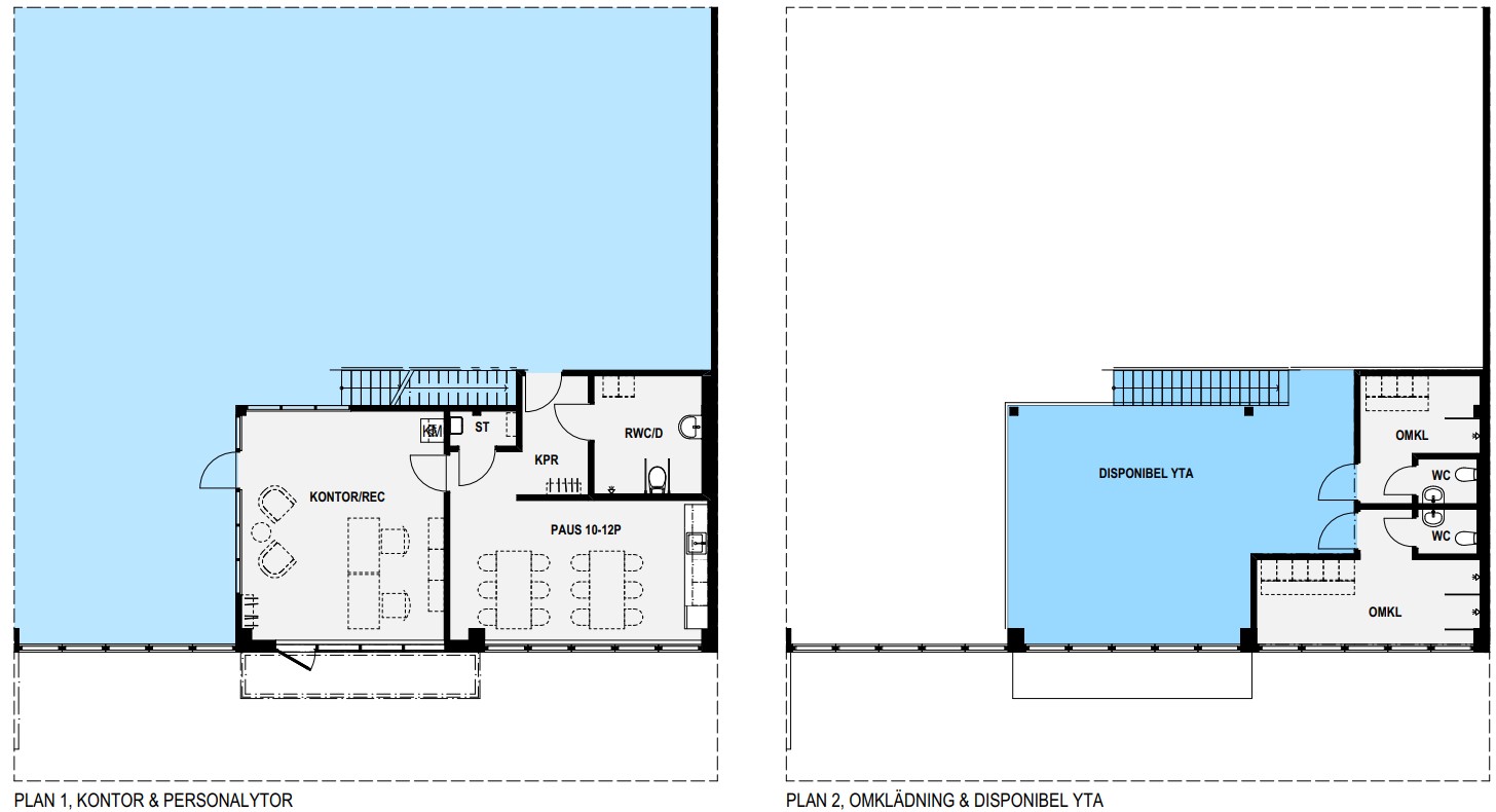
Lokalen kan anpassas efter verksamhetens behov och planeras med entresol där WC, omklädningsrum, pentry, personalytor, kontor och mötesrum ingår. En ny, representativ kundentré samt uppställningsyta om 500–600 kvm kan tillkomma.
Läget i Tagene ger direktaccess till E6 och närhet till Bäckebol Center med handel, service och kollektivtrafik. Fastigheten fräschas upp inför inflyttning, och utformningen sker i nära dialog med ny hyresgäst – perfekt för dig som söker ett effektivt lager, ett välkomnande showroom eller kombinationslokaler med kontor.










