Susvindsvägen 3, Varberg
loqalo AB
679 m²
Hyra: Ej angiven
Tillträde: Ej angivet
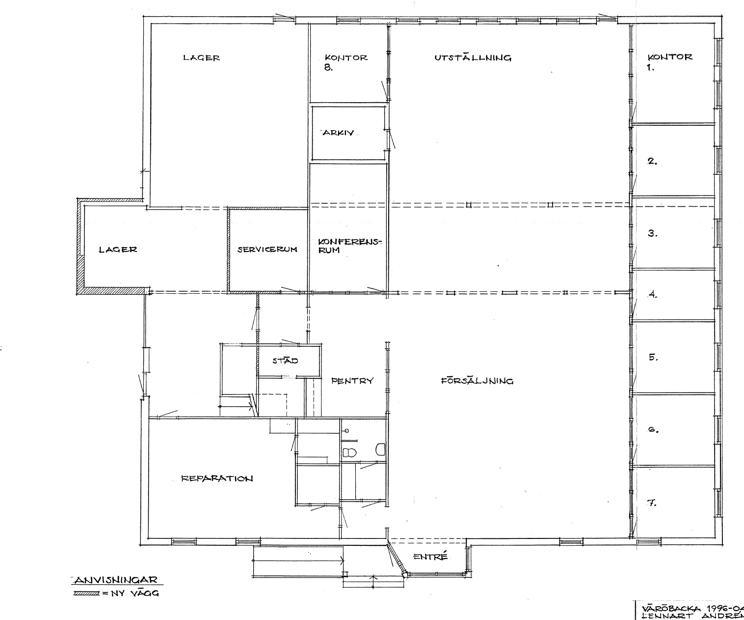
Nu finns möjlighet att hyra en attraktiv och mångsidig lokal om 679 kvm i populära Holmagärde industriområde i Varberg. Lokalen är belägen i entréplan och erbjuder en flexibel planlösning som passar utmärkt för kombination av butik, lager och kontor.
Ytan består av en öppen planlösning med inslag av kontorsrum och konferensrum, vilket skapar en bra balans mellan effektiva arbetsytor och representativa delar. Ett mindre lager med port (ca 2,5 x 2,5 meter) gör det enkelt att hantera leveranser. Lokalen har både en publik entré samt en separat ingång från parkeringen på baksidan, vilket ger god funktionalitet i det dagliga arbetet.
Här finns även pentry, WC samt möjlighet att skapa fler mötesrum efter behov. Lokalen har mekanisk ventilation med kyla för ett behagligt arbetsklimat året om. Goda parkeringsmöjligheter finns i direkt anslutning till lokalen.
🌆 Område
Holmagärde industriområde är ett väl etablerat och expansivt verksamhetsområde i Varberg med närhet till både handel och service. I området finns ett brett utbud av restauranger, butiker och annan service, vilket gör det enkelt för både medarbetare och kunder. Närheten till Varbergs centrum och järnvägsstation ger ytterligare tillgång till stadens fulla utbud.
🚆 Kommunikation
Fastigheten har ett mycket strategiskt läge med närhet till på- och avfart till E6, vilket ger smidiga transporter i både nordlig och sydlig riktning. Goda bussförbindelser finns i området, vilket underlättar pendling för personal. Läget gör det enkelt att nå både Varbergs centrum och övriga regionen.
✅ Punktlista – överblick
📐 679 kvm i entréplan
🏬 Passar butik, lager och kontor
🚪 Lagerdel med port (2,5 x 2,5 m)
🧑💼 Kontor och konferensrum
🍽️ Pentry och WC finns
❄️ Mekanisk ventilation med kyla
🚗 Parkering i direkt anslutning
🔄 Flexibel planlösning och anpassningsbar
👀 Bra skyltläge mot trafikerad gata
📍 Nära E6 – smidiga kommunikationer
📞 Kontakt
Vill du veta mer eller boka visning?
Varmt välkommen att kontakta oss på loqalo – vi ser fram emot att hjälpa dig hitta rätt lokal för din verksamhet!
Lokaltyper
Typ: Kontor
Minsta storlek: 679 m²
Största storlek: 679 m²
Annonsinformation
Publicerad: 2026-03-24
Objektsnummer: 41997682
Karta
Bilder på lokalen
Susvindsvägen 3 Susvindsvägen 3 Susvindsvägen 3 Susvindsvägen 3 Susvindsvägen 3 Susvindsvägen 3 Susvindsvägen 3 Susvindsvägen 3 Susvindsvägen 3 Susvindsvägen 3 Susvindsvägen 3 Susvindsvägen 3 Susvindsvägen 3 Susvindsvägen 3 Susvindsvägen 3 Susvindsvägen 3 Susvindsvägen 3 Susvindsvägen 3 Susvindsvägen 3 Susvindsvägen 3





















