Stakebergsvägen 3, Stenkullen
MIKE Kommersiella Lokaler AB
Annons plus380 m²
Hyra: Ej angiven
Tillträde: Ej angivet
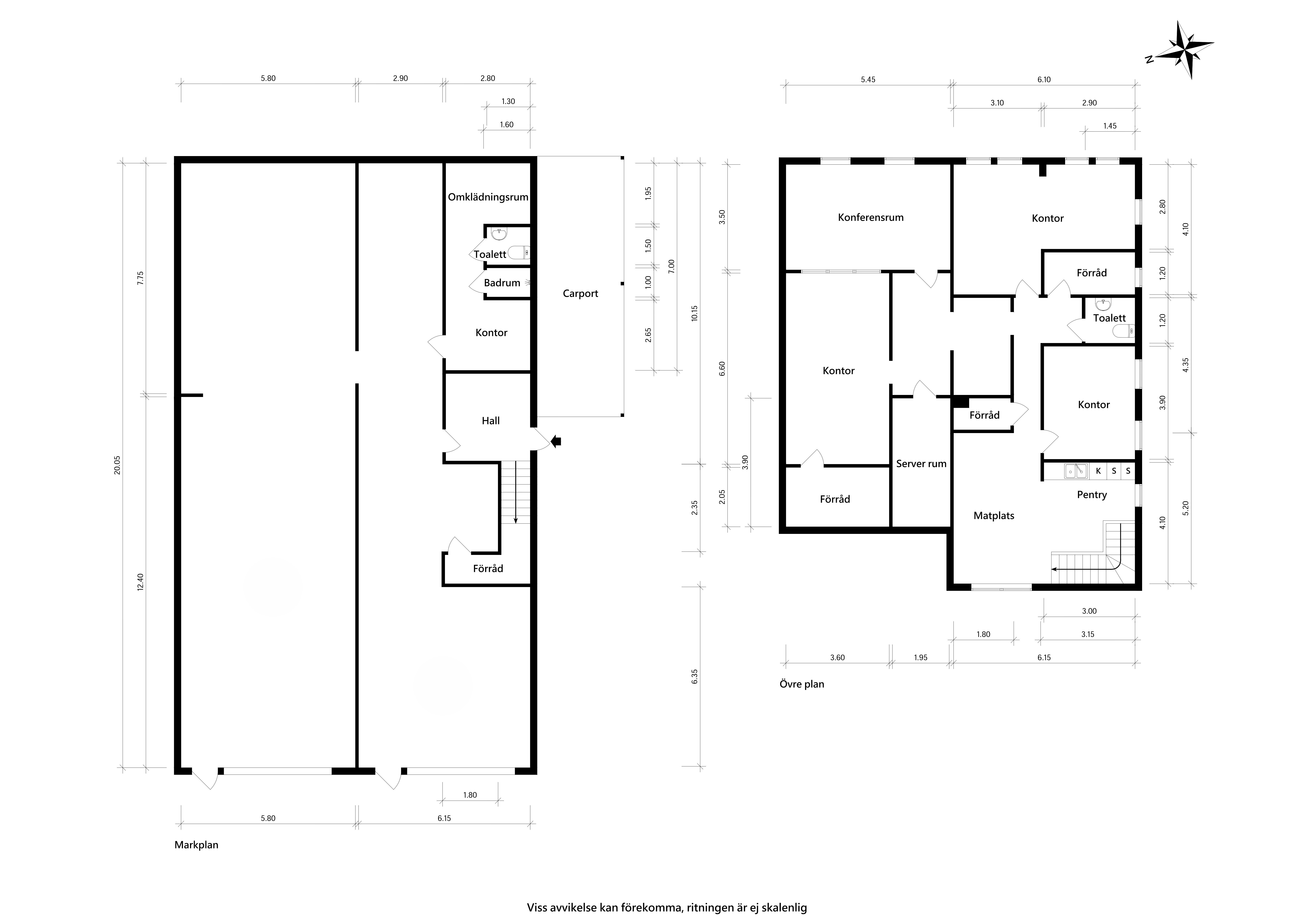
Kontor och lager i Stenkullen
Välkommen till Stakebergsvägen 3 i Stenkullen. Här finns möjlighet att hyra en kombinerad kontors- och lagerlokal om totalt ca 380 kvm. Lokalen är belägen på husets gavel och fördelad över två plan. På entréplanet finns lager-/produktionsutrymmen, om ca 240 kvm, med dubbla portar som mäter 4 * 4 meter. Som högst är lagerutrymmet 7 meter. Golvbrunn finns men inte oljeavskiljare. På övre plan finns kontor och personalutrymmen om ca 140 kvm. Parkeringsplatser finns att tillgå vid husets gavel.
Om lokalen
- Kommun
- Lerums kommun
- Objektsnummer
- 41993079
Karta
Bilder på lokalen
Stakebergsvägen 3 Stakebergsvägen 3 Stakebergsvägen 3 Stakebergsvägen 3 Stakebergsvägen 3 Stakebergsvägen 3 Stakebergsvägen 3 Stakebergsvägen 3 Stakebergsvägen 3 Stakebergsvägen 3 Stakebergsvägen 3 Stakebergsvägen 3 Stakebergsvägen 3 Stakebergsvägen 3 Stakebergsvägen 3 Stakebergsvägen 3 Stakebergsvägen 3 Stakebergsvägen 3



















