Sidensvansvägen 8, Sollentuna kommun, Sjöberg
Fastpartner AB
Annons max1 348 m²
Hyra: Ej angiven
Tillträde: Enligt överenskommelse
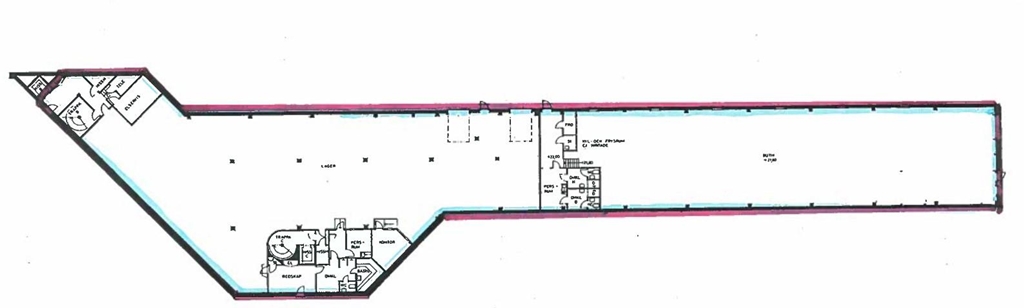
Höglager med flexibel kontorsyta.
Välkommen till Sidensvansvägen 8 en flexibel och välbelägen fastighet med goda möjligheter för olika typer av verksamheter. Huvuddelen utgörs av höglager, med flexibel yta för kontor från cirka 200 kvm, vilket skapar goda förutsättningar att anpassa lokalen efter verksamhetens behov.
Lokalerna är ljusa och funktionella med bra planlösning, och fastigheten har ett strategiskt läge med närhet till kommunikationer, service och goda parkeringsmöjligheter i området.
Perfekt för företag som söker en praktisk och tillgänglig lokal med utvecklingspotential.
Lokaltyper
Typ: Kontor, Lagerlokal
Minsta storlek: 1348 m²
Största storlek: 1348 m²
Villkor lokal
Tillträde: Enligt överenskommelse
Kommunikation
Läget erbjuder goda kommunikationer med bussförbindelser till både Sollentuna centrum och Danderyds sjukhus, där anslutning till tunnelbana finns. Närheten till större trafikleder som E4 och E18 ger smidig access till Stockholm och övriga regionen, vilket gör läget attraktivt för både personal och kunder
Planlösning
Öppen eller rumsindelat
Annonsinformation
Publicerad: 2026-04-02
Objektsnummer: 41997933







