Selins Väg 2, Stora Höga
MIKE Kommersiella Lokaler AB
Annons plus1 070 m²
Hyra: Ej angiven
Tillträde: Ej angivet
Ljus och välplanerad butikslokal med bra exponeringsläge!
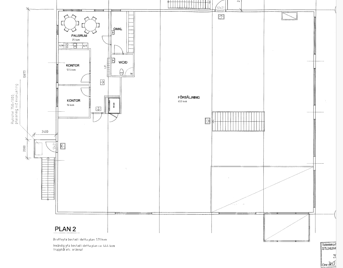
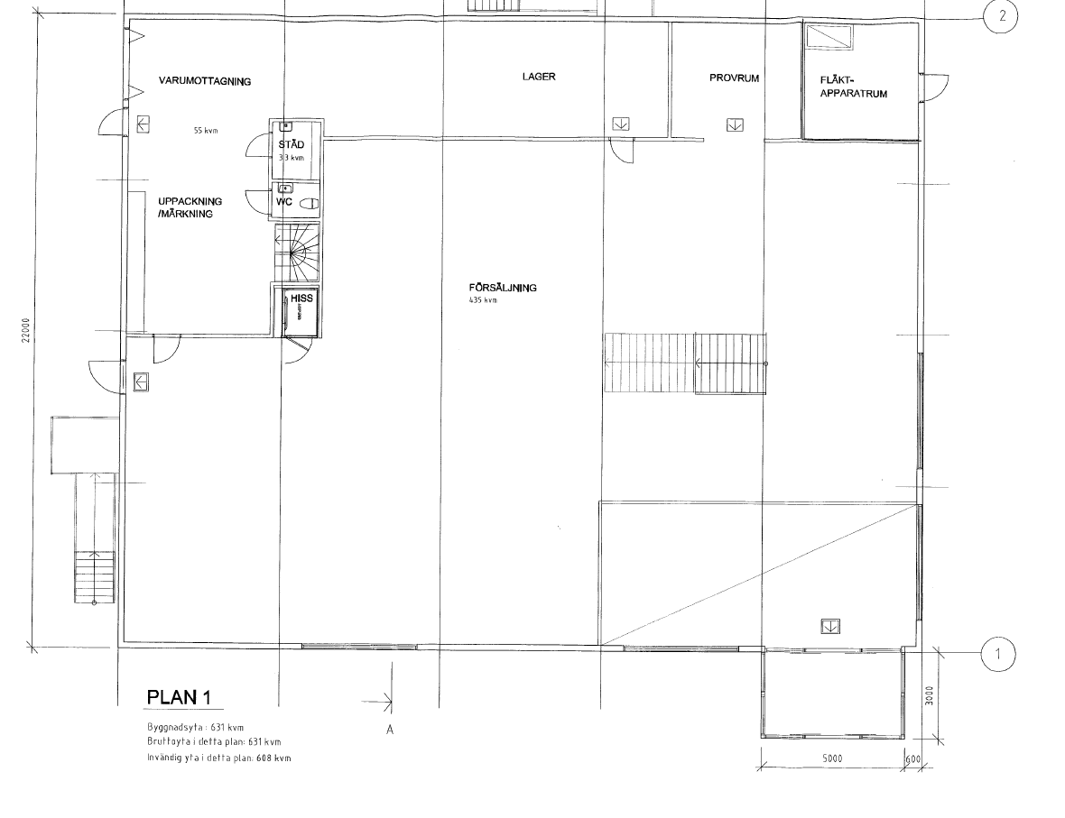
Nu finns möjligheten att etablera er verksamhet i denna moderna butikslokal, färdigställd 2017. Lokalen, som är fördelad över två våningsplan, håller ett genomgående gott skick och erbjuder en trivsam och representativ miljö för din verksamhet. Entréplanet erbjuder försäljningsyta, varumottagning samt lagerytor. Övre planet inrymmer försäljningsyta, personalutrymmen samt kontor. Med Willys som granne, i centrala Stora Höga, har du ett mycket bra skyltläge och goda parkeringsmöjligheter i direkt anslutning - faktorer som skapar både synlighet och tillgänglighet för kunder och besökare. Lokalen kan anpassas efter behov, vilket ger goda förutsättningar att skapa en lösning som passar just din verksamhet. Kontakta oss på MIKE för mer info!
Egenskaper
Om lokalen
- Kommun
- Stenungsunds kommun
- Byggår
- 2017
- Objektsnummer
- 41997543




















