Lagerlokal, Södra deltavägen 3B, Norra Göteborg och Hisingen, Göteborg
- 3 615 m²
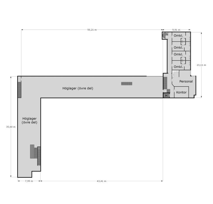
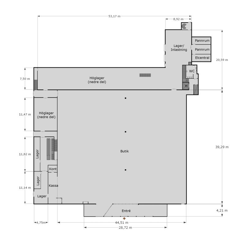
Lokalen omfattar totalt 3 615 kvadratmeter fördelat på två våningsplan och lämpar sig väl för större varuhusverksamhet. Ytorna är väldisponerade med
Om lokalen
- Lokaltyp
- Lagerlokal
- Total yta
- 3 615 m²
- Adress
- Södra deltavägen 3B
- Område
- Norra Göteborg och Hisingen
- Kommun
- Göteborgs kommun
- Hiss
- Nej
- Objektsnummer
- 41925166
Beskrivning
Lokalen omfattar totalt 3 615 kvadratmeter fördelat på två våningsplan och lämpar sig väl för större varuhusverksamhet. Ytorna är väldisponerade med stora sammanhängande butikytor i kombination med funktionella lagerytor. På fastighetens baksida finns en lastzon som möjliggör smidig och effektiv varumottagning. Lokalen har även god flexibilitet och kan vid behov anpassas för användning som centrallager.
Fastigheten är belägen på Södra Deltavägen 3B i ett etablerat handels och verksamhetsområde. Läget erbjuder mycket god kommunikation med närhet till större trafikleder, vilket ger smidig tillgänglighet både för kunder, personal och transporter. Området är lätt att nå med bil och även kollektivtrafik finns på kort avstånd. Parkeringsmöjligheterna är mycket goda med generösa ytor i direkt anslutning till lokalen.
I närområdet finns flera etablerade handelsaktörer, lager och verksamheter, vilket skapar ett attraktivt och kommersiellt starkt läge för volymhandel och logistikintensiv verksamhet.
Förhyrning av lokalen är möjlig fram till och med den 31 januari 2028.
• 3 615 kvadratmeter fördelat på två våningsplan
• Anpassad för större varuhus eller centrallager
• Stora butik och lagerytor med effektiv planlösning
• Lastzon för varumottagning på fastighetens baksida
• Mycket goda parkeringsmöjligheter
• Utmärkta kommunikationer och närhet till större trafikleder
• Etablerat handels och verksamhetsområde
Har ni frågor eller vill boka tid för visning?
Välkomna att kontakta oss på 031-350 49 00 eller hej@loqalo.se














