Norra Hamn 3, Munktell, Eskilstuna
Tunafastigheter i Eskilstuna AB
Annons plus192 m²
Hyra: Ej angiven
Tillträde: Enligt överenskommelse. Enligt överenskommelse
Flexibel och rymlig lokal om cirka 192 kvadratmeter med generös takhöjd, belägen nordväst om stadskärnan i det attraktiva Munktellområdet.
Lokal om cirka 192 kvadratmeter belägen nordväst om stadskärnan i det växande Munktellområdet.
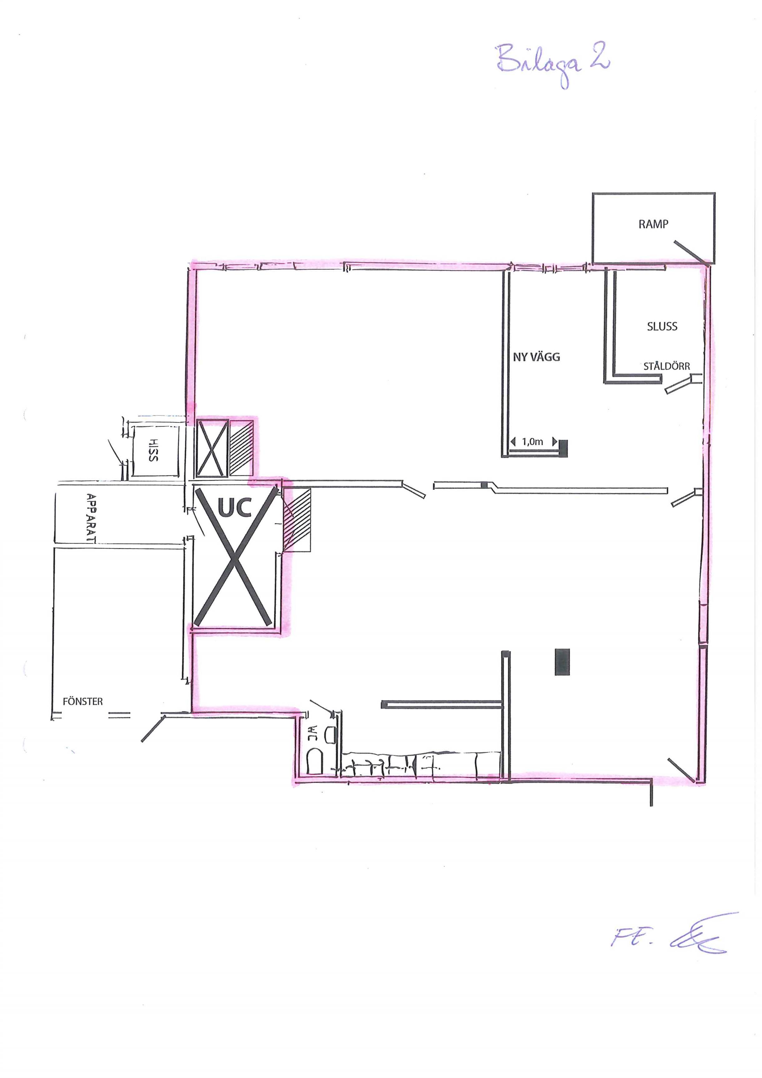
Ytan består huvudsakligen av tre öppna rum med en generös takhöjd. Innerväggarna går att slås ned för att anpassa lokalen till era specifika behov. Den flexibla planlösningen möjliggör flera användningsområden såsom industri, verkstad, kontor eller lager. Lokalen är utrustad med toalett samt kök med diskmaskin och spis, vilket ger god funktionalitet för daglig verksamhet.
Parkering finns i direkt anslutning till lokalen. Närhet till Munktellstaden med gångavstånd till populära lunchrestauranger, grönområden och badhuset.
Sammanfattning
• Snabb access till E20 (ca 5 min med bil)
• Anpassningsbar planlösning
• Generös takhöjd
• Parkering i direkt anslutning
Dokument
Lokaltyper
Typ: Kontor, Lagerlokal
Minsta storlek: 192 m²
Största storlek: 192 m²
Fastighet
Fastighetsbeteckning: Najaden 1
Byggnad
Byggår: 1973
Uppvärmning: Fjärrvärme
Egenskaper
Villkor lokal
Tillträde: Enligt överenskommelse. Enligt överenskommelse
Omgivning
Beläget mitt emot Eskilstunaån. Därutöver cirka 200 meter till Munktellområdet och 600 meters promenad till Munktellbadet.
Parkeringsmöjlighet: Parkeringar finns i anslutning till fastigheten.
Närservice: Gångavstånd till Väster (matbutik, yrkesgrossister, gym, företagskluster) och Munktellområdet (restaurang, gym & kultur).
Företag i närheten: Lantmännen Maskin, Karl Hedin Bygghandel och Renta.
Kommunikation
Cirka 600 meter till Munktellstadens busshållplats och cirka 400 meter till Norra Hamn busshållsplats.
Annonsinformation
Publicerad: 2025-12-19
Objektsnummer: 41995169









