Malmbrogatan 6 B, Centrum, Kalmar
Stenvalvet
Annons plus211 m²
Hyra: Ej angiven
Tillträde: Enligt överenskommelse
Ledig lokal i markplan i centrala Kalmar!
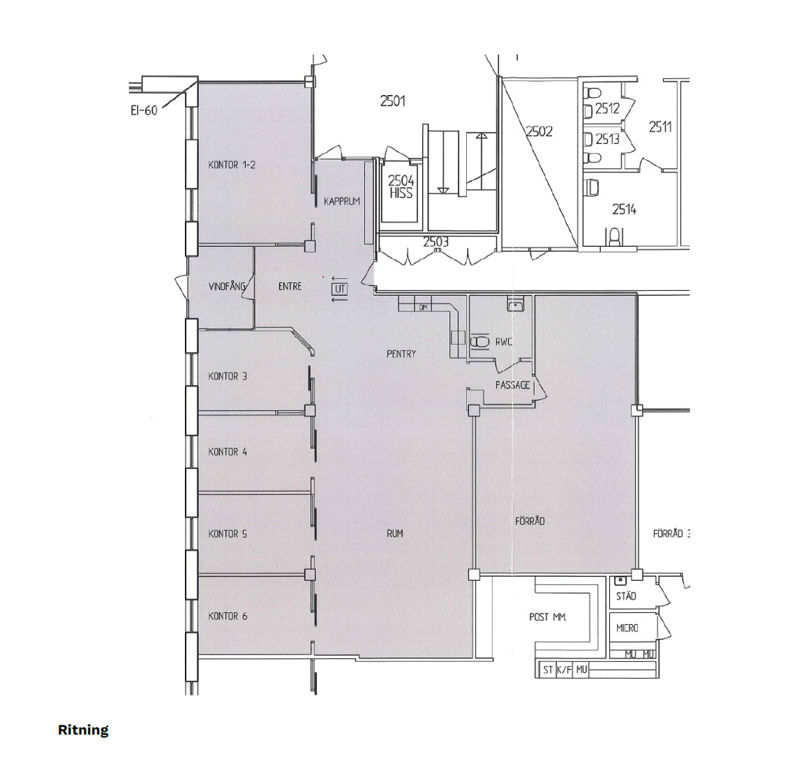
Nu finns möjligheten att hyra lokal med toppenläge mitt i centrala Kalmar! Lokalen ligger i markplan med egen entré och består av fyra kontor, grupprum/konferensrum, förråd, wc och en stor öppen yta med kök. En mycket fin lokal med bra ljusinsläpp.
Önskas ytterligare yta för förvaring finns förråd att hyra till.
Kontorets läge ger närhet till stadens utbud av restauranger, caféer, gym och butiker. Omgivningen är vacker och vill du ut och promenera på lunchen finns fina promenadstråk precis runt hörnet eller sittbänkar precis utanför entrén om du vill avnjuta en kopp kaffe utomhus.
Möjlighet att hyra till parkering i fastigheten finns och flertalet cykelställ finns runtom byggnaden om du hellre tar cykeln till jobbet. Busshållplats finns i anslutning till fastigheten och tågstation ligger på gångavstånd.
Varmt välkomna att kontakta oss för mer information och visning!
Dokument
Lokaltyper
Typ: Kontor, Butikslokal, Övrig lokal
Minsta storlek: 211 m²
Största storlek: 211 m²
Våningsplan: Markplan
Byggnad
Byggår: 1980
Renoveringsår: 1991
Villkor lokal
Tillträde: Enligt överenskommelse
Omgivning
Den här fastigheten är belägen i centrala Kalmar, med enbart några minuters promenad in till stadskärnan. Där finner du bland annat butiker, restauranger, frisörer, gym och apotek. Runt om fastigheten finns en vacker omgivning med fina promenadstråk.
Parkeringsmöjlighet: Möjlighet att hyra garageplats i fastigheten finns.
Närservice: All slags service finns lätt tillgängliga och det finns ett antal restauranger och fik i omgivningen. Allra närmst finner du restaurangen Max, Subway och Pizzapalatset som ligger i Valfiskens ena byggnad.
Kommunikation
I och med fastighetens belägenhet finns Kalmars kommunikationer runt hörnet.
Planlösning
- En öppen central del med pentry.
- Kontorsutrymmen i olika storlekar
- En stor toalett
- Stor förrådsyta
- Lokalen har stora fönster som ger ett fint ljusinsläpp
- Egen entré
Annonsinformation
Publicerad: 2025-11-26
Objektsnummer: 41994515

















