Kontor, Lilla torget 3, Alingsås, Göteborg
- 200–525 m²
Flexibelt och representativt kontor med bästa skyltläge mitt i Alingsås centrum Lokalens egenskaper På attraktiva Lilla Torget 3 erbjuds nu ett m
Om lokalen
- Lokaltyp
- Kontor
- Total yta
- 200–525 m²
- Adress
- Lilla torget 3
- Område
- Alingsås
- Kommun
- Göteborgs kommun
- Hiss
- Ja
- Objektsnummer
- 41995134
Beskrivning
Flexibelt och representativt kontor med bästa skyltläge mitt i Alingsås centrum
Lokalens egenskaper
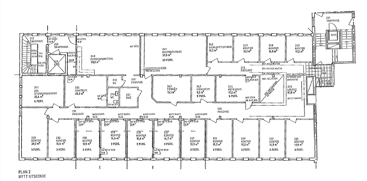
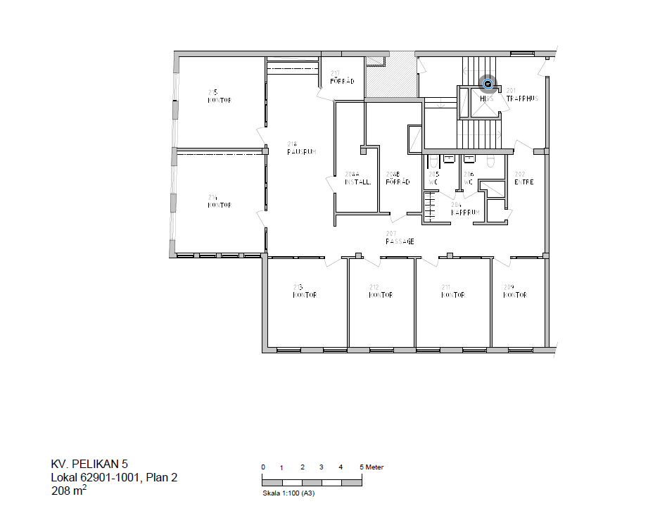
På attraktiva Lilla Torget 3 erbjuds nu ett modernt och mycket flexibelt kontor om 200–525 kvm, beläget på plan 1 mitt i Alingsås centrum. Lokalen präglas av generöst ljusinsläpp och en genomtänkt planlösning som enkelt kan anpassas efter verksamhetens behov – oavsett om ni önskar öppet kontorslandskap, cellkontor eller en kombination av båda.
Här finns eget kök/pentry, WC samt mötesrum i den egna lokalen, vilket skapar en komplett och funktionell arbetsmiljö. Mekanisk ventilation med komfortkyla bidrar till ett behagligt inomhusklimat året runt. Det strategiska skyltläget ger mycket god exponering i city och stärker företagets synlighet.
Lokalen är belägen i Alingsås centrum, ett levande och attraktivt stadsläge med närhet till butiker, caféer, restauranger och service. Här finns ett brett utbud av lunchalternativ, handel och vardagsservice – perfekt för både medarbetare och besökare. Området präglas av stadsliv, puls och god tillgänglighet.
Fastigheten är lätt att hitta och nå, med goda kommunikationer till och från centrala Alingsås. Bussförbindelser finns i nära anslutning och Alingsås station nås enkelt till fots. För bilpendlare är läget mycket smidigt med snabb anslutning till E20, vilket gör det enkelt att pendla både mot Göteborg och övriga regionen. Gott om allmän parkering finns i närområdet.
Snabbfakta
- 200–525 kvm kontor i centralt cityläge
- Plan 1 med bra tillgänglighet
- Flexibel och anpassningsbar planlösning
- Ljust kontor med fint ljusinsläpp
- Eget kök/pentry, WC och mötesrum
- Mekanisk ventilation med kyla
- Strategiskt skyltläge med mycket god exponering
- Gott om parkering i närheten
- Nära service, restauranger och kommunikationer
- Snabb och enkel access till E20
Har ni frågor eller vill ni boka tid för en visning?
Välkommen att kontakta oss på 031-3504900 eller hej@loqalo.se
!






















