Butikslokal, Leirviksgatan 33, Kista
- 110 m²
- Enligt överenskommelse
Etablera din verksamhet i nyproducerat område – 110 kvm med stora glaspartier
Om lokalen
- Lokaltyper
- Butikslokal / Kontor
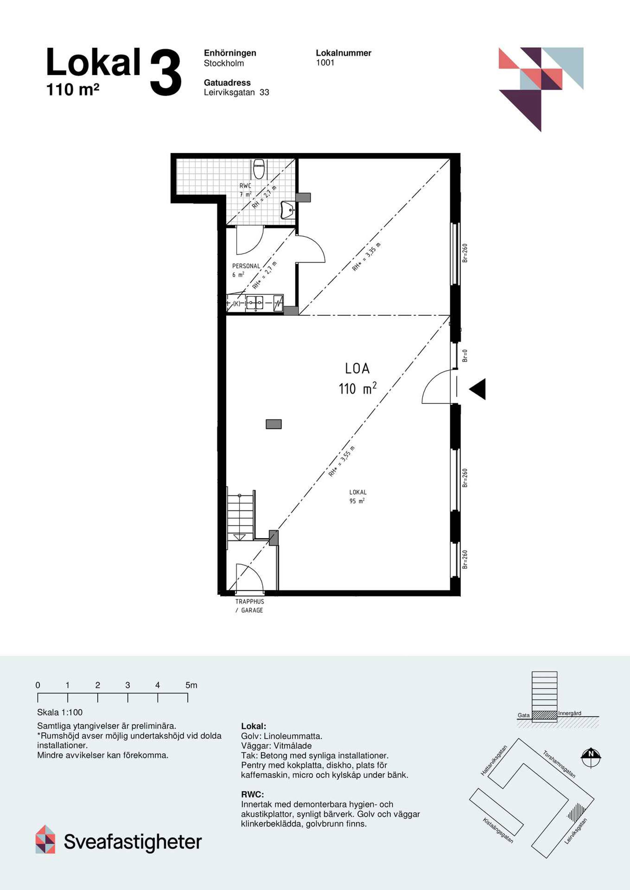
- Total yta
- 110 m²
- Adress
- Leirviksgatan 33
- Område
- Kista
- Kommun
- Stockholms kommun
- Tillträde
- Enligt överenskommelse
- Objektsnummer
- 41996483
Beskrivning
Etablera din verksamhet i nyproducerat område – 110 kvm med stora glaspartier
Nu finns möjlighet att etablera din verksamhet i en attraktiv nyproducerad lokal om 110 kvm på Leirviksgatan 33. Lokalen erbjuder generös takhöjd och stora glaspartier som skapar ett fantastiskt ljusinsläpp och ger utmärkt exponering mot omgivningen.
Den öppna planlösningen gör lokalen idealisk för kontor, butik, showroom eller serviceverksamhet. Här finns möjlighet att skapa en modern och representativ miljö anpassad efter just din verksamhets behov.
Fastigheten är belägen i ett expansivt och nyproducerat område med många nyinflyttade bostäder. Här ges en unik chans att tidigt etablera sig och bygga upp en stabil kundbas i takt med att området växer.
Hyra: 22 916 kr/mån.
Vatten ingår i hyran.
Värme tillkommer.
Tillträde möjligt våren 2026.
Varmt välkomna att höra av er vid intresse, ta chansen att göra detta er näst Room for business!






