Butikslokal, Leirviksgatan 19, Kista
- 98 m²
- Enligt överenskommelse
Nyproducerad lokal med generös takhöjd och stora fönster – 98 kvm
Om lokalen
- Lokaltyper
- Butikslokal / Kontor
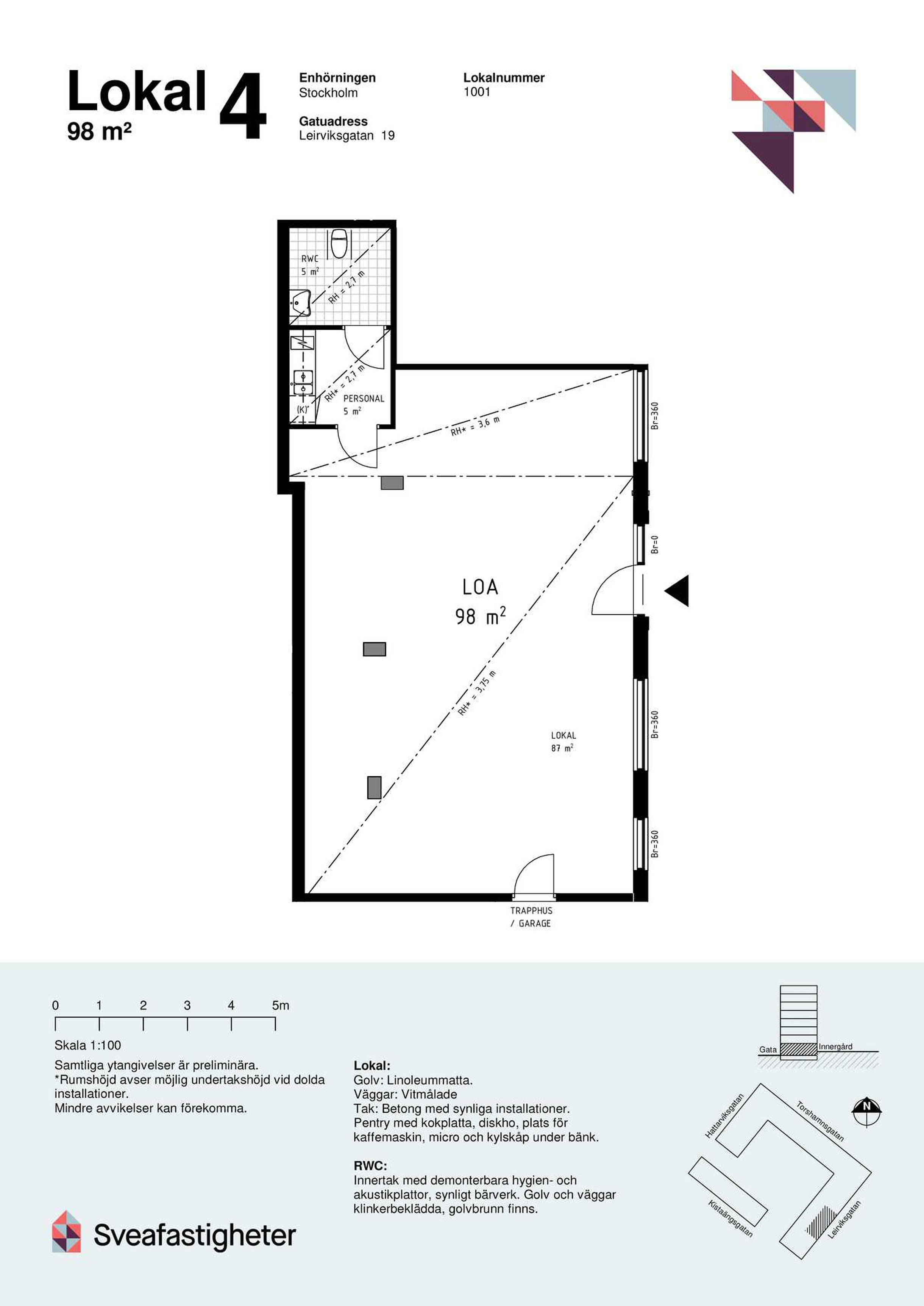
- Total yta
- 98 m²
- Adress
- Leirviksgatan 19
- Område
- Kista
- Kommun
- Stockholms kommun
- Tillträde
- Enligt överenskommelse
- Objektsnummer
- 41996757
Beskrivning
Nyproducerad lokal med generös takhöjd och stora fönster – 98 kvm
Välkommen till Leirviksgatan 19 och denna nyproducerade lokal om 98 kvm med generös takhöjd och stora fönster som ger ett fantastiskt ljusinsläpp. Här har du möjlighet att bli första hyresgästen och sätta din prägel på en helt ny lokal.
Planlösningen är flexibel med öppen yta som lämpar sig väl för serviceverksamhet, kontor eller butik. Personalutrymme och RWC finns i lokalen. Den moderna standarden och den genomtänkta utformningen skapar en representativ och trivsam miljö för både kunder och medarbetare.
Området är i stark utveckling med många nyproducerade bostäder och företag som etablerar sig i närområdet, vilket ger ett växande kundunderlag och goda affärsmöjligheter att vara med ifrån start.
Yta: 98 kvm
Hyra: 20 416 kr/mån
Tillkommer: Fastighetsskatt och värme
Vatten ingår
Inflytt: Våren 2026
Observera: Restaurangverksamhet är ej tillåten i lokalen.
Ett unikt tillfälle att etablera din verksamhet i en helt ny lokal i ett expansivt område.
Har ni önskan att öppna er Room for business här, hör gärna av er iså fall för vidare information!






