Järnmalmsgatan 1, Tingstadsvassen, Göteborg
Palmung Mellin Fastigheter
Annons plus1 955 m²
Hyra: Ej angiven
Tillträde: Snabbt tillträde är möjligt
Nu finns möjlighet att hyra en effektiv lager- och logistiklokal i ett av Göteborgs mest strategiska verksamhetsområden – Ringön. Lokalen erbjuder ca 1 955 kvm med stor, öppen lageryta i markplan samt kontor om ca 160 kvm. Lokalen har två rejäla portar med ca 5,0 respektive ca 4,3 meters höjd samt en gårdsyta utanför. Utöver lager finns kontor, kundmottagning, omklädningsrum och personalytor.
Nu finns möjlighet att hyra en effektiv lager- och logistiklokal i ett av Göteborgs mest strategiska verksamhetsområden – Ringön.
Ytorna kan till exempel vara lämpliga för E-handel & last mile-logistik, distributionsverksamhet, grossist- eller serviceverksamhet, lätt produktion eller verkstad.
Lokalen erbjuder ca 1 955 kvm med stor, öppen lageryta i markplan samt kontor om ca 160 kvm. Lokalen har två rejäla portar med ca 5,0 respektive ca 4,3 meters höjd samt en gårdsyta utanför.
Utöver lager finns kontor, kundmottagning, omklädningsrum och personalytor. Höjden i lagerytan är mellan 5 och 5,5 meter till underkantbalk.
Entresolplan uppgår till ca 60 kvm där det även finns WC, WC/dusch och omklädningsrum.
Tak och väggar i lagerytan är målade i vitt och lokalen är utrustad med LED-belysning.
Tvätthallen med två motoriserade vikportar byggdes 2021. Hallen är försedd med ny betongplatta med fall till tvättränna.
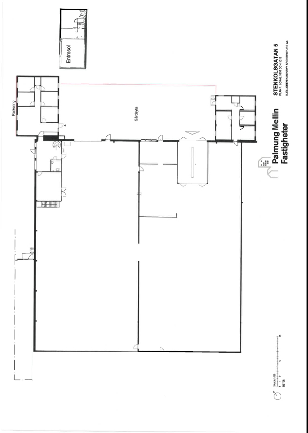
Lokalen har även en egen gårdsyta i området utanför portarna (se markering i bifogad planskiss).
Det finns möjlighet till snabbt tillträde och vi diskuterar gärna lokalanpassningar efter era behov!
Område
Fastigheten har ett mycket centralt läge på Ringön vid Järnmalmsgatan/Stenkolsgatan. Närheten till Hisingsbron och de stora trafiklederna E6, E20 och E45 ger snabba transporter både in till city och ut i regionen.
Ringön är ett industriområde på Hisingen som ligger i centrala Göteborg. Området ramas in av Hisingsbron i väst, Tingstadstunneln i öst, Göta älv i söder och Lundbyleden i norr.
Parkering
Utöver gårdsytan finns viss ingående parkering för personal och besökare i anslutning till lokalen. Därutöver finns möjlighet att hyra ytterligare parkeringsplatser eller P-tillstånd med parkering på fastigheten.
Kommunikation
Hållplatsen Stenkolsgatan ligger närmast och buss 47 tar dig till Backaplan på 4 minuter. Stationerna Frihamnen och Backaplan trafikeras av flertalet linjer med några minuters färdväg in till centralstationen.
Lokaltyper
Typ: Produktionslokal, Lagerlokal, Övrig lokal, Verkstad, Kontor / Lager, Logistiklokal
Minsta storlek: 1955 m²
Största storlek: 1955 m²
Våningsplan: Markplan
Byggnad
Byggår: 1968
Renoveringsår: 2021
Villkor lokal
Tillträde: Snabbt tillträde är möjligt
Omgivning
Parkeringsmöjlighet: Ja
Annonsinformation
Publicerad: 2024-09-30
Objektsnummer: 41980497
Karta
Bilder på lokalen
Lamb1.jpg Planskiss 1955 kvm.jpg Lambertsson2.jpg Lamb2.jpg Lamb3.jpg Lamb4.jpg Lambertsson3.jpg Lambertsson7.jpg Lamb9.jpg Lamb6.jpg Lamb7.jpg Lamb8.jpg Lambertsson12.jpg Lambertsson13.jpg Lambertsson15.jpg Lamb5.jpg Ext1.JPG Ext2.JPG IMG_5252.JPG IMG_5253.JPG Ext5.JPG Konferensrum.png Litet kontor3.png Litet kontor1.png Litet kontor2.png Lambertsson1.jpg



























