Ingela Gathenhielms gata 7, Södra Göteborg, Göteborg
loqalo AB
185 m²
Hyra: Ej angiven
Tillträde: Ej angivet
Lokalens egenskaper:
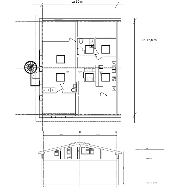
Nu finns möjlighet att hyra en kombilokal med både lager och kontor på Ingela Gathenhielms gata 7 i Högsbo industriområde. Lokalen erbjuder en funktionell uppdelning där lagerytan är belägen i markplan och kontorsdelen ligger direkt ovanför med separat ingång från gården.
Lagerytan omfattar ca 59 kvm och består av en helt öppen volym med högt i tak samt en stor port om cirka 4 x 4 meter, vilket ger goda förutsättningar för smidig in- och utlastning.
Kontorsdelen håller hög standard och är utrustad med ett fullutrustat kök. Här finns även två WC med kakel och klinker, varav det ena är utrustat med dusch och tvättmaskin. Takhöjden i delar av kontoret är lägre, vilket återspeglas i en anpassad hyresnivå.
Område:
Fastigheten är belägen i Högsbo industriområde, ett etablerat verksamhetsområde i sydvästra Göteborg med närhet till större trafikleder och god tillgänglighet.
Området består av en blandning av industri, lager och kontor och erbjuder en välfungerande miljö för företagande.
Kommunikationer:
Goda kommunikationer med både bil och kollektivtrafik. Området nås enkelt via närliggande leder och har busshållplatser i närheten som kopplar vidare till centrala Göteborg.
Parkering:
Parkering finns i anslutning till fastigheten.
Närservice:
I närområdet finns tillgång till service såsom lunchrestauranger och andra verksamheter.
Snabbfakta:
Lageryta: ca 59 kvm
Kontorsyta: 126kvm
Kombilokal med lager och kontor
Stor port ca 4 x 4 meter
Högt i tak i lagerdelen
Kontor med separat entré
Fullutrustat kök
2 WC varav en med dusch och tvättmaskin
Lägre takhöjd i delar av kontoret
Har ni frågor eller vill ni boka tid för en visning? Välkommen att kontakta oss på 031-3504900 eller hej@loqalo.se!
Lokaltyper
Typ: Lagerlokal
Minsta storlek: 185 m²
Största storlek: 185 m²
Annonsinformation
Publicerad: 2026-04-16
Objektsnummer: 41998229





