Lagerlokal, Hudiksvallsgatan 1, Odenplan, Stockholm
- 649 m²
- Omgående
Hudiksvallsgatan 1 –lokal med egen ramp
Om lokalen
- Lokaltyp
- Lagerlokal
- Total yta
- 649 m²
- Adress
- Hudiksvallsgatan 1
- Område
- Odenplan
- Kommun
- Stockholms kommun
- Tillträde
- Omgående
- Objektsnummer
- 41996167
Beskrivning
Hudiksvallsgatan 1 –lokal med egen ramp
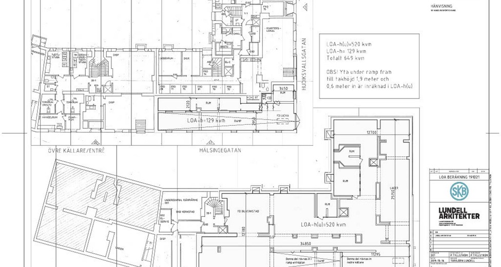
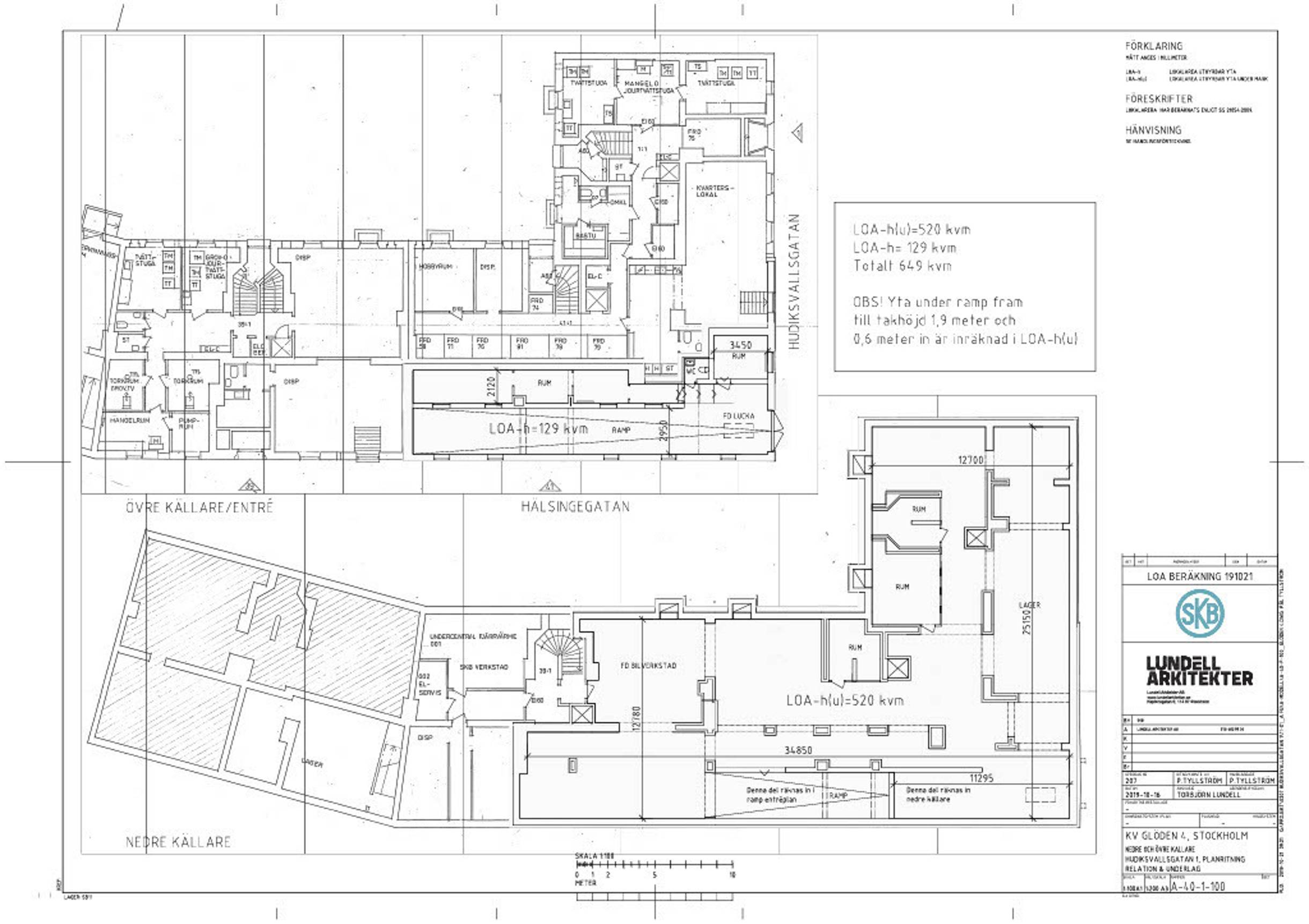
På attraktiva Hudiksvallsgatan 1 erbjuds nu en rå och flexibel lokal om totalt 629 kvm, perfekt för verksamheter med behov av yta, takhöjd och logistik i fokus. Lokalen har en takhöjd om ca 3,2 meter och en industriell karaktär som lämpar sig väl för lager, showroom, studio, verkstad eller lätt produktion.
Av den totala ytan utgör ca 129 kvm ramp ner i lokalen, vilket ger smidig intern logistik och goda möjligheter för in- och utlastning. Det är inte möjligt att köra ner vanliga personbilar, men mindre elbilar, elcyklar, lastcyklar och liknande fordon fungerar utmärkt, vilket gör lokalen särskilt intressant för moderna och hållbara verksamheter.
Lokalen präglas av öppna ytor, robusta materialval och tydlig industrikänsla med synliga installationer. Det finns även goda möjligheter att enkelt skapa en kontorsdel om ca 25 kvm, exempelvis för administration, mötesrum eller personalutrymme, utan att påverka lagerytan i någon större utsträckning. Planlösningen är flexibel och kan anpassas efter verksamhetens behov.
Läget på Hudiksvallsgatan ger närhet till både city, Norra Djurgårdsstaden samt goda kommunikationer.
Kort fakta:
Total yta: 629 kvm
Lageryta: ca 520 kvm
Rampyta: ca 129 kvm
Möjlighet att skapa kontorsdel om ca 25 kvm
Takhöjd: ca 3,2 m
Ej tillgänglig för vanliga personbilar att köra ner i lokalen
Anpassningsbar lokal med många användningsområden
Se gärna video av lokalen genom att klicka på Video eller via följande länk:
https://vimeo.com/1160981665?share=copy&fl=sv&fe=ci
Är detta er nästa Room for business?
Välkommen att höra av er vid intresse.
Karta
Bilder på lokalen
Hudiksvallsgatan 1 Hudiksvallsgatan 1 Hudiksvallsgatan 1 Hudiksvallsgatan 1 Hudiksvallsgatan 1 Hudiksvallsgatan 1 Hudiksvallsgatan 1 Hudiksvallsgatan 1 Hudiksvallsgatan 1 Hudiksvallsgatan 1 Hudiksvallsgatan 1 Hudiksvallsgatan 1 Hudiksvallsgatan 1 Hudiksvallsgatan 1 Hudiksvallsgatan 1 Hudiksvallsgatan 1 Hudiksvallsgatan 1 Hudiksvallsgatan 1 Hudiksvallsgatan 1 Hudiksvallsgatan 1 Hudiksvallsgatan 1 Hudiksvallsgatan 1 Hudiksvallsgatan 1 Hudiksvallsgatan 1 Hudiksvallsgatan 1 Hudiksvallsgatan 1 Hudiksvallsgatan 1 Hudiksvallsgatan 1 Hudiksvallsgatan 1 Hudiksvallsgatan 1 Hudiksvallsgatan 1 Hudiksvallsgatan 1 Hudiksvallsgatan 1 Hudiksvallsgatan 1 Hudiksvallsgatan 1 Hudiksvallsgatan 1





































