Kontor, Hästholmsvägen 25, Hammarby Sjöstad, Nacka
- 80 m²
- 14 667 kr/mån
Om lokalen
- Lokaltyp
- Kontor
- Total yta
- 80 m²
- Adress
- Hästholmsvägen 25
- Område
- Hammarby Sjöstad
- Kommun
- Nacka kommun
- Objektsnummer
- 41995725
- Hyra
-
14 667 kr/mån
2 200 kr/m²/år
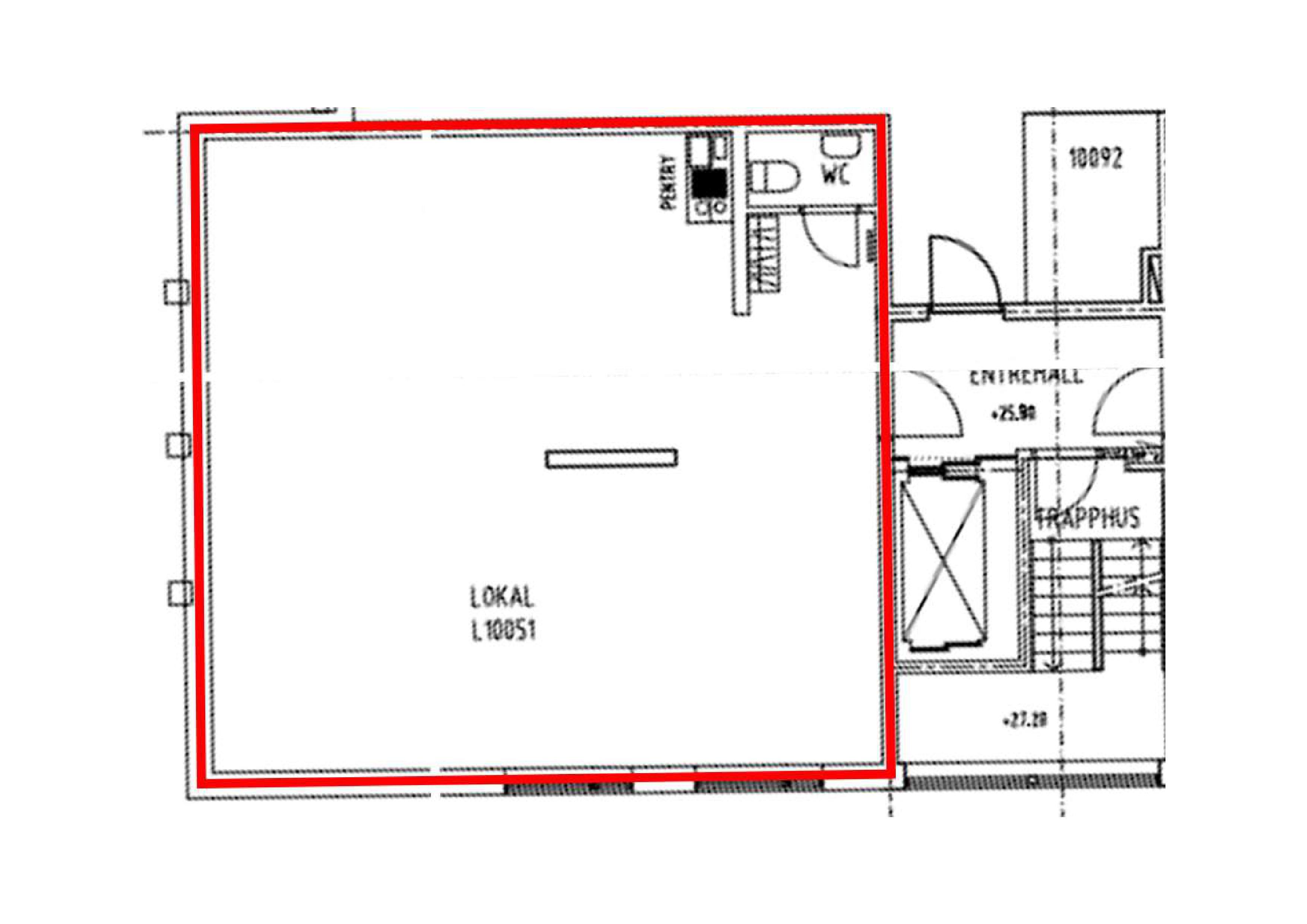
Beskrivning
Kontorslokal belägen på våning 3 i området vid Hammarby Sjöstad och Danvikstull mycket nära Södermalm. Goda kommunikationer med tvärbana och buss utanför dörren. Det finns både parkering och garage att hyra i kvarteret. Här finns även restauranger, gym, vårdcentral, frisör och butik.
Lokalen har idag en helt öppen och ljus planlösning men man kan enkelt dela upp ytan med mellanväggar om så önskas. Pentry och wc finns. Tillträde omgående är möjligt.
Se vår film på lokalen.
https://vimeo.com/1155673917
Ytan 80 kvm
Hyra 14 600 kr/mån ex moms (kan hyras momsfritt)
Fast.skatt tillkommer
Nextor Group AB
jorgen@nextor.se












