Fågelsångsvägen 11, H, Fågelsångens industriområde, Vallentuna
Bjurfors Näringsliv
1 121 m²
Hyra: Ej angiven
Tillträde: Ej angivet
Yteffektivt höglager med hög bärighet
Lager- och kontorslokal i mycket gott skick.
Maximera din verksamhets lagringskapacitet med en generös och pelarfri lageryta utrustad med ett höglager som klarar tung belastning – perfekt för effektiv logistik och förvaring. Den stora elektriska porten möjliggör smidig in- och utlastning och underlättar den dagliga driften.
Till lokalen hör moderna och funktionella kontorsytor i två plan, med varierande storlek på kontorsrum samt konferensrum som passar både mindre möten och större sammankomster. Här finns även fräscha toaletter, duschutrymmen samt ett praktiskt pentry för personalen.
På plan två finns dessutom en oinredd yta som ger extra flexibilitet och kan användas för ytterligare förvaring eller anpassas efter verksamhetens behov.
En välplanerad lokal som kombinerar effektiv lagerhantering med bekväma kontorsmiljöer.
Egenskaper
Om lokalen
- Kommun
- Vallentuna kommun
- Byggår
- 2018
- Takhöjd
- 850 cm
- Objektsnummer
- 41997638
Övrigt
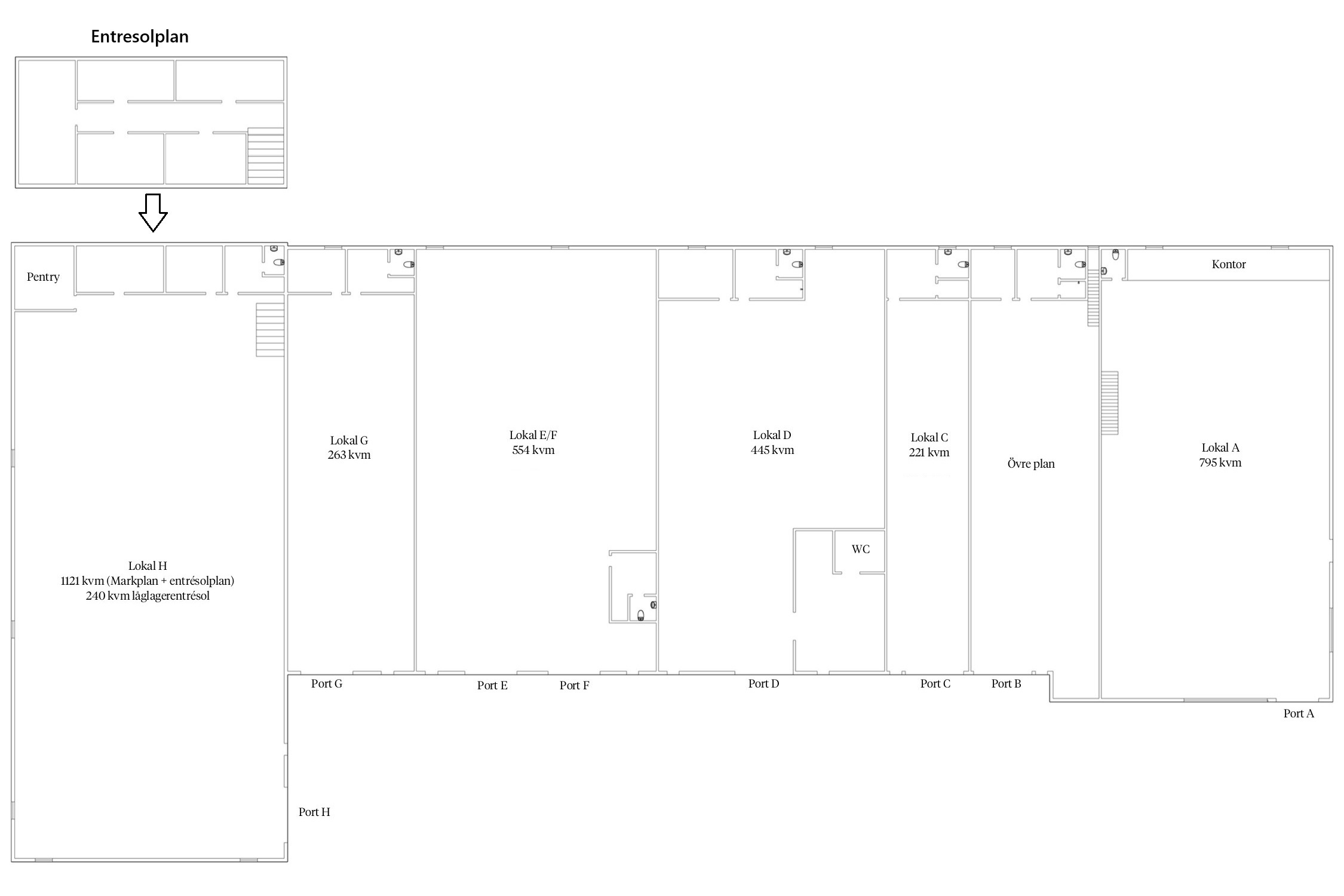
Effektiv lager- och kontorsyta med hög bärighet och moderna faciliteter. Innanför porten möts man av en robust lageryta med hög bärighet – betongplatta gjuten direkt på berg ca 250 kvm, medan det övriga betonggolvet klarar 2 ton/kvm, vilket gör det perfekt för tung lagerhållning. Den pelarfria lagerytan med en takhöjd på ca 6,80 m till underkant takstol och ca 8,50 m till nock ger en flexibel och mycket effektiv lagerlösning om ca 1121 kvm. Längs bakre delen av lokalen finns moderna kontorsytor med tre kontorsrum, pentry, WC och dusch – allt för att skapa en smidig arbetsmiljö. På övre plan finns ytterligare sex kontorsrum och konferensrum ca 240 kvm, men också möjlighet till showroom eller annan verksamhet med fönster ut mot lagerytorna samt WC och dusch. På plan 2 finns en oinredd yta ca. 240 kvm som enkelt kan användas som extra förvaring eller anpassas efter verksamhetens behov. Den här lokalen kombinerar funktionell lagerhållning med moderna kontorsfaciliteter – perfekt för företag som vill ha allt under ett tak. Området är inhägnat med säkerhetsgrind.
Till lokalen finns en oinredd yta på plan 2 om ca 240 kvm.
Fågelsångens industriområde i Vallentuna ligger i den södra delen av kommunen nära E18, nära området Bällstaberg och gränsen mot Täby. Det är ett mindre men växande verksamhetsområde med lager, verkstäder, kontor och småföretag.
Buss 664 till Vallentuna station passerar Fågelsångsvägen och har hållplatser nära industriområdet. Industriområdet ligger vid väg 264 som förbinder Vallentuna med Täby och Arninge, samt nära E18/E4?motorvägarna – vilket gör det lätt att nå med bil från Stockholm eller andra orter.
Karta
Bilder på lokalen
Fågelsångsvägen 11, H Fågelsångsvägen 11, H Fågelsångsvägen 11, H Fågelsångsvägen 11, H Fågelsångsvägen 11, H Fågelsångsvägen 11, H Fågelsångsvägen 11, H Fågelsångsvägen 11, H Fågelsångsvägen 11, H Fågelsångsvägen 11, H Fågelsångsvägen 11, H Fågelsångsvägen 11, H Fågelsångsvägen 11, H Fågelsångsvägen 11, H Fågelsångsvägen 11, H
















