Färgargårdstorget 4, Södermalm, Stockholm

NEXTOR AB

350

Building 1 Streamline Icon: https://streamlinehq.comKontorShop Streamline Icon: https://streamlinehq.comButikslokalÖvrig lokal

Hyra: 2700 kr/m²/år

Tillträde: Ej angivet

På Färgargårdstorget 4, intill Vintertullstorget, ligger denna lokal om ca 350 kvm i ett trivsamt läge med närhet till både stad och natur. Här finns vattnet precis i närheten, fina grönområden och parker runt omkring, samtidigt som du är på Södermalm.

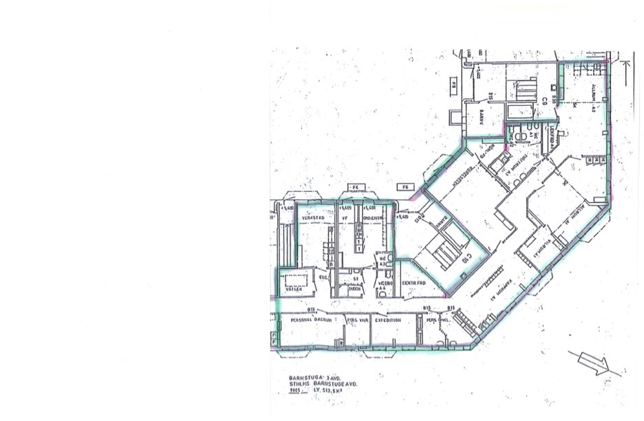
Ovanför löper Ringvägen med restauranger, service och goda kommunikationer. En ny tunnelbanestation planeras dessutom i området, vilket på sikt kommer att stärka läget ytterligare. Lokalen har tidigare använts som förskola, vilket innebär en genomtänkt planlösning och mycket bra ventilation med höga krav på luftkvalitet. Idag finns flera rum, och eftersom många väggar är icke bärande finns goda möjligheter att anpassa och öppna upp ytor efter behov.

Storleken och planlösningen gör det även möjligt att bedriva flera verksamheter parallellt, eller att dela upp lokalen i olika delar.

Ytan löper längs fasaden och har fönster i varje rum, vilket ger ett fint ljusinsläpp genom hela lokalen och skapar en ljus och flexibel miljö.

Entrén är trevlig och välkomnande. I lokalen finns ett stort kök samt flera våtutrymmen och WC. Tillgång till innergård bidrar till en extra trivsam miljö.

En flexibel lokal med goda möjligheter för olika typer av verksamheter.

Kontakta Mäklaren för visning och mer information,

Video : https://vimeo.com/manage/videos/1186911001

Yta: 350 kvm

Hyra: ca 78 750 kr / mån exkl. moms

Fastighetsskatt: Tillkommer

Tillträde enligt ök

Nextor Group AB

Pernilla Bjurman

pernilla@nextor.se

Telefon: 070 7809946

Om lokalen

Kommun
Stockholms kommun
Objektsnummer
41998482
Hyra
78 750 kr/mån
2 700 kr/m²/år

Karta

Bilder på lokalen