Kontor, Ekholmsvägen 229, Skärholmen
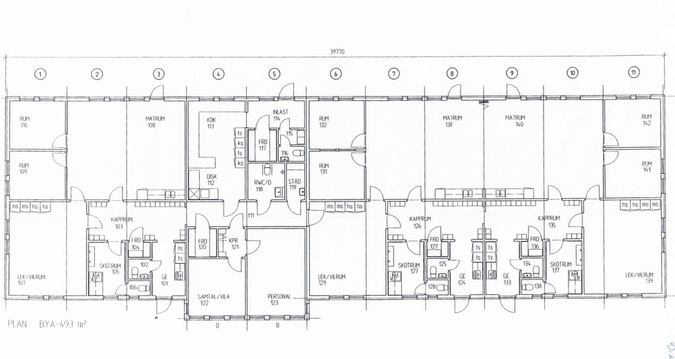
- 493 m²
Fristående lokal med egen gård i Skärholmen – perfekt för förskola, vård, kontor eller utbildning
Om lokalen
- Lokaltyp
- Kontor
- Total yta
- 493 m²
- Adress
- Ekholmsvägen 229
- Kommun
- Stockholms kommun
- Objektsnummer
- 41993546
Beskrivning
Välkommen till en mångsidig och karaktärsfull lokal med stora möjligheter.
På lugna Ekholmsvägen 229 i Skärholmen erbjuds en fristående byggnad om 493 m², tidigare använd som förskola – nu redo för nästa verksamhet.
Övrigt
En flexibel lokal med många användningsområden
Den välplanerade byggnaden är idag indelad i tre avdelningar med rum i olika storlekar, vilket skapar flexibilitet och funktionalitet för många typer av verksamheter. Lokalen lämpar sig utmärkt för:
Förskola eller pedagogisk verksamhet
Vårdcentral, BVC eller omsorgsverksamhet
Kontor, utbildning eller föreningsverksamhet
Kreativ studio eller annan företagsverksamhet
Egen byggnad med gård
Här får du hela fastigheten för dig själv, inklusive en inhägnad gård som lämpar sig för lek, aktiviteter eller utevistelse. Den fristående placeringen ger både integritet och trygghet – perfekt för verksamheter som värdesätter lugn, avskildhet och kontroll över sin egen miljö.
Fullt utrustad och anpassningsbar
Lokalen är utrustad med tillagningskök, flera toaletter, personalutrymmen och gott om förvaring. Planlösningen kan anpassas efter behov – oavsett om du önskar öppna kontorsytor, behandlingsrum eller klassrum.
Läget – nära både stad och natur
Ekholmsvägen 229 ligger i ett lugnt bostadsområde i Skärholmen, med nära till både service, kommunikationer och grönområden.
Kommunikationer: Flera busslinjer trafikerar området och Skärholmens tunnelbanestation nås på bara några minuter. Snabb access till E4/E20 gör läget utmärkt även för bilburna.
Service: Skärholmens centrum erbjuder ett brett utbud av butiker, restauranger och service. Även Kungens Kurva med IKEA och stora handelsområden ligger i närheten.
Nära naturen: Promenadavstånd till Mälarens strand, Vårbergstoppen och Sätraskogens naturreservat – perfekt för verksamheter som vill ha närhet till grönska och rekreation.















