Kontor / Lager, E A Rosengrens Gata 27, Västra Göteborg, Göteborg
- 665 m²
Lokalens egenskaper: Välplanerad och flexibel lokal om ca 665 kvm som kombinerar kontor och lager i en modern struktur. Lokalen erbjuder en rymlig l
Om lokalen
- Lokaltyp
- Kontor / Lager
- Total yta
- 665 m²
- Adress
- E A Rosengrens Gata 27
- Område
- Västra Göteborg
- Kommun
- Göteborgs kommun
- Hiss
- Ja
- Objektsnummer
- 41994807
Beskrivning
Lokalens egenskaper:
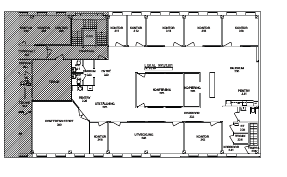
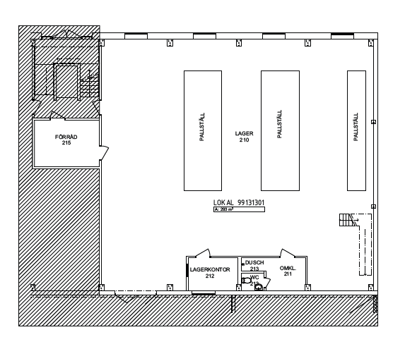
Välplanerad och flexibel lokal om ca 665 kvm som kombinerar kontor och lager i en modern struktur. Lokalen erbjuder en rymlig lageryta med 3,3 meters takhöjd under balk, stora öppna ytor samt en kontorsdel som kan utformas efter verksamhetens behov.
Via lagerdelen nås en praktisk markport med 2,7 meters höjd och bredd, vilket ger smidiga logistikflöden för leveranser, varumottagning och intern hantering.
Den generösa planlösningen skapar goda möjligheter för företag som behöver kombinationen av arbetsyta, förvaring och funktionella kontorsytor.
Planlösningen inkluderar bland annat:
• Större lageryta med fri höjd
• Kontorsyta i anslutning till entré
• Möjlighet till pentry, personalutrymmen och toalett
• Flexibla ytor som kan anpassas efter verksamheten
Område:
Fastigheten ligger på E A Rosengrens gata – ett etablerat och populärt verksamhetsområde i Högsbo, ett av Göteborgs mest eftertraktade industri- och företagskluster. Här sitter allt från produktion och distribution till kontor, service och handel.
I direkt närhet finns restauranger, gym, service och handelsområden vilket gör området mycket bekvämt för både personal och besökare. Utanför lokalen finns 7 egna parkeringsplatser, vilket är en stor fördel i området.
Kommunikationer:
Området har mycket goda kommunikationsmöjligheter;
• Snabb access till Söderleden och Dag Hammarskjöldsleden, vilket ger direktkoppling till centrala Göteborg, Västerleden och större trafikleder.
• Bussförbindelser i närområdet gör det enkelt att ta sig till och från arbetsplatsen utan bil.
• Smidigt för både kunder och leveranser tack vare närheten till större trafikknutpunkter.
Snabbfakta:
• Kombinerad kontors- och lagerlokal om ca 665 kvm
• Lagerport 2,7 m (H x B)
• Takhöjd lagerdel 3,3 m under balk
• 7 parkeringsplatser direkt utanför
• Flexibel och anpassningsbar planlösning
• Attraktivt läge i Högsbo industriområde
• God logistik och nära anslutning till stora trafikleder
Har ni frågor eller vill ni boka tid för en visning?
Varmt välkommen att kontakta oss på 031-350 49 00 eller hej@loqalo.se!
Karta
Bilder på lokalen
E A Rosengrens Gata 27 E A Rosengrens Gata 27 E A Rosengrens Gata 27 E A Rosengrens Gata 27 E A Rosengrens Gata 27 E A Rosengrens Gata 27 E A Rosengrens Gata 27 E A Rosengrens Gata 27 E A Rosengrens Gata 27 E A Rosengrens Gata 27 E A Rosengrens Gata 27 E A Rosengrens Gata 27 E A Rosengrens Gata 27 E A Rosengrens Gata 27 E A Rosengrens Gata 27 E A Rosengrens Gata 27 E A Rosengrens Gata 27 E A Rosengrens Gata 27 E A Rosengrens Gata 27




















