Bultgatan 12B, Kungälv

loqalo AB

462

Wrench Streamline Icon: https://streamlinehq.comProduktionslokalCustomer Relationship Management Self Service Wrench Streamline Icon: https://streamlinehq.comVerkstad

Hyra: Ej angiven

Tillträde: Ej angivet

Lokalens egenskaper:

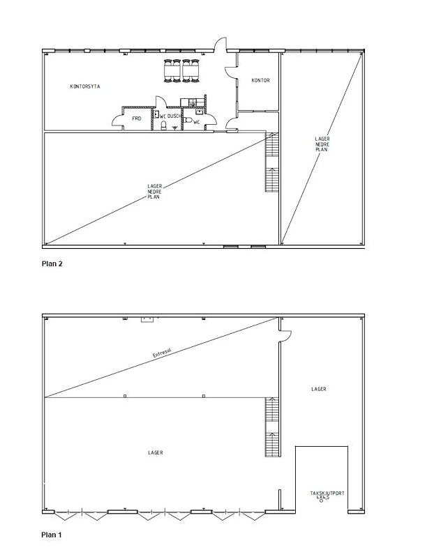
Nu erbjuds en funktionell lager- och kontorslokal om totalt ca 462 kvm i Rollsbo industriområde. Lokalen är under ombyggnad och kommer att erbjuda flexibla ytor anpassade för verksamheter inom exempelvis logistik, service, hantverk eller lättare produktion.

Lagerytan om ca 356 kvm är belägen i markplan och är rymlig samt lättillgänglig via stora portar, vilket skapar goda förutsättningar för smidig in- och utlastning. Ytorna är öppna och kan anpassas efter verksamhetens behov.

Kontorsdelen om ca 106 kvm ligger i direkt anslutning till lagret och möjliggör effektiv administration, planering och kundkontakt nära den operativa verksamheten. Lokalen är utrustad med WC, dusch och pentry, vilket ger en komplett arbetsmiljö.

Samtliga lokaler har fiberanslutning och hyresgäster har möjlighet att köpa grön el från fastighetsägarens vindkraftverk.

Område:

Lokalen är belägen i Rollsbo industriområde i Kungälv – ett etablerat och aktivt företagsområde med många verksamheter inom industri, bygg och logistik. I området finns även grönområden som lämpar sig för lunchpromenader.

Kommunikationer:

Direkt anslutning till E6 ger snabba förbindelser till Göteborg och övriga Västsverige. Buss- och tågförbindelser finns i närheten med koppling till Kungälv resecentrum.

Parkering:

Parkering dagtid ingår i anslutning till fastigheten.

Närservice:

I närområdet finns handelsområden med butiker, restauranger, gym och övrig service som täcker de flesta behov för både personal och besökare.

Snabbfakta:

Ttal yta: ca 462 kvm

Lager: ca 356 kvm

Kontor: ca 106 kvm

Lager med lastport i markplan

Pentry, WC och dusch

Fiberanslutning

Parkering ingår dagtid

Har ni frågor eller vill ni boka tid för en visning? Välkommen att kontakta oss på 031-3504900 eller hej@loqalo.se!

Om lokalen

Kommun
Kungälvs kommun
Hiss
Nej
Objektsnummer
41998525

Karta

Bilder på lokalen