Boråsvägen 38, Bronäs, Ulricehamn

Tillväxtenheten Ulricehamns kommun

1–220

Hotel Streamline Icon: https://streamlinehq.comhotelStudio / atlejéBook Library 2 Streamline Icon: https://streamlinehq.combook-library-2UtbildningslokalOffice Building Double Streamline Icon: https://streamlinehq.comKontor & Lager

Hyra: Ej angiven

Tillträde: 2026-05-01 eller efter överenskommelse

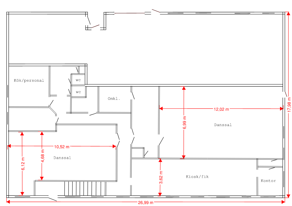
Ledig lokal i centrala Ulricehamn Nu finns möjlighet att hyra en attraktiv lokal i centrala Ulricehamn, tidigare använd av U-dance. Lokalen är belägen på ett synligt och lättillgängligt läge, med goda förutsättningar för olika typer av verksamheter. Här erbjuds flexibla ytor som kan anpassas efter behov. Totalt omfattar lokalen ca 220 kvm och innehåller kontorsrum, reception, stora öppna ytor, toa och pentry.

Fakta om lokalen:

• Centralt läge i Ulricehamn, Boråsvägen 38

• God exponering och tillgänglighet

• Flexibla ytor, ca 220 kvm

• Möjlighet till anpassning efter verksamhet

Lokalen passar dig som söker en etablerad plats med bra läge och utvecklingsmöjligheter.

Tillträde från 2026-05-01

Är du intresserad eller vill veta mer?

Tveka inte att höra av dig.

Om lokalen

Kommun
Ulricehamns kommun
Hiss
Nej
Våning
2
Tillträde
2026-05-01 eller efter överenskommelse
Objektsnummer
41998059

Omgivning

Centralt

Kommunikationer

Nära busshållplatser

Planlösning

Se ritning

Parkering

Ja

Närliggande företag

Industritele, Precomp Solutions, Per Schürer, Elon

Övrigt

Varmt välkommen med din förfrågan!
Anton Claesson
Mail: anton.claesson@byggarvid.se
Direkt: 073-310 69 71
Växel: 0321-53 13 30
Boråsvägen 38
523 37 Ulricehamn

Karta

Bilder på lokalen