Bergkällavägen 23, Bredden, Upplands Väsby
Mileway Sweden AB
Annons max400–811 m²
Hyra: Ej angiven
Tillträde: Enligt överenskommelse.
Rymlig kombilokal med smidig logistik i mycket fint skick finns att hyra i attraktiva Bredden
Modern kombilokal med stort lagerutrymme, strategiskt belägen på plan ett. Lokalen erbjuder rymliga och funktionella ytor med generös takhöjd om cirka 3,5 meter i lagerdelen, vilket skapar goda möjligheter för effektiv förvaring och smidig hantering av gods.
In- och utlastning sker enkelt via ett gemensamt lastintag med lasthiss (kapacitet upp till 1000 kg) eller via port i fasaden, vilket ger flexibilitet för olika typer av logistiklösningar.
Utöver lagerytor finns moderna kontorsytor med fräsch standard, lämpade för administrativa funktioner, arbetsplatser eller kundmottagning. Lokalen är även utrustad med bekväma faciliteter såsom pentry, omklädningsrum, dusch och WC, vilket bidrar till en trivsam och funktionell arbetsmiljö.
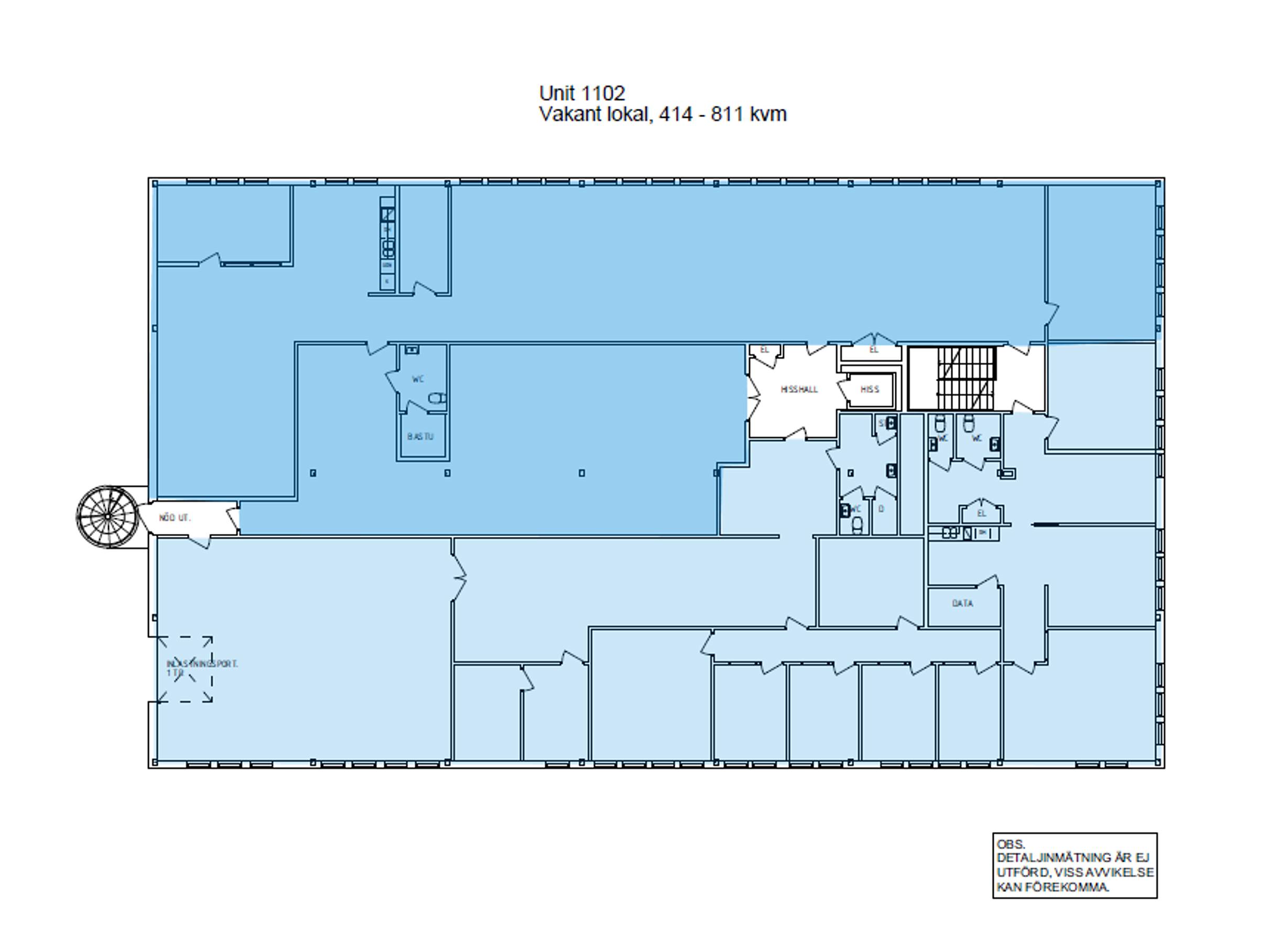
Hela våningsplanet omfattar totalt cirka 811 kvm och kan hyras i sin helhet eller delas upp i två separata lokaler som omfattar cirka 400 respektive 414 kvm.
Denna lokal passar utmärkt för verksamheter som söker en flexibel kombination av lager och kontor med god tillgänglighet och praktiska logistiklösningar.
Bredden (tidigare kallat InfraCity) är ett väletablerat företagsområde som är strategiskt beläget mellan Stockholm och Arlanda. E4:an nås på ett par minuter med bil, centrala Stockholm på cirka 25 min och Arlanda på cirka 15 minuter. Det här är en modern, flexibel och komplett företagpark med lättindustri, lager, handel och brett serviceutbud.
Dokument
Egenskaper
Om lokalen
- Kommun
- Upplands Väsby kommun
- Byggår
- 1987
- Hiss
- Ja
- Våning
- 1
- Tillträde
- Enligt överenskommelse.
- Objektsnummer
- 41978402
Omgivning
Flera grönområden finns för exempelvis en lunchpromenad eller löptur. Det planeras för ett bostadsområde i närheten, vilket kommer att göra området ännu mer levande med service dygnet runt.
Kommunikationer
Närsta hållplats "Bergkällavägen", bussar går regelbundet med anknytning till pendeltåg Rotebro, Kallhäll samt Upplands Väsby och till tunnelbanan Kista (blå linje). Med bil nås E4an inom ett par minuter, Stockholm C 25 min, Uppsala 35 min och Arlanda på ca 15 minuter.
Planlösning
Se planritning bland bilder/PDF.
Parkering
Parkeringsplatser i anslutning till fastigheten
Service
Brett serviceutbud i form av köpcenter, restauranger, matbutiker, gym, företagshälsovård, tandläkare, apotek, butiker, hotell etc.
Vägbeskrivning
Nära anslutning till E4
Skyltläge
Det tillgängliga läget bredvid E4:an gör det inte bara lättåtkomligt, utan ger också en hög synlighet och ett fantastiskt skyltläge. Som företag är Bredden därför en utmärkt plats att etablera sig på.
Närliggande företag
Bauhaus, SATS, Tesla, Swedbank, Lambertsson, Cramo, Mekonomen
















