Tagenevägen 21, Tagene, Hisings Kärra
Mileway Sweden AB
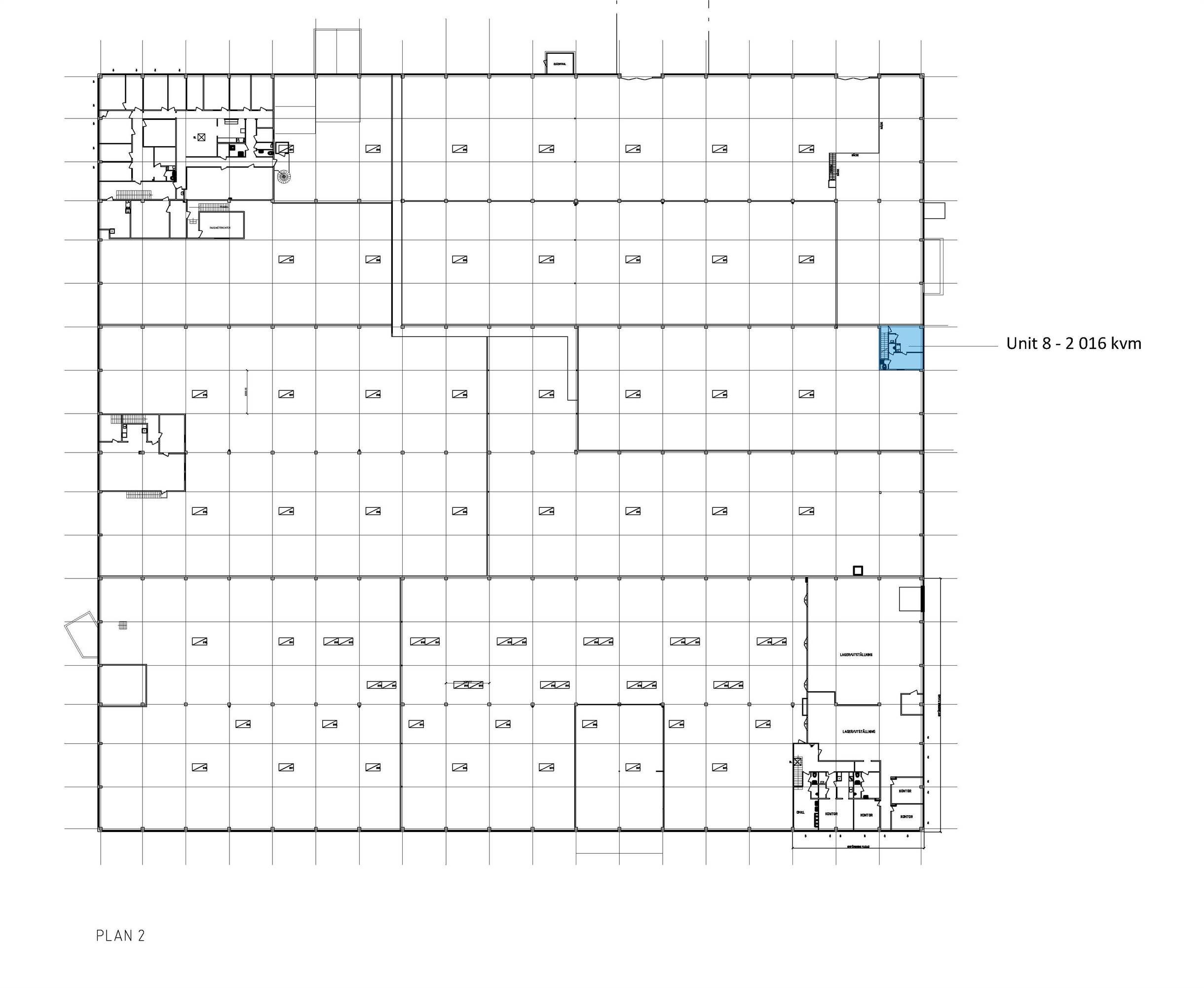
Annons max2 016–4 052 m²
Hyra: Ej angiven
Tillträde: Enligt överenskommelse
Flexibla lagerytor med goda möjligheter att anpassa efter önskemål
Nu ges möjlighet att etablera er verksamhet i ett av Göteborgs mest attraktiva logistikområden – Tagene/Bäckebol, endast ca 10 minuter från centrum och med omedelbar närhet till E6. Här erbjuds två rymliga och moderna lagerlokaler som kan hyras var för sig (ca 2 016–2 036 kvm) eller kombineras till en större sammanhängande yta om totalt ca 4 052 kvm.
Lokalerna lämpar sig utmärkt för logistik, lagerhållning, handel, showroom eller lättare produktion och erbjuder effektiva ytor med generösa takhöjder, markportar och möjligheter till verksamhetsanpassning.
Höjdpunkter
• Total yta: 2 016–4 052 kvm (kan hyras delvis eller i sin helhet)
• Takhöjd: ca 6,5–9 meter
• Flera markportar: totalt 5 st (både större och mindre)
• Höglagring möjlig
• Tillval/utformning: möjlighet till anpassning i dialog med hyresvärd, exempelvis uppgradera och utöka kontors- och personaldel vid behov
• Kontorsytor & personalutrymmen: mindre kontor, pentry och WC
• Möjlighet till showroom/reception med synlighet mot E6 (del av yta)
• Uppställningsyta på ca 500 kvm kan hyra till
Strategiskt läge i Tagene
Tagene är ett attraktivt industri- och handelsområde 10 kilometer norr om centrala Göteborg med strategiskt läge i direkt anslutning till E6. Närområdet berikas av flera stora aktörer inom handel, logistik samt tillverkning och erbjuder ett brett serviceutbud av butiker och lunchrestauranger i Bäckebol Center. Det finns goda kollektivtrafikförbindelser med buss till centrala Göteborg.
Kontakta oss idag för mer information eller för att boka en visning!
Dokument
Egenskaper
Om lokalen
- Kommun
- Göteborgs kommun
- Byggår
- 1972
- Våning
- 1
- Tillträde
- Enligt överenskommelse
- Objektsnummer
- 41993442
Kommunikationer
Goda kollektivtrafikförbindelser med buss till centrala Göteborg
Planlösning
Se planritningar bland bilder/PDF.
Parkering
Fri parkering
Service
Brett serviceutbud av butiker och lunchrestauranger i Bäckebol Center
Vägbeskrivning
Direkt anslutning till E6
Skyltläge
Bästa skyltläge ut med E6
Närliggande företag
IKEA, BAUHAUS, Danx AB, Plantagen och DHL


















