Andesitgatan 8, Väla Södra, Helsingborg
Mileway Sweden AB
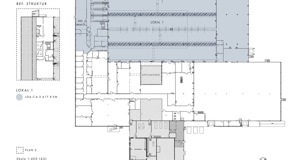
Annons max3 617 m²
Hyra: Ej angiven
Tillträde: Omgående
Flexibel industrilokal med stor utvecklingspotential på Väla Södra med tillhörande markyta om 10 000 kvm
Nu finns det möjlighet att hyra en flexibel och anpassningsbar industrilokal om 3 617 kvm på Väla Södra - ett av Helsingborgs mest attraktiva industriområden.Lokalen passar utmärkt för verksamheter inom produktion, lager, logistik eller B2B-handel, och erbjuder stor utvecklingspotential. Här finns goda möjligheter att skräddarsy ytorna helt efter hyresgästens behov. Oavsett om det gäller ombyggnation, öppnare lagerytor eller anpassning för specifik verksamhet såsom bilhall eller verkstad.Lokalens höjdpunkter
• Takhöjd om 5,5–7 meter i lager-/produktionsytorna
• Lastkaj finns (möjlighet att installera fler vid behov)
• Högspänning om 5 700 ampere
• Flera traverser (maxvikt 1 ton)
• Sprinklersystem och brandlarm installerat
• LED-belysning & miljöcertifiering enligt EU GreenBuilding
• Godkänd för livsmedelsproduktion
• Kontor med bekväma faciliteter: omklädningsrum, pausytor, kök/pentry och WC
• Generös uppställningsyta om ca 10 000 kvm (möjlighet att hårdgöra och hägna in)
• Gott om parkeringsplatser (ca 75 st)
• Flexibelt tillträde – möjlighet till snabb inflyttning
• Stora möjligheter till anpassning, exempelvis rivning av väggar för mer öppen planlösning
Strategiskt lägeVäla Södra är ett attraktivt industriområde med industri-, lager- och kontorsfastigheter beläget 5 kilometer norr om centrala Helsingborg. Området ligger i direkt anslutning till de viktiga transportlänkarna E4 och E6. Väla köpcentrum erbjuder ett brett serviceutbud med butiker och restauranger. Det finns goda kollektivtrafikförbindelser med buss till centrala Helsingborg.
Lokaltyper
Typ: Kontor, Butikslokal, Lagerlokal, Övrig lokal, Verkstad
Minsta storlek: 3617 m²
Största storlek: 3617 m²
Våningsplan: 1
Fastighet
Fastighetsbeteckning: Topasen 1
Byggnad
Byggår: 1989
Egenskaper
Villkor lokal
Tillträde: Omgående
Omgivning
Parkeringsmöjlighet: Gott om parkeringsplatser på fastigheten, totalt 75 st
Närservice: Väla köpcentrum erbjuder ett brett serviceutbud med butiker och restauranger
Företag i närheten: IKEA, Mediamarkt, Väla Centrum, Hornbach och Biltema
Vägbeskrivning: Direkt anslutning till E4 och E6
Kommunikation
Goda kollektivtrafikförbindelser med buss till centrala Helsingborg
Planlösning
Se planritning bland bilder eller ladda ned PDF.
Annonsinformation
Publicerad: 2026-04-10
Objektsnummer: 41998055











