Studio / ateljé, Getängsvägen 6, Borås
- 70 m²
- 2 rum
- 1 Mars 2026
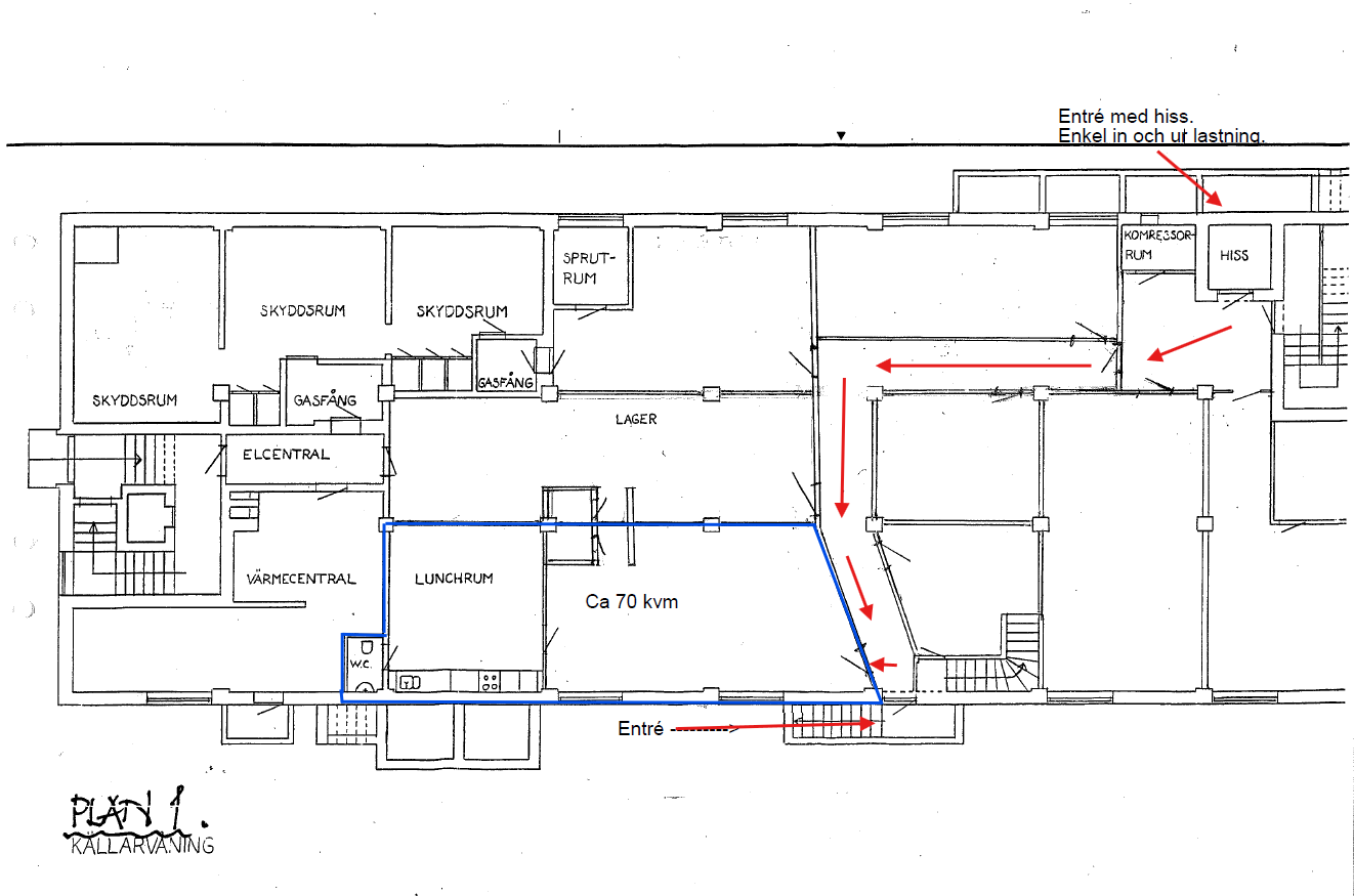
Källarlokal med ljusinsläpp på 70 kvm. Två toaletter, kök och parkering centralt. Passar som studio, lager, kontor eller annan hobbyverksamhet. 4300kr/mån
Om lokalen
- Lokaltyper
- Studio / ateljé / Kontor / Produktionslokal / Lagerlokal / Övrig lokal / Träningslokal / gym / Kontor / Lager
- Total yta
- 70 m²
- Adress
- Getängsvägen 6
- Område
- Borås
- Kommun
- Borås kommun
- Renoveringsår
- 0
- Hiss
- Ja
- Tillgänglighet
- Via trappa och hiss (Smidig i- och urlastning)
- Våning
- -1
- Antal rum
- 2
- Takhöjd
- 0
- Tillträde
- 1 Mars 2026
- Objektsnummer
- 41995743
Beskrivning
Denna flexibla källarlokal om 70 kvm passar dig som söker en prisvärd arbets- eller förvaringsyta i centrala Borås. Trots källarläge har lokalen fint ljusinsläpp som ger ett trivsamt intryck. Här finns två toaletter samt ett funktionellt kök.
Lokalen nås smidigt via separat trappnedgång eller hiss, vilket underlättar vid i- och urlastning eller hantering av tyngre föremål. Parkering finns i direkt anslutning till fastigheten, vilket gör det enkelt för både dig och besökare.
Ytan lämpar sig väl för exempelvis lager, studio, hobbyverksamhet eller enklare kontor. Med sitt centrala läge på Getängsvägen är detta ett kostnadseffektivt alternativ för dig som prioriterar funktion och tillgänglighet.
Kontakta oss gärna för mer information eller för att boka visning.
Omgivning
Getängsvägen 6 ligger i Borås västra del, med smidig anslutning till riksväg 40. Från Borås centrum tar det bara några minuter med bil, och du följer enklast Västerlånggatan mot Getängsvägen. För den som åker kollektivt finns hållplatser inom gångavstånd, och området är lättillgängligt för både kunder och leverantörer.
Planlösning
Två separata toaletter, ett kök med tillhörande lunchrum samt en större flexibel arbetsyta.
Parkering
Ja
Uppvärmning
Fjärrvärme





