Andesitgatan 8, Väla Södra, Helsingborg
Mileway Sweden AB
Annons max1 430–5 047 m²
Hyra: Ej angiven
Tillträde: Omgående
Industrilokaler med stor utvecklingspotential med tillhörande markyta om 10 000 kvm på Väla Södra i Helsingborg
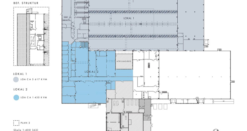
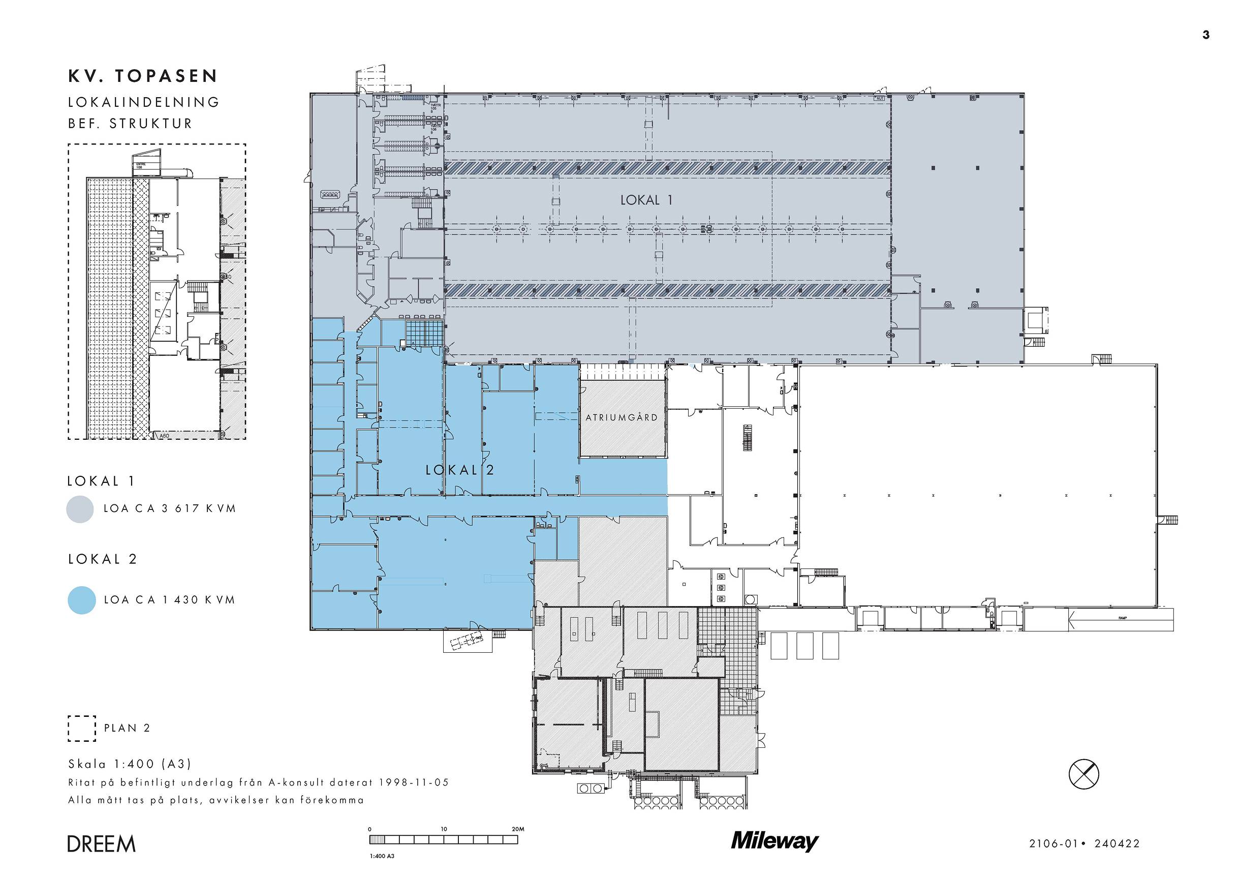
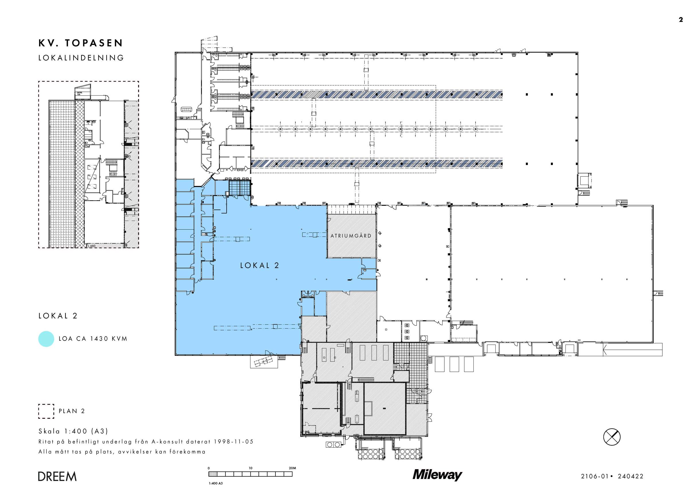
Nu erbjuds möjlighet att hyra anpassningsbara industrilokaler för produktion, lager och kontor på Väla Södra, ett attraktivt industriområde i Helsingborg. Lokalerna har stora utvecklingsmöjligheter och kan enkelt anpassas för en mängd olika verksamheter, såsom bilhall, verkstad eller B2B-handel, med möjlighet att skräddarsy ytorna helt efter era specifika behov. Lokalerna om 1 430 kvm och 3 617 kvm kan hyras som en enhet eller delas upp för två hyresgäster. Det går att utöka ytorna med ytterligare ca 6 000 kvm.
Lokalens höjdpunkter
• Takhöjd om 5,5-7 meter i lager/produktionsytorna
• I dagsläget finns totalt 1 lastkaj, men vid behov kan fler installeras
• Högspänning 5 700 ampere
• Flera traverser (maxvikt 1 ton)
• Sprinklersystem och brandlarm installerat
• LED-belysning & miljöcertifikat EU GreenBuilding
• Godkänd för livsmedelsproduktion
• Kontor med bekväma faciliteter; omklädningsrum, pausytor, kök/pentry och WC
• Uppställningsyta om 10 000 kvm, möjligt att hårdgöra och hägna in
• Gott om parkeringsplatser (ca 75 st)
• Flexibelt tillträde, inflyttning kan ske omgående
• Goda möjligheter till anpassning, ex rivning av väggar för mer öppen lageryta
Strategiskt lägeVäla Södra är ett attraktivt industriområde med industri-, lager- och kontorsfastigheter beläget 5 kilometer norr om centrala Helsingborg. Området ligger i direkt anslutning till de viktiga transportlänkarna E4 och E6. Väla köpcentrum erbjuder ett brett serviceutbud med butiker och restauranger. Det finns goda kollektivtrafikförbindelser med buss till centrala Helsingborg.
Lokaltyper
Typ: Kontor, Butikslokal, Lagerlokal, Övrig lokal, Verkstad
Minsta storlek: 1430 m²
Största storlek: 5047 m²
Våningsplan: 1
Fastighet
Fastighetsbeteckning: Topasen 1
Byggnad
Byggår: 1989
Egenskaper
Villkor lokal
Tillträde: Omgående
Omgivning
Parkeringsmöjlighet: Gott om parkeringsplatser på fastigheten, totalt 75 st
Närservice: Väla köpcentrum erbjuder ett brett serviceutbud med butiker och restauranger
Företag i närheten: IKEA, Mediamarkt, Väla Centrum, Hornbach och Biltema
Vägbeskrivning: Direkt anslutning till E4 och E6
Kommunikation
Goda kollektivtrafikförbindelser med buss till centrala Helsingborg
Planlösning
Se planritning bland bilder eller ladda ned PDF.
Annonsinformation
Publicerad: 2025-01-11
Objektsnummer: 41984563












