Korsgatan 13, Inom Vallgraven, Göteborg
Lokalisera AB
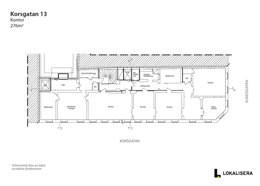
276 m²
Hyra: Ej angiven
Tillträde: Enligt överenskommelse
276 kvm representativt hörnkontor i CBD. Ca 15–20 platser, ljust läge & dusch. Nära Centralstationen.
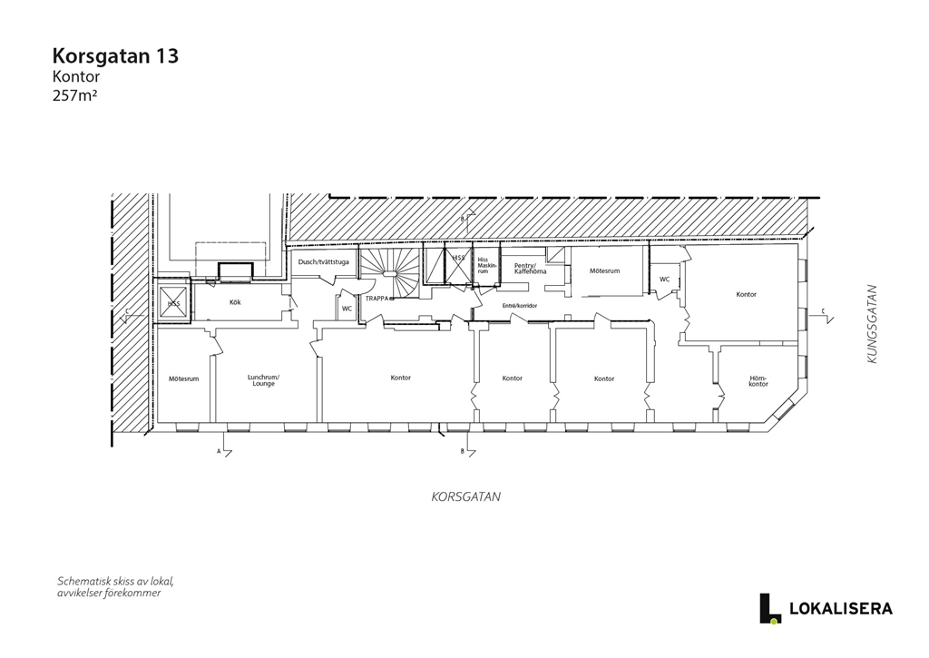
Nu erbjuds 276 kvm kontor i ett mycket centralt och attraktivt hörnläge vid Kungsgatan/Korsgatan. Lokalen har ett fint ljusinsläpp med fönster i två väderstreck och utsikt över city, med endast några minuters promenad till Centralstationen.
Lokalen är huvudsakligen rumsindelad med kontor i varierande storlek. Delar av ytan hänger samman och lämpar sig väl för team och projekt, medan andra delar har en mer traditionell rumsstruktur med möjlighet till avskildhet, exempelvis för ledning eller möten.
Här finns 2 WC, dusch och tvättmaskin. Möjlighet finns att skapa cykelförvaring med omklädning inom lokalen. Fastigheten har ny och modern ventilation.
Det finns även flera möjliga placeringar för kök, där nuvarande förslag är i anslutning till loungeytan. Nästa hyresgäst ges möjlighet att vara med och påverka utformning och placering utifrån verksamhetens behov.
Lokalen lämpar sig för ca 15 20 arbetsplatser (+/ ), beroende på arbetssätt och disponering.
Viss möjlighet till anpassning finns i dialog med fastighetsägaren.
Kvaliteter i korthet:
- Mycket centralt läge (CBD)
- Hörnläge med fönster i två väderstreck
- Rumsindelad struktur
- 2 WC, dusch och tvättmaskin
- Möjlig cykelförvaring/omklädning i lokalen
- Flera möjliga köksplaceringar
- Ny ventilation
- Gångavstånd till Centralstationen
Intresserad? Kontakta Lokalisera för mer information eller visning.
Dokument
Lokaltyper
Typ: Kontor
Minsta storlek: 276 m²
Största storlek: 276 m²
Våningsplan: 2
Egenskaper
Villkor lokal
Tillträde: Enligt överenskommelse
Omgivning
Innanför Vallgraven, Göteborgs historiska hjärta, är en av stadens mest eftertraktade affärsdestinationer. Området kombinerar klassisk arkitektur med moderna affärsmöjligheter och erbjuder en dynamisk miljö för företag inom alla branscher. Här finns ett rikt utbud av restauranger, kaféer och butiker som bidrar till en levande atmosfär för både arbetsdagar och kundmöten.
Parkeringsmöjlighet: Möjlighet att hyra p-plats via APCOAs parkeringshus P-hus City och Kungsgaraget eller parkeringshuset i Nordstan.
Närservice: All tänkbar service i direkt närhet. I området kring shoppingstråket Kungsgatan och Vallgatan finns en stor variation av butiker, restauranger och caféer. Några minuter promenad bort finns Stora Saluhallen eller de mysiga kvarteren kring Magasinsgatan.
Kommunikation
Mycket goda allmänna kommunikationer via hållplats Domkyrkan där flertalet buss- och spårvagnslinjer passerar. Gångavstånd till Göteborgs Centralstation samt Nils Ericssons Terminalen.
Annonsinformation
Publicerad: 2025-11-28
Objektsnummer: 41994590

























