Vindkraftsvägen 6, Skrubba, Stockholm
Stendörren Fastigheter AB
Annons plus597 m²
Hyra: Ej angiven
Tillträde: Enligt överenskommelse
Effektiv lagerlokal med generös takhöjd och stor markport!
Välkommen till en effektiv och flexibel lokal med utmärkta förutsättningar för lager-, verkstads- eller produktionsverksamhet. Lokalen har en total yta om ca 597 kvm och erbjuder stor markport, generös takhöjd samt välplanerade och trevliga personalutrymmen.
Lokalfakta:
• Yta: ca 597 kvm
• Stor markport – enkel in- och utlastning
• Generös takhöjd – lämpad för höglager eller maskinell produktion
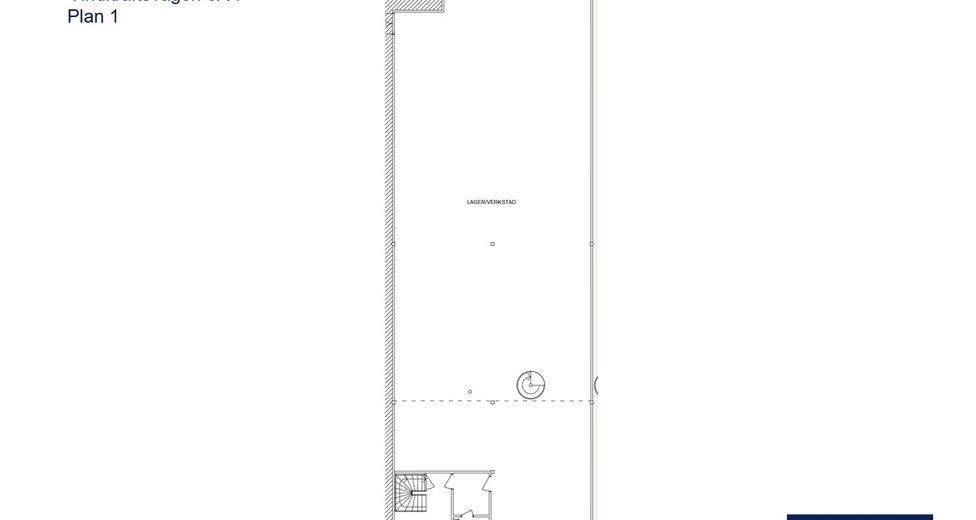
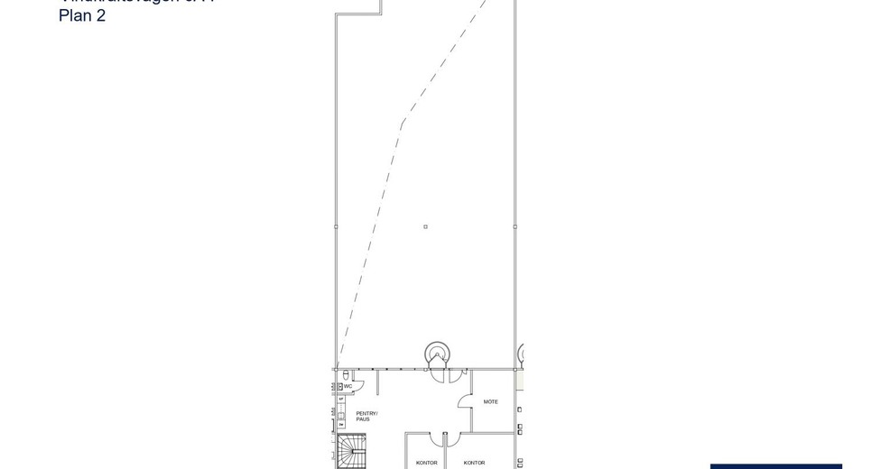
• Entréplan: lager-/produktionsyta samt wc
• Entresolplan: mötesrum, två kontor, pentry/paus och wc
Läget:
Lokalen är belägen i Skrubba industriområde, ett väletablerat och expansivt verksamhetsområde i södra Stockholm. Området omfattas av Stockholms stads satsningar på att stärka stadens verksamhetsområden, vilket gör detta till ett attraktivt läge för framtiden.
Här finns utmärkta kommunikationer med närhet till Tyresövägen (väg 229) samt bra bussförbindelser till både Gullmarsplan och Haninge.
Inom 5 minuter med bil når du Tyresö Centrum, med ett brett utbud av service, lunchrestauranger och butiker – perfekt för både personal och kunder.
Sammanfattning:
• Effektiv lokal med stor markport och generös takhöjd
• Möjlighet till både lager, verkstad och produktion
• Bra kontors- och personalutrymmen
• Strategiskt läge nära Tyresövägen och goda kommunikationer
• Nära service och handel i Tyresö Centrum
En lokal som kombinerar funktion, flexibilitet och framtidsläge – perfekt för den moderna verksamheten.
Välkommen att kontakta mig för mer information och visning!
Lokaltyper
Typ: Kontor, Produktionslokal, Lagerlokal, Verkstad
Minsta storlek: 597 m²
Största storlek: 597 m²
Våningsplan: 1
Villkor lokal
Tillträde: Enligt överenskommelse
Omgivning
Runt i området på promenadavstånd finns flera restauranger och lunchserveringar. Till Tyresö Centrum är det ca 5 minuter körtid där du finner större variation på serveringar, men också övrig service så som butiker, apotek osv.
Kommunikation
Fastigheten nås enkelt med bil via Tyresövägen, väg 229 och sedan en kort sträcka på Skrubba Malmväg. Du kan även ta dig smidigt till fastigheten med kollektivtrafiken. Buss 807 stannar en kort promenad från fastigheten och den tar dig sedan vidare mot Gullmarsplan, där du kan åka med tunnelbanan, spårvagnen eller någon av alla bussar som går därifrån. Det finns även bussar som går mot Haninge strax utanför fastigheten.
Annonsinformation
Publicerad: 2025-11-12
Objektsnummer: 41993693











