Topasgatan 3, Västra Frölunda, Göteborg
Lokalisera AB
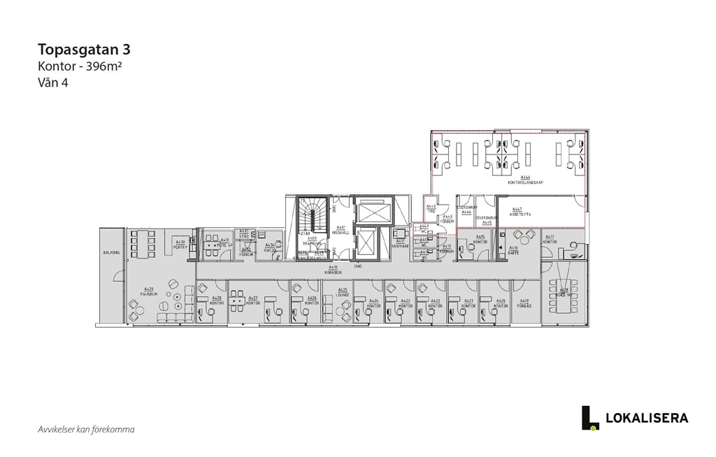
396 m²
Hyra: Ej angiven
Tillträde: Enligt överenskommelse
Nybyggd kontorslokal med modern standard och lättillgängligt läge vid Frölunda Torg
Välkommen till en nybyggd och representativ kontorslokal om 396 kvm, med en genomtänkt rumsbaserad planlösning i kombination med öppna arbetsytor och flera mötes- och konferensrum. Lokalen passar särskilt väl för tjänste- och kunskapsföretag som behöver arbetsro, integritet och professionella kundmöten som exempelvis konsulter, rådgivare, teknikbolag, arkitekter eller advokatverksamheter.
Lokalen erbjuder moderna ytskikt, hög ljudisolering och en trivsam känsla med utsikt mot Frölunda Torg och området omkring. Den ljusa lounge- och köksdelen blir en naturlig samlingspunkt och har direkt access till en egen balkong. Intill det större konferensrummet finns en praktisk paus- och kaffestation.
Läget är mycket tillgängligt: cirka 5 minuters promenad till spårvagn och bussar vid Frölunda Torg, samt direkt anslutning till Söderleden, vilket även ger ett starkt skyltläge mot förbipasserande trafik.
Fastigheten erbjuder dessutom gym med omklädningsrum, modern konferensvåning, goda parkeringsmöjligheter samt möjlighet att hyra garageplats med elbilsladdning.
Kontakta oss på Lokalisera för mer information och för att boka en visning.
Egenskaper
Om lokalen
- Kommun
- Göteborgs kommun
- Hiss
- Nej
- Våning
- 4
- Tillträde
- Enligt överenskommelse
- Objektsnummer
- 41998004
Omgivning
Västra Frölunda, som ligger sydväst om Göteborgs centrum, är en viktig knutpunkt för service, handel och kommunikationer. Området har ett brett utbud av såväl shopping som natur och inom räckhåll finns exempelvis havs- och naturområden. Västra Frölunda är även hem för Göteborgs näst största köpcentrum, Frölunda Torg.
Kommunikationer
Västra Frölunda har ett strategiskt bra läge med bra kollektivtrafik och trafikleder. Härifrån går det snabbt och lätt att ta sig in till Göteborgs centrum samtidigt som det ligger utanför zonen för trängselskatt.
Planlösning
Rumsbaserad planlösning i kombination med öppna arbetsytor och flera mötes- och konferensrum.
Parkering
Goda parkeringsmöjligheter för besökare direkt utanför samt möjlighet till garageplatser och elbilsladdning.
Service
Närhet till Frölunda Torg med 200 butiker, salutorg, restauranger och offentlig service.
Karta
Bilder på lokalen
Topasgatan 3 Topasgatan 3 Topasgatan 3 Topasgatan 3 Topasgatan 3 Topasgatan 3 Topasgatan 3 Topasgatan 3 Topasgatan 3 Topasgatan 3 Topasgatan 3 Topasgatan 3 Topasgatan 3 Topasgatan 3 Topasgatan 3 Topasgatan 3 Topasgatan 3 Topasgatan 3 Topasgatan 3 Topasgatan 3 Topasgatan 3 Topasgatan 3 Topasgatan 3 Topasgatan 3 Topasgatan 3


























