Knut Påls väg 7, Långeberga, Helsingborg
Mileway Sweden AB
Annons max2 245–10 200 m²
Hyra: Ej angiven
Tillträde: Enligt överenskommelse
Optimala lagerlokaler för frukt & grönt - kylmöjlighet och stor utvecklingspotential
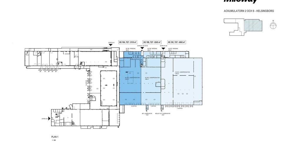
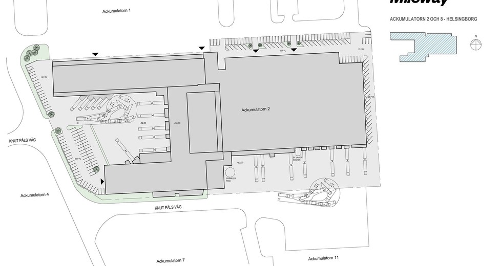
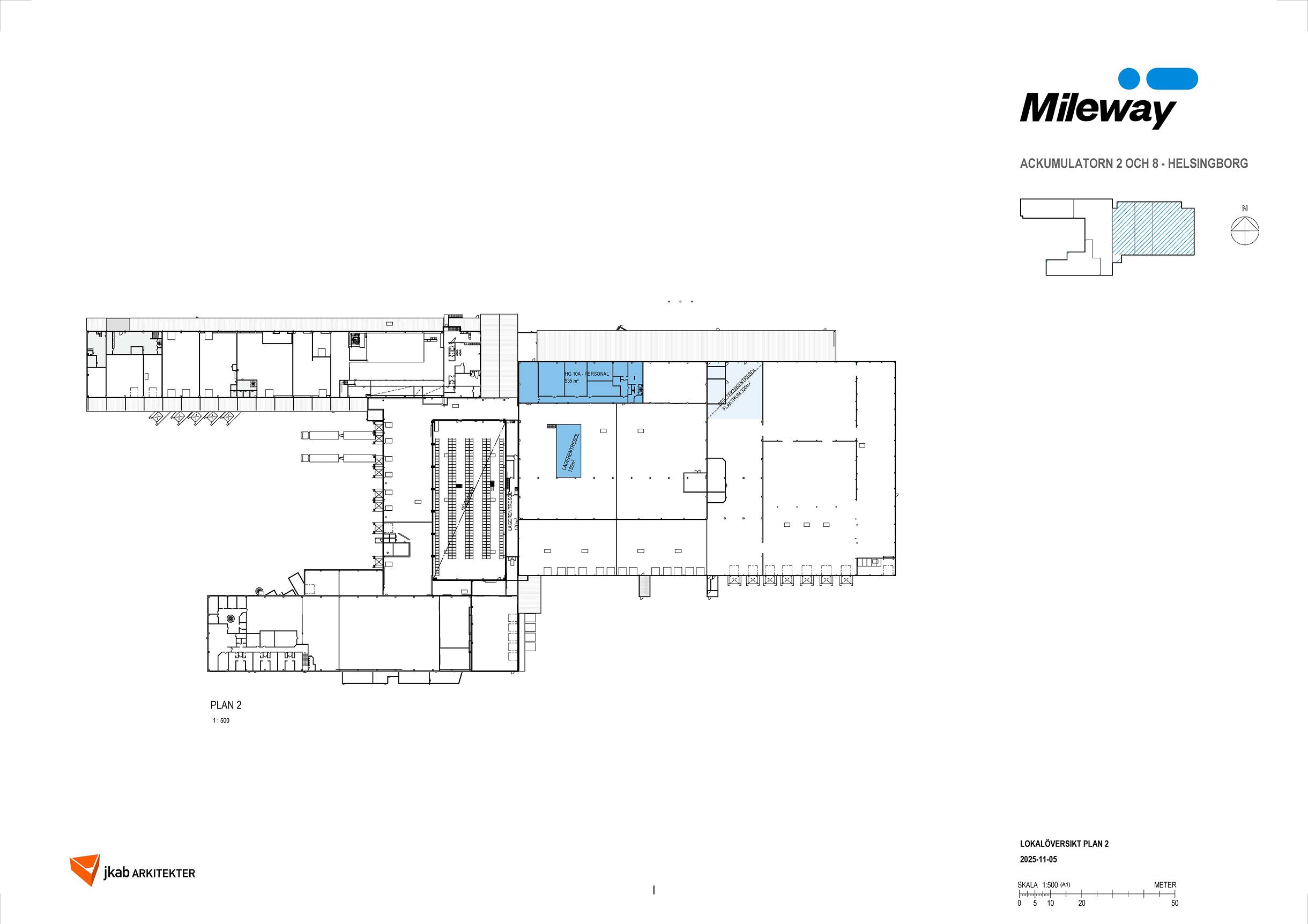
Toppläge på Långeberga i Helsingborg! Välkommen till denna logistik- och lagerfastighet om totalt 10 200 kvm, med flexibel planlösning och möjlighet att anpassa ytorna helt efter verksamhetens behov. Lokalen kan delas upp i enheter från cirka 2 245 kvm – ritningarna i annonsen är endast exempel på möjliga indelningar. Lokalen anpassar sig speciellt för grossister inom frukt & grönt och livsmedelsproduktion som behöver kyllager.Fastigheten är belägen i Långeberga industriområde, med direkt anslutning till E6, vilket ger ett optimalt logistikläge för både nationell och regional distribution. Området är Helsingborgs nav för just grönsaks- och livsmedelsdistribution, här finns redan ett starkt kluster av grossister.Lokalen erbjuder generösa lagerytor med varierande takhöjd på 5–7 meter. Möjlighet finns även att använda delar som kyllager. Fastigheten har 23 lasthus och 1 markport, vilket skapar smidiga flöden och effektiva transporter.Utöver lagerytorna finns moderna kontors- och personalutrymmen, som kan anpassas eller utökas efter behov.Höjdpunkter
• Flexibel yta – från ca 2 245 kvm och uppåt
• Möjlighet till kyllager för färskvaruhantering
• Takhöjd: 5–7 meter
• 23 lasthus och 1 markport för effektiva flöden
• Goda uppställningsytor och rangerytor
• Strategiskt läge intill E6 – optimalt för logistik och distribution
• Ritningarna är endast förslag – lokalerna skräddarsys efter verksamheten
• Kontorsytor kan anpassas efter behov
Strategiskt läge i LångebergaLångeberga är ett väletablerat industriområde endast 6 km öster om centrala Helsingborg, med direkt påfart till E6. Här finns utmärkta logistikförutsättningar för företag inom lager, logistik och produktion. Närservice med butiker och restauranger finns i närliggande Ramlösa, och området nås enkelt med kollektivtrafik.Ta chansen att etablera er i en skräddarsydd lokal anpassad efter era behov och önskemål. Tveka inte på att kontakta oss för mer information!
Lokaltyper
Typ: Kontor, Lagerlokal, Verkstad
Minsta storlek: 2245 m²
Största storlek: 10200 m²
Fastighet
Fastighetsbeteckning: Ackumulatorn 2&8
Byggnad
Byggår: 1987
Egenskaper
Villkor lokal
Tillträde: Enligt överenskommelse
Omgivning
Parkeringsmöjlighet: Stor parkering
Närservice: Nära till Ramlösa med närservice såsom butiker, restauranger och andra tjänster
Företag i närheten: ICA Sverige AB, Nowaste Logistics, Everfresh AB, Eimskip Logistics AB och Kartongbolaget i Helsingborg AB
Vägbeskrivning: Direkt anslutning till E6
Kommunikation
Bra kollektivtrafikförbindelser med buss till centrala Helsingborg
Planlösning
Se nedladdningsbar PDF-bilaga nedan samt bland bilder.
Annonsinformation
Publicerad: 2026-02-18
Objektsnummer: 41996702
Karta
Bilder på lokalen
Knut Påls väg 7 Knut Påls väg 7 Knut Påls väg 7 Knut Påls väg 7 Knut Påls väg 7 Knut Påls väg 7 Knut Påls väg 7 Knut Påls väg 7 Knut Påls väg 7 Knut Påls väg 7 Knut Påls väg 7 Knut Påls väg 7 Knut Påls väg 7 Knut Påls väg 7 Knut Påls väg 7 Knut Påls väg 7 Knut Påls väg 7 Knut Påls väg 7 Knut Påls väg 7 Knut Påls väg 7





















