Kontor, Malmgatan 25, Ingelsta, Norrköping
- 8–28 m²
- Omgående. Enligt ÖK
Coworking! Fina kontorsrum uthyres. Enbart två lediga kontorsrum kvar om 8kvm och 28kvm. Gemensamt konf.rum, matplats, wc mm. Kom gärna på visning!
Om lokalen
- Lokaltyper
- Kontor / Kontorshotell
- Total yta
- 8–28 m²
- Adress
- Malmgatan 25
- Område
- Ingelsta
- Kommun
- Norrköpings kommun
- Byggår
- 1965
- Hiss
- Ja
- Tillträde
- Omgående. Enligt ÖK
- Objektsnummer
- 41986901
Beskrivning
Coworking! Fina kontorsrum uthyres. Enbart två lediga kontorsrum kvar om 8kvm och 28kvm. Gemensamt konf.rum, matplats, wc mm. Kom gärna på visning!
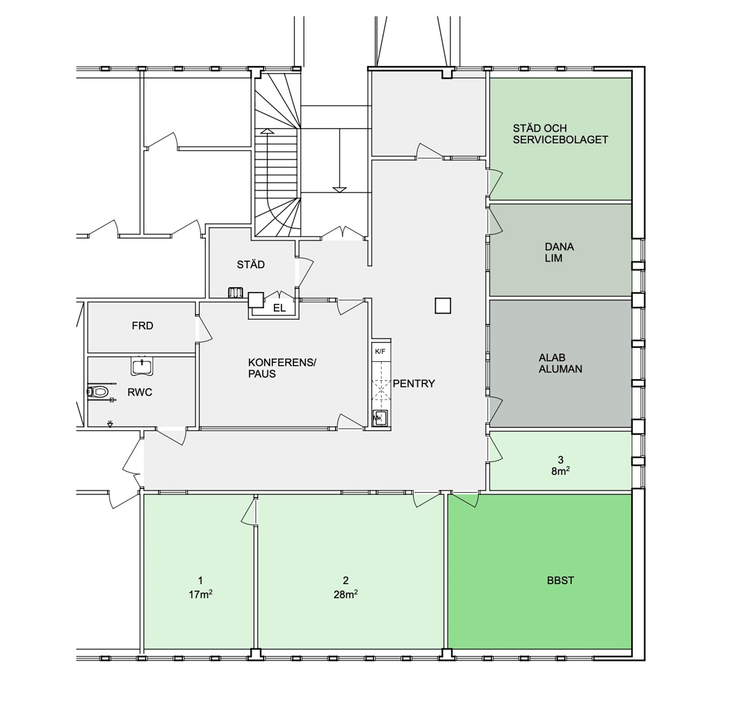
Två lediga kontorsrum på vår coworking på Malmgatan 25.
Yta 2 och 3 på ritningen är lediga om 8kvm och 28kvm. Man kan hyra båda kontorsrummen om man behöver. Gemensamt konf.rum, matplats, wc mm.
Vi kan bygga större kontorsytor om behov finns som tex upp till ca 3-500kvm eller mer.
Se bifogade bilder på nuvarande coworking med fina gemensamhetsytor som t.ex. konf.rum, matsal, pentry, wc, korridor mm
Månadshyra från ca 2 000 kr/månad ex moms.
Lediga lagerytor finns på fastigheten vid behov eller om man i ett senare vill växa in i en permanent större yta.
Slå gärna en signal för ev frågor och jag ses gärna en visning!
Kommunikationer
Busshållsplats vid fastigheten. Gångavstånd.
Planlösning
Yta 2 och 3 är lediga dvs 8kvm rum eller 28kvm rum.
Parkering
Gott om parkeringsplatser på fastigheten.
Service
Komplett utbud av service, mataffärer, restauranger mm finns i Ingelsta.
Vägbeskrivning
Ca 3km till E4:an och ca 2km till Norrköping Centralstation.
Skyltläge
Goda skyltmöjligheter mot Malmgatan.
Närliggande företag
Närmsta grannar på den här delen av Ingelsta är företag inom industri, kontor, lager, 3PL, proffshandel mm. I Ingelsta har ni också Norrköpings största handelsområde med allt man behöver.
Uppvärmning
Fjärrvärme (Bergsvärme ska installeras)







