Industrivägen 53, Sävedalen, Partille
Corem Property Group
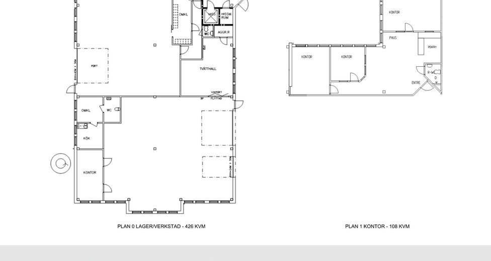
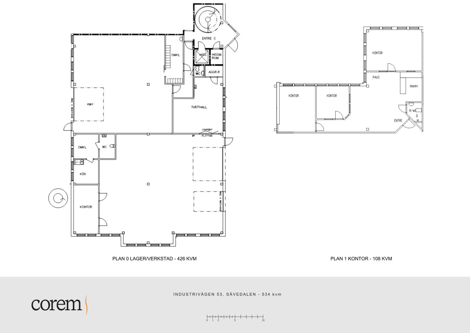
534 m²
Hyra: Ej angiven
Tillträde: Ej angivet
Flexibel lokal med modernt kontor och rymligt lager
Nu finns möjlighet att hyra en kombinationslokal som erbjuder både en modern kontorsmiljö och ett rymligt lager. Här finns plats för både administrativa ytor och smidiga logistikflöden.
Det trivsamma kontoret omfattar 108 kvm, ligger på våning 2 och nås via husets trapphus från lagret. Du möts av ljusa och stilfullt inredda kontorsrum, konferensrum och pentry. Här finns goda möjligheter att anpassa ytorna efter just din verksamhets specifika behov.
Lagret om 426 kvm är generöst tilltaget med bra takhöjd som möjliggör effektiv förvaring. Lokalen har tre portar, två placerade på ena långsidan och en på motsatt sida, vilket underlättar både in- och utlastning. Här finns även god yta för hyllsystem, maskiner och intern arbetsyta. Tillsammans skapar lagret och kontoret en komplett lösning som passar företag inom handel, distribution, entreprenad eller service.
Kontakta oss gärna för mer information eller för att boka en visning.
Dokument
Lokaltyper
Typ: Kontor, Lagerlokal
Minsta storlek: 534 m²
Största storlek: 534 m²
Omgivning
Sävedalen ligger i Partille kommun strax utanför Göteborg. Du har nära till butiker, lunchrestauranger och kaféer. Allum köpcenter med generösa öppettider ligger bara några minuter bort med bil. I närområdet finns också fina grönområden och bra kommunikationer.
Parkeringsmöjlighet: Goda parkeringsmöjligheter finns kring fastigheten och i närområdet.
Annonsinformation
Publicerad: 2026-03-23
Objektsnummer: 41997663












