Kontor, Gustaf Dalénsgatan 19, Norra Göteborg och Hisingen, Göteborg
- 221 m²
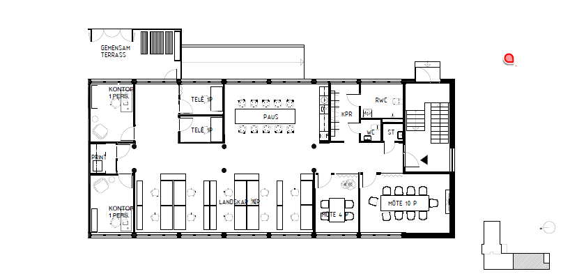
Lokalens egenskaper: Nu erbjuds en helt nyrenoverad kontorslokal om 221 kvm med mycket bra läge vid Backaplan. Lokalen är ljus och modern med generö
Om lokalen
- Lokaltyp
- Kontor
- Total yta
- 221 m²
- Adress
- Gustaf Dalénsgatan 19
- Område
- Norra Göteborg och Hisingen
- Kommun
- Göteborgs kommun
- Hiss
- Ja
- Objektsnummer
- 41995135
Beskrivning
Lokalens egenskaper:
Nu erbjuds en helt nyrenoverad kontorslokal om 221 kvm med mycket bra läge vid Backaplan. Lokalen är ljus och modern med generöst ljusinsläpp, bra takhöjd och en mycket god inomhusmiljö med komfortkyla och effektiv ventilation.
En ny hyresgäst har möjlighet att påverka både planlösning och utformning, vilket gör det enkelt att skapa ett kontor anpassat efter verksamhetens behov. Lokalen nås smidigt via trapphus eller via lastbrygga/uteplats, vilket ger god tillgänglighet.
WC och RWC med dusch är nyrenoverade och smakfullt utförda med kakel och klinker. Möjlighet finns även att hyra förråd i källarplan. Lokalen färdigställs enligt överenskommen planlösning i dialog med ny hyresgäst.
Område:
Fastigheten är belägen på Gustaf Dalénsgatan 19 i ett centralt och expansivt läge på Hisingen, i direkt anslutning till Backaplan. Området erbjuder ett mycket brett serviceutbud med lunchrestauranger, gym och Backaplans handelsområde på kort gångavstånd.
För den som uppskattar grönområden ligger Hisingsparken, Göteborgs största parkområde, i närheten – perfekt för promenader eller återhämtning under arbetsdagen. Läget kombinerar citynära puls med god tillgång till service och natur.
Kommunikationer:
Kommunikationsläget är utmärkt. Busshållplatsen Swedenborgsplatsen ligger endast några meter från fastigheten och trafikeras av flera busslinjer med täta avgångar.
-Buss 17 går precis utanför och tar er till Hjalmar Brantingsplatsen på cirka 3 minuter
-Från Hjalmar Brantingsplatsen finns all tänkbar service samt vidare kollektivtrafik
-Nordstan nås på cirka 8 minuter med buss
-Snabb access med bil till de stora trafiklederna ger goda pendlings- och logistikmöjligheter
Parkering:
Parkering finns att hyra på fastigheten, med möjlighet till elbilsladdning.
Snabbfakta:
-Adress: Gustaf Dalénsgatan 19, Göteborg
-Yta: 221 kvm
-Typ: Kontor
-Våningsplan: 1 av 3
-Byggår: 1960
-Renoveringsår: 2025
-Takhöjd: ca 2,6 m
-Tillträde: Enligt överenskommelse
-Kontrakttyp: Förstahandskontrakt, långtidsavtal
Har ni frågor eller vill ni boka tid för en visning?
Välkommen att kontakta oss på 031-350 49 00 eller hej@loqalo.se!











