Bultgatan 34, Rollsbo, Kungälv
Relier - Real Estate Advisor Göteborg
Annons plus853 m²
Hyra: Ej angiven
Tillträde: Ej angivet
Möjlighet att hyra lager/verkstadslokaler med kontor i Rollsbo, med fantastiskt skyltläge mot E6!
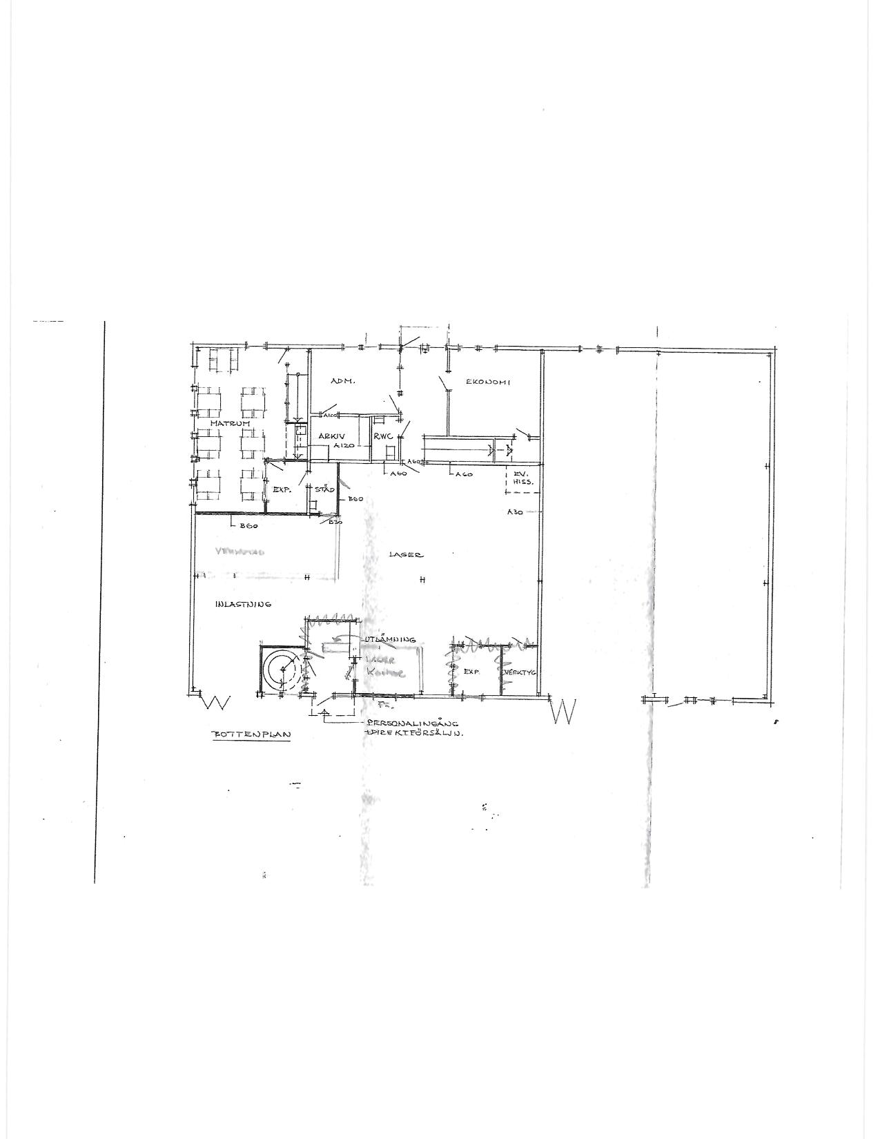
Här finns möjligheten att hyra lager/verkstadslokal om ca 853 kvm, med utmärkt skyltläge mot E6.
Lokalen är i två våningsplan, med låglager/verkstadsytor i markplan, med markport för inlastning. I markplan finns även lunchrum.
På övervåningen finns kontorsytor med kontorsrum samt öppen yta för flera arbetsplatser. Lokalen är delbar där en yta med lager och kontor om totalt ca 613 m2 kan erbjudas. Kvarstående yta om ca 240 m2 kan erbjudas separat, denna yta är ett lager/verkstad.
Hör gärna av dig till oss på Relier för mer information!.
Lokaltyper
Typ: Lagerlokal
Minsta storlek: 853 m²
Största storlek: 853 m²
Annonsinformation
Publicerad: 2024-04-09
Objektsnummer: 41974264


















