Verkstad, Åkarevägen 39, Falkenberg
- 1 000–9 500 m²
- Omgående.
- 54 167 - 514 583 kr/mån
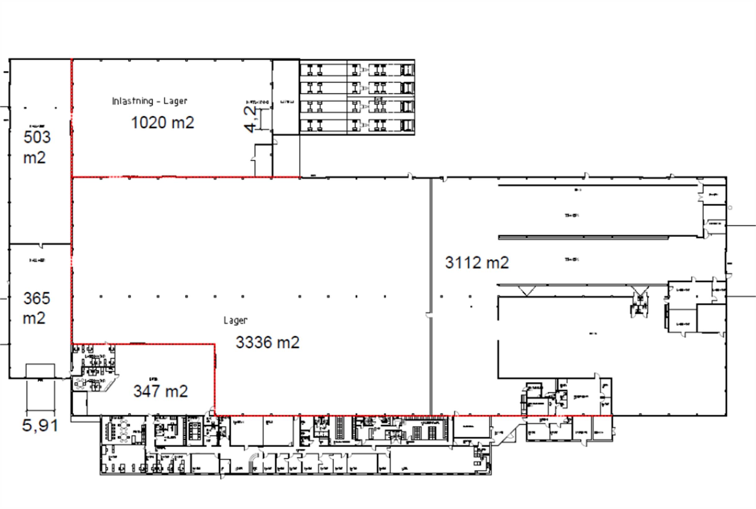
Möjlighet till etablering i Falkenberg Lager, Logistik, produktion eller lättindustri upp till 9 500 kvm.
Om lokalen
- Lokaltyper
- Verkstad / Lagerlokal
- Total yta
- 1 000–9 500 m²
- Adress
- Åkarevägen 39
- Område
- Falkenberg
- Kommun
- Falkenbergs kommun
- Tillträde
- Omgående.
- Objektsnummer
- 41992805
- Hyra
-
54 167 - 514 583 kr/mån
650 kr/m²/år
Beskrivning
Möjlighet till etablering i Falkenberg Lager, Logistik, produktion eller lättindustri upp till 9 500 kvm.
Mittemellan två av Sveriges starkaste logistiknav (Göteborg och Helsingborg) i strategiskt och lätt tillgängligt läge med närhet till E6 i Falkenbergs största industriområde, Smedjeholmen.
Fastigheten passar för lager, logistik. lättindustri, produktion och verkstad mindre kontor.
Parkering
egen parkering i direkt anslutning till kontor och fastighet.
Skyltläge
Bra skyltläge mot Åkarevägen.






