Kontor, Nellickevägen 22, Almedal, Göteborg
- 100–280 m²
- Enligt ök.
Modernt kontor i intill Korsvägen på 10e våningen - Utsikt och parkeringsplatser
Om lokalen
- Lokaltyp
- Kontor
- Total yta
- 100–280 m²
- Adress
- Nellickevägen 22
- Område
- Almedal
- Kommun
- Göteborgs kommun
- Tillträde
- Enligt ök.
- Objektsnummer
- 41992975
Beskrivning
Modernt kontor i intill Korsvägen på 10e våningen - Utsikt och parkeringsplatser
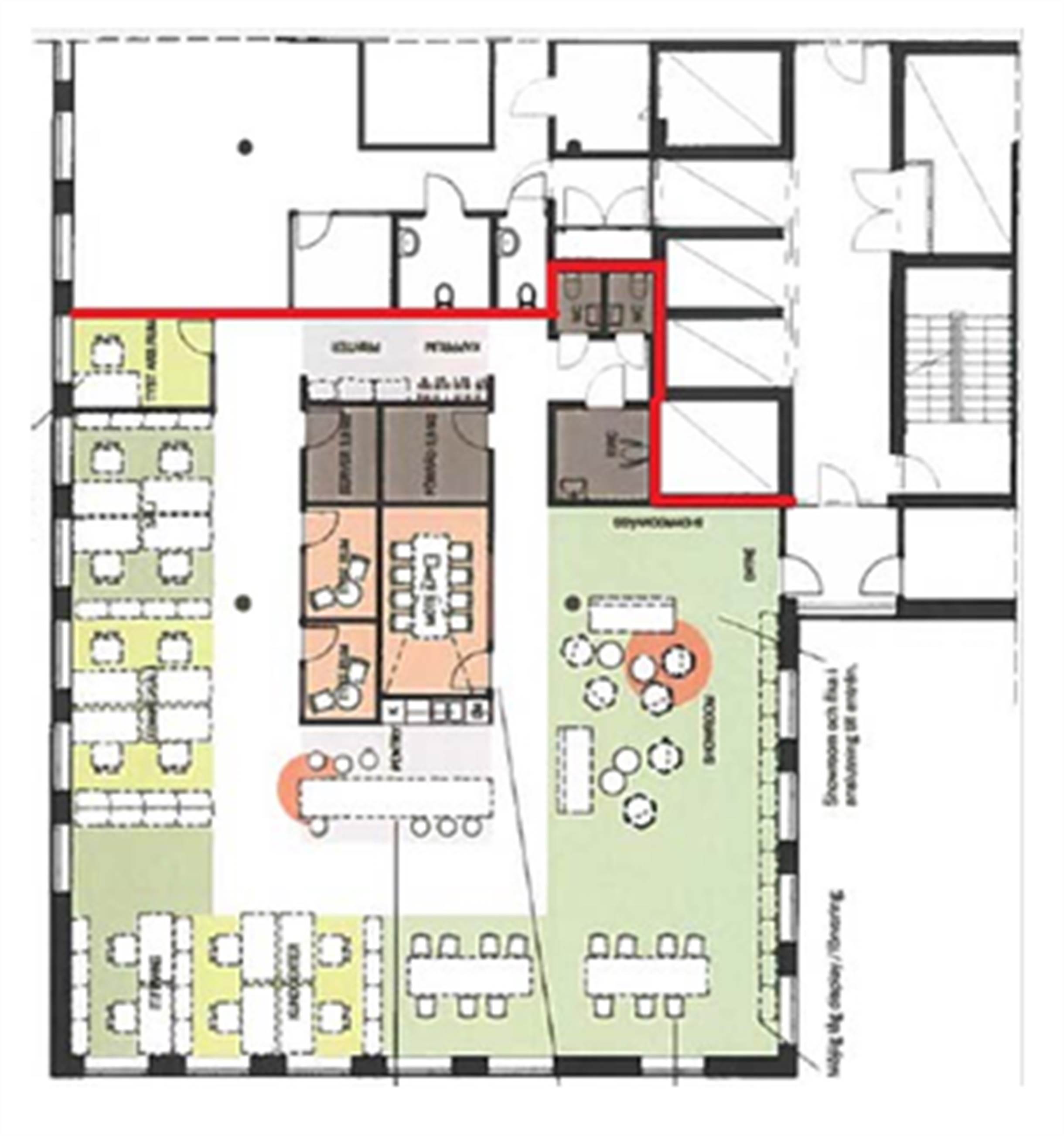
På Nellickevägen 22 hittar man ett kontor med ljus, rymd och flexibilitet. Lokalen är nyrenoverad och har en modern känsla med öppna ytor, avskilda mötesrum och kök i kombination med loungeområden som skapar variation i arbetsmiljön. Stora fönster släpper in mycket ljus och ger en fantastisk utsikt över området.
Läget är strategiskt med tillgång till smidig parkering och goda spårvagnsförbindelser. Det gör det enkelt för både medarbetare och besökare att ta sig till och från lokalen, oavsett om man kommer med bil eller kollektivtrafik. I fastighetens bottenplan finns väletablerade Lyckholms Restaurang, och med STC och World of Volvo som närliggande grannar blir området både levande och praktiskt i vardagen.
Lokalen är 280 kvm och det finns möjlighet att hyra in sig på ca 10 arbetsplatser, alternativt hela lokalen. Befintlig hyresgäst idag arbetar med projekt- och ekonomistyrning.
Sammanfattning:
Modern kontorslokal på 10e våningen Blandning av öppna ytor, mötesrum, konferensrum och loungeytor Ljusa lokaler med fin utsikt Parkeringsplatser och nära spårvagnsförbindelser Lunchrestaurang i bottenplanKontakta oss för att uppleva lokalen själv!
Kommunikationer
Mycket fina kommunikationer med spårvagn bara ett stenkast från Korsvägen
Parkering
Finns parkering på området att hyra till
Service
Lunchrestauranger både i huset och närheten. Granne med b.la World of Volvo och STC gym
Skyltläge
Möjlighet till skylt på fasaden med bra exponering mot leden
Karta
Bilder på lokalen
Nellickevägen 22 Nellickevägen 22 Nellickevägen 22 Nellickevägen 22 Nellickevägen 22 Nellickevägen 22 Nellickevägen 22 Nellickevägen 22 Nellickevägen 22 Nellickevägen 22 Nellickevägen 22 Nellickevägen 22 Nellickevägen 22 Nellickevägen 22 Nellickevägen 22 Nellickevägen 22 Nellickevägen 22 Nellickevägen 22 Nellickevägen 22 Nellickevägen 22 Nellickevägen 22 Nellickevägen 22 Nellickevägen 22 Nellickevägen 22 Nellickevägen 22 Nellickevägen 22 Nellickevägen 22 Nellickevägen 22 Nellickevägen 22 Nellickevägen 22 Nellickevägen 22 Nellickevägen 22

































